






本住宅设计紧扣中古风,以营造兼具复古韵味与现代舒适的居住体验为核心。 空间色彩上,整体选用浅米色墙面搭配浅色系地面,奠定柔和、沉稳的基调,为复古元素的融入提供和谐背景。材质运用上,大量采用带有自然纹理的木质材料打造家具,如客厅的电视柜、书架和主卧的床头背景,木质的温暖质感是中古风的典型体现,传递出岁月沉淀的复古感。 装饰细节处处彰显中古风,客厅与主卧的装饰画,或展现悠远意境,或具鲜明艺术感,似复古时光的艺术印记;灯具设计独特,客厅吊灯结合金属与玻璃材质,主卧床头吊灯简约有设计感,金属光泽与柔和灯光营造出复古又温馨的氛围;床上用品选取浅棕、米色等大地色系并搭配复古纹理织物,从色彩与质感上呼应。
更多客厅灵感
客厅是家居生活的核心公共空间,在中古风的营造上,首先从色彩与材质入手。地面采用浅色系瓷砖,为空间奠定了干净、柔和的基调,与中古风所追求的沉稳又不失温馨的氛围相契合。墙面选择温润的浅米色,这种中性色调既能很好地衬托出复古元素,又能让空间显得开阔明亮。 家具方面,电视柜与书架选用了带有自然纹理的木质材料,木质的温暖质感是中古风的典型特征,其复古的造型设计,线条简洁却又蕴含着岁月的沉淀感。
更多餐厅灵感
这处中古风客餐厨一体化空间,以暖棕、米白为基调,通过浅木书架、复古 “O 型” 餐椅、黑框玻璃门等元素,融合复古材质与经典家具,在客、餐、厨连贯的动线布局中,实现了中古风格的复古韵味与现代居住功能的平衡,营造出温馨且具质感的生活场景。
更多卧室灵感
主卧作为私密的休憩空间,中古风的表达更侧重于营造静谧、舒适且充满复古情调的氛围。墙面延续了客厅的浅米色,保证了空间风格的统一性与和谐感。床头背景采用木质板材,木质的自然质感与中古风的复古韵味完美融合,为睡眠区域打造出温暖的视觉焦点。
更多厨房灵感
以浅色调为基底,营造出明亮清爽的氛围。木质橱柜带着自然纹理,尽显复古的温润质感,搭配简洁的白色台面,和谐又雅致。墙面挂着的厨具,简约中透着实用,与整体风格相呼应。窗边的布置,让自然光线充分进入,为厨房增添了一份复古与清新交融的独特韵味,既方便烹饪操作,又充满生活气息。
更多卫生间灵感
以浅色调为主营造出明亮干净的氛围。木质的浴室柜,带着自然的纹理与温润质感,搭配复古风格的金属拉手,尽显中古风的雅致;镜柜下方的木质置物区,辅以暖光照明,既实用又增添了复古韵味。同时,现代感的卫浴设施与中古风元素相融合,让浴室在具备便捷使用功能的同时,也散发着复古与时尚兼具的独特气息。
更多其他灵感
以米白墙面为基底,左侧墙面错落悬挂多幅复古装饰画,框型与画面风格各异,营造出艺术感十足的中古视觉层次;右侧深木色书柜嵌入线性灯带,陈列的书籍与复古摆件在暖光下尽显质感,尽头餐厨区的复古吊灯若隐若现,整体通过材质、软装与光影的搭配,将中古风格的复古韵味与空间延伸感巧妙融合,打造出兼具艺术氛围与复古温度的过渡空间。
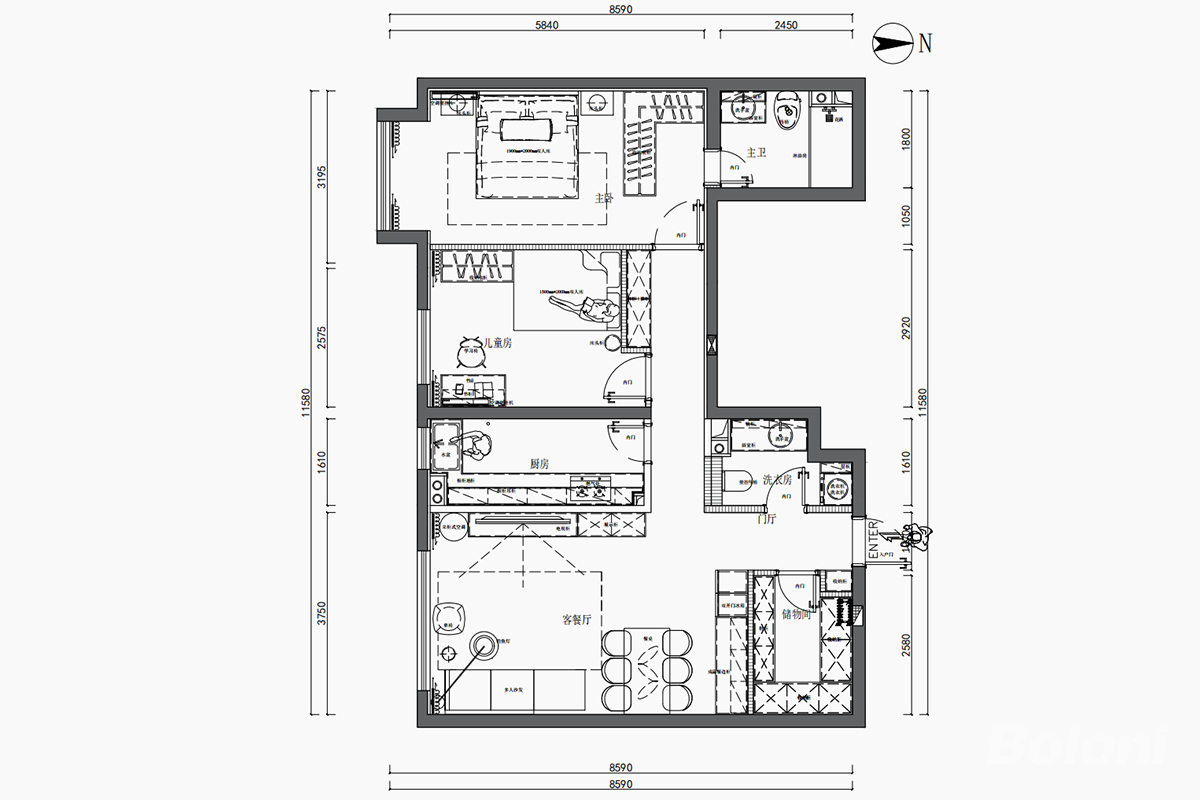
更多户型图灵感
中古风,融合复古与现代元素。以暖棕等大地色系为主色调,大量运用木质家具,凸显自然温润质感。搭配复古造型的灯具、带有艺术感的装饰画,还有复古纹理的织物等,营造出既有岁月沉淀的复古韵味,又不失现代舒适的空间氛围,复古又雅致。