×
北京
手机博洛尼 售前:400-6868-692 售后:400-666-3706
所在位置/首页优秀案例/乐城国际
点击浏览下一张
案例信息
  • 楼盘名称
  • 案例风格
  • 乐城国际
  • 现代
  • 案例户型
  • 服务店面
  • 案例面积
  • 设计师
  • 120㎡
  • 李玉鹏
案例说明

以“少即是多+功能美学”为核心,萃取意式设计的利落线条、高级质感与极简内核,在三居室空间内平衡通透感、实用性与仪式感,打造兼具优雅格调与现代生活适配性的居住环境。

客厅
更多客厅灵感

以木色为底,现代简约客厅,将柜体、背景墙与空间融为一体,悬浮式设计消弭厚重感,圈形灯盏与肌理墙面织就柔和氛围。每一处线条都克制,每一寸空间都适配生活的舒展。

客厅
更多客厅灵感

软包沙发裹着柔意,艺术画与石材纹理碰撞出克制的张力,收纳与美学隐于墙面肌理间--每一处都在说:精致不必用力,生活本该舒展。

餐厅
更多餐厅灵感

以“空间集约+功能适配+质感统一”为核心,通过餐桌靠墙布局释放动线空间,结合餐边柜实现收纳与展示的平衡,打造适配户型的实用型餐厅,延续整体现代简约风格的克制美学。

卧室
更多卧室灵感

延续极简线条,选模块化实木床+简约书桌,衣柜做到顶设计,色彩以浅灰色为主,减少装饰,预留成长型空间。

卧室
更多卧室灵感

以“功能整合+克制质感”为核心,通过一体化布局、低饱和色彩与细节氛围营造,打造兼具实用性与精致感的都市主卧,适配当代多元居住需求。

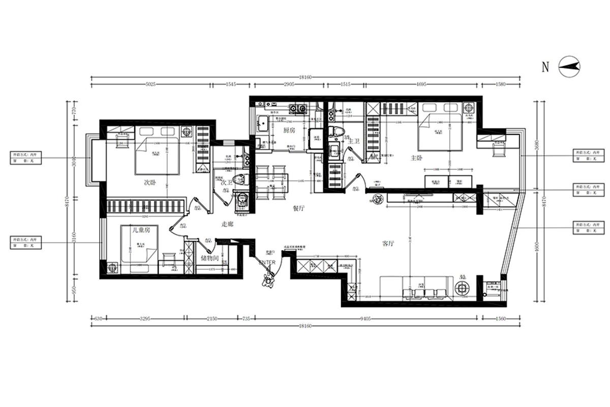
户型图
更多户型图灵感

摒弃冗余装饰,以“直线条、纯色系、低饱和度”为基调,聚焦材质本身质感与空间比例,凸显意式极简的克制与高级。

本案设计师

李玉鹏

主任设计师

  1. 168次
  2. 预约数
  1. 10年
  2. 从业年限
  1. 59套
  2. 作品案例

预约TA

现代风格的其它案例
更多

【案例】【金茂府】现代 四居室 140㎡

渠海东 渠海东 7 844899浏览 这样装修多少钱?

【案例】【万国城】现代 二居室 130㎡

霍俐明 霍俐明 7 4381935浏览 这样装修多少钱?

【案例】【棠颂】现代 别墅 360㎡

李延玲 李延玲 12 3548042浏览 这样装修多少钱?

三居室的其它案例
更多

【案例】【富贵园】古典 三居室 200㎡

博洛尼 博洛尼 6 3481642浏览 这样装修多少钱?

【案例】【中海凯旋】古典 三居室 135㎡

于自奇 于自奇 7 4932浏览 这样装修多少钱?

【案例】【世纪城远大园】古典 三居室 140㎡

薛超 薛超 6 1613浏览 这样装修多少钱?