×
北京
手机博洛尼 售前:400-6868-692 售后:400-666-3706
所在位置/首页优秀案例/高原街
点击浏览下一张
案例信息
  • 楼盘名称
  • 案例风格
  • 高原街
  • 原木
  • 案例户型
  • 服务店面
  • 案例面积
  • 设计师
  • 70㎡
  • 李玉鹏
案例说明

以“自然共生+轻简治愈”为核心,取木材的原生肌理与柔和质感,在空间中融入自然元素与松弛线条,打造兼具实用功能与治愈氛围的居住环境,适配当代人对“轻生活”的向往。

客厅
更多客厅灵感

暖调基底铺就松弛氛围,木色柜体藏起收纳秩序,绒面单椅裹着柔意,艺术画与串灯轻缀细节。在这方空间里,轻简线条与温润质感相融,每一处都写着“生活本该舒展”。

餐厅
更多餐厅灵感

以暖木色为底,用灯光与材质织就层次:入户区整合收纳与展示,藤编餐椅添自然肌理,串灯柔化空间边界。轻简线条里藏着功能秩序,温润质感中裹着生活的松弛,方寸间,实用与雅致恰好平衡。

卧室
更多卧室灵感

以浅木色为主调的紧凑卧室,定制柜整合收纳与功能区,肌理墙面柔化空间,在有限格局里,用简约线条与温润质感,平衡实用与雅致。

卧室
更多卧室灵感

定制整面浅木色收纳柜,兼顾储物与视觉整洁;床体与窗边休闲区衔接,最大化利用采光,整体设计,以“轻收纳+柔氛围”为核心,既满足实用需求,又传递松弛的居住体感。

书房
更多书房灵感

以暖木色为底,定制柜体整合收纳与展示,灯光嵌入层板柔化空间,童趣摆件与简约家具相融。在这方复合空间里,实用收纳藏于轻简线条,温润质感裹着生活的松弛,每一处都适配日常的多元需求。

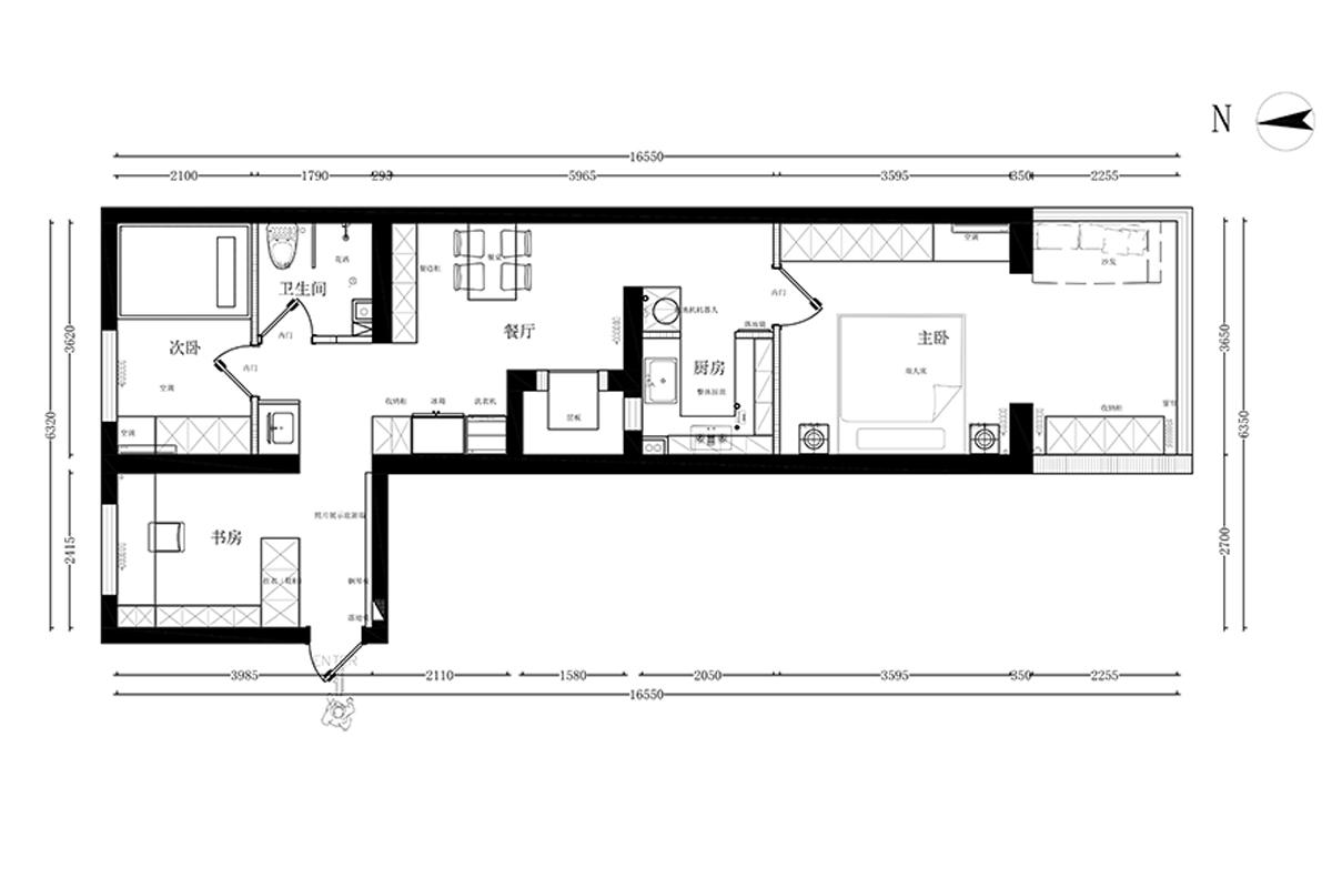
户型图
更多户型图灵感

动静分区合理:入户衔接客餐厅,餐厨相邻适配日常烹饪动线;双卧分居两侧,兼顾休憩隐私;书房预留独立静谧空间,卫生间布局紧凑实用。空间动线流畅,功能分区明确,适配家庭多元居住需求。

本案设计师

李玉鹏

主任设计师

  1. 168次
  2. 预约数
  1. 10年
  2. 从业年限
  1. 59套
  2. 作品案例

预约TA

原木风格的其它案例
更多

【案例】【北京香颂】原木 跃层/loft 370㎡

渠海东 渠海东 14 1324987浏览 这样装修多少钱?

【案例】【玉桥南里】原木 二居室 95㎡

张时月 张时月 6 448166浏览 这样装修多少钱?

【案例】【金域学府】原木 二居室 82㎡

倪美苹 倪美苹 6 171456浏览 这样装修多少钱?

二居室的其它案例
更多

【案例】【御墅临枫】古典 二居室 180㎡

魏焕和 魏焕和 7 4019浏览 这样装修多少钱?

【案例】【民岳家园】古典 二居室 100㎡

尚君 尚君 6 3734浏览 这样装修多少钱?

【案例】【世纪城】古典 二居室 125㎡

赵保祚 赵保祚 6 3371124浏览 这样装修多少钱?