


















1.设计理念 本室内设计以“现代简约、自然舒适”为核心理念, 旨在打造一个能够反映现代生活方式的空间。设计强调功能性与审美的结合,注重空间的流动性和互动性。通过使用自然元素与个性化装饰, 营造出温馨、宁静的居住环境,适合家庭聚会和日常生活。 2.空间规则 布局:开放式设计,客厅与餐厅无缝连接。主沙发选择L型布局,方便家人互动与社交。中央摆放一张多功能茶几,既可作为休闲区域,也可进行小型聚会。 灯光:采用嵌入式射灯与可调光的落地灯相结合,客厅的主灯选择简约风格的吊灯,营造出温馨且富有层次的照明效果。夜晚可使用落地灯提供局部照明,增强氛围。
更多客厅灵感
这一空间以现代简约风格打造多功能书房场景,通过简洁线条与通透布局营造舒适办公、阅读氛围。空间主色调以纯净白色墙面搭配深色柜体,嵌入式灯带为陈列区注入温馨氛围感;中央长桌兼顾办公与交流功能,红色座椅提亮视觉,蓝色软包长凳提供灵活坐憩选择。定制化书架系统整合书籍收纳与藏品展示,玻璃柜门与开放格错落分布,让藏品成为空间艺术点缀。整体设计通过色彩碰撞、灯光巧思与功能整合,实现美学与实用性平衡,“Bolon
更多客厅灵感
室内装饰设计说明 本设计以现代简约为基调,融合艺术与实用。墙面采用纯净白色,搭配多幅风格各异的装饰画,通过不同画框、图案(如几何图形、自然元素、抽象艺术)的组合,营造出艺术感与层次感,打破单调。 家具选择上,深色木质长桌简约大气,搭配亮红色椅子与宝蓝色软包长凳,色彩对比强烈却和谐,既满足实用功能,又成为视觉焦点。地面的白色瓷砖增强空间明亮感,右侧的窗帘(浅棕与白色)柔和光线,提升空间温馨度。整
更多客厅灵感
客厅设计说明 本客厅设计采用现代简约风格,以米白、浅棕为主色调,搭配原木色家具,营造出简洁舒适、自然温馨的空间氛围。 - 空间布局:开放式布局增强通透感,米白色沙发搭配同色系飘窗卡座,形成休闲互动区;中央黑色茶几简约实用,电视墙区域以原木色柜体收纳,搭配悬浮式设计的电视,整体利落大气。 - 细节设计:浅咖色渐变窗帘柔化光线,窗边绿植增添生机;地面米白地毯与大理石瓷砖结合,提升空间质感;红色台灯
更多客厅灵感
这是一套现代简约风格的住宅空间设计,以“通透感+功能复合”为核心。整体采用低饱和色调,白色墙面/地面搭配浅棕家具,营造干净柔和的视觉氛围。空间布局上,客厅、餐厅、楼梯区一体化设计,玻璃扶手楼梯轻盈通透,连接上下层。客厅以浅米色大沙发为核心,搭配深色大理石茶几,书架、绿植、挂画丰富空间层次;餐厅黑白餐椅+简约餐桌,与客厅形成视觉呼应。
更多餐厅灵感
空间布局:采用开放式一体化设计,餐厨区域自然衔接,以浅灰色哑光地砖通铺增强整体延伸感。中岛台与餐桌呈“L”型布局,既满足备餐功能,又可作为临时用餐或社交吧台,提升空间利用率。 色彩搭配:主色调以白色、浅灰、原木色为主,白色烤漆橱柜搭配浅灰色石英石台面,局部运用原木色餐椅与绿植点缀,平衡冷调空间的温度,营造干净通透的视觉效果。 材质与细节:墙面选用环保乳胶漆,局部嵌
更多餐厅灵感
本家居设计采用现代简约风格,以简洁的线条与柔和的色调打造舒适空间。 - 空间布局:客餐厅一体化设计,增强空间通透感,通过家具自然分区,兼顾互动与独立使用需求。 - 材质运用:地面选用亮面瓷砖,提升空间明亮度;柜体采用木质与白色烤漆结合,兼具了质感与时尚感。 - 功能设计:厨房开放式布局,搭配简洁橱柜与置物架,操作便捷且美观;客厅电视墙简约大气,搭配收纳柜满足储物需求。
更多卧室灵感
卧室设计说明 本卧室设计采用现代简约风格,以柔和的米白、浅棕为主色调,营造出温馨舒适且整洁有序的休憩空间。 - 空间布局:整体布局规整,左侧定制通顶衣柜满足收纳需求,隐藏式把手设计让柜体外观更简洁;床居中摆放,两侧床头柜提供便捷置物空间,靠窗打造飘窗区域,兼具休闲与收纳功能。 - 细节设计:床头挂画以暖黄、浅棕为主,与床品、柜体色彩呼应,增强空间协调性;床品搭配条纹毛毯,增添层次感;绿植与简约
更多卧室灵感
这是一间现代简约风格的卧室设计,以“极简线条+柔和质感”为核心。空间采用低饱和色调,白色墙面/地面搭配浅棕家具,营造干净柔和的视觉氛围。布局上,中央大床为核心,浅棕软包床头搭配黑白床品,床尾凳+格纹毯增添温馨感。左侧落地窗+深棕窗帘保障采光与隐私,床头柜上的花艺、灯具提升精致感;右侧定制通顶衣柜,极简拉手设计与空间风格统一。灯光上,嵌入式顶灯+床头壁灯保障柔和照明,材质运用哑光瓷砖、绒面家具提升触
更多卧室灵感
本儿童房设计围绕童趣与实用展开,以柔和浅粉色为主色调,营造温馨治愈的成长空间。 - 收纳系统:左侧定制通高书架与衣柜,满足书籍、衣物收纳需求,保持空间整洁;右侧书桌搭配悬浮层板,既提供学习区域,又可以展示藏品。- 睡眠区域:床品简约柔和,搭配趣味床头柜,增添了空间活力;墙面挂画与地面曲线地毯呼应,强化了童趣氛围。- 细节设计:圆润造型的座椅、可爱的地面玩偶,兼顾安全与趣味性。
更多书房灵感
这是一间现代简约风格的书房设计,以“极简美学+实用功能”为核心。空间采用低饱和色调,白色墙面、地面搭配浅棕书桌,营造出干净柔和的视觉氛围。布局上,中央的木质书桌搭配简约座椅,满足办公学习需求;后方定制通顶柜体,部分开放式格架以暖光烘托,兼具收纳与展示功能。绿植与简洁摆件的点缀,增添生机与精致感;右侧的休闲区与书房相连,提升空间复合性。灯光上,自然光结合室内柔和照明,材质运用哑光瓷砖、金属拉手提升质
更多厨房灵感
厨房设计说明 本厨房设计采用现代简约风格,以白色为主色调,搭配黑色细节,营造出简洁明亮且富有质感的空间氛围。 - 布局与收纳:采用U型布局,上下柜体充足,满足多样收纳需求。上方柜体隐藏式把手设计,使外观更整洁;下方抽屉与柜门结合,便于分类存放物品。 - 功能与美学:中岛区域集成烹饪功能,黑色电器(烟机、烤箱)与白色柜体形成对比,提升视觉层次。灯光设计巧妙,柜底灯带增强氛围感,筒灯提供充足照明。
更多儿童房灵感
该女儿房以柔和治愈的甜美风为核心设计逻辑,通过低饱和度粉色墙面奠定温馨基底,搭配纯净白色柜体,平衡少女感与空间通透度。功能布局上实现“收纳+睡眠+学习”的高效整合:左侧通顶书架与衣柜一体化定制,既满足书籍展示与衣物收纳需求,又强化空间纵深感;中央睡眠区以简约床具为核心,床头卡通装饰画、趣味“大眼睛”床头柜与地面银色小狗摆件,为空间注入童真活力;右侧学习区设分层书桌,层板陈列装饰画与小物件,兼顾书写
更多卫生间灵感
卫生间设计说明 本卫生间设计遵循现代简约风格,以白色为主色调,搭配黑色线条与金属元素,营造出简洁、整洁且富有质感的空间氛围。 - 空间规划:采用干湿分离设计,黑色边框玻璃淋浴房划分淋浴区,有效防止水花飞溅,提升空间利用率。 - 功能布局:洗漱区的浅木色柜体与白色台面搭配,兼具收纳与美观;镜柜设计增加储物空间,灯带提升照明与氛围感。马桶旁设置壁挂式洗衣机,满足小件衣物清洗需求,右侧叠放的洗衣机、
更多卫生间灵感
这是一套现代简约风格的卫浴空间设计,以“高效利用+质感美学”为核心。整体采用低饱和色调,白色墙面/地面搭配浅棕柜体,营造干净柔和的视觉氛围。左侧洗漱区,定制镜柜整合收纳与梳妆功能,嵌入式灯带增强照明;下方浅棕抽屉柜+石英石台面,搭配极简水龙头,实用且显精致。中部嵌入滚筒洗衣机,实现卫浴与洗衣功能复合。右侧淋浴区以黑色窄边玻璃隔断界定,搭配同色系扶手、花洒,通透又具设计感;智能马桶提升使用体验。
更多卫生间灵感
该卫浴设计为现代简约风格,以“极简线条+实用美学”为核心。空间采用低饱和色调,白色墙面/地面搭配浅棕柜体、黑色金属线条,营造干净柔和的视觉氛围。左侧淋浴区,黑色窄边玻璃隔断通透利落,搭配同色系扶手、花洒,界定功能区的同时不压缩空间感;智能马桶提升使用体验。右侧洗漱区,定制镜柜整合收纳与照明,下方浅棕抽屉柜+石英石台面,搭配极简水龙头,兼顾收纳与操作;瓶插绿植、香薰增添生活气息。
更多其他灵感
这份空间设计以现代简约风格为基底,融合“展示+烹饪+休闲”复合功能,打造兼具美学与实用性的生活场景。左侧定制玻璃展示柜内置暖光灯带,通透柜体将潮玩、藏品有序陈列,成为个性化视觉焦点;中部烹饪区采用无把手浅灰橱柜,搭配开放木色层架,红色咖啡机点亮空间活力,操作台面简洁易洁;右侧钢琴区以绿植、乐谱营造艺术氛围,地面圆形地毯与抱枕软化空间,实现动静区域自然过渡。灯光上,嵌入式顶灯与展示柜氛围灯层次呼应,
更多其他灵感
本洗衣房设计遵循现代简约+实用主义理念,以米白、浅棕为主色调,打造整洁高效的洗护空间。 - 布局规划:采用“洗-护-存”一体化设计,左侧嵌入洗衣机,搭配同色系收纳柜,满足洗衣用品与清洁工具收纳;中间水槽方便手洗、预处理污渍;右侧叠放式洗烘套装节省空间,提升洗护效率。 - 细节巧思:墙面浅灰瓷砖易清洁,圆形挂钟增添设计感;台面香薰、洗手液等小物提升生活质感,底部预留扫地机器人空间。
更多户型图灵感
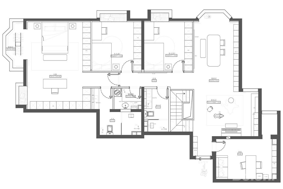
本户型设计以现代简约为风格基调,兼顾空间利用与生活舒适度。 - 公共区域:客厅、餐厅一体化设计,通过家具布局自然分区,增强空间通透感与互动性;客厅采用灵活的软装搭配,满足休闲、会客等多元需求。 - 私密空间:卧室布局方正,预留充足收纳空间,保障居住私密性与舒适性。 - 功能区域:厨房为U型设计,操作动线流畅;卫生间干湿分离,提升使用效率;还规划了独立的家政空间,整合洗衣、储物功能。
更多户型图灵感
现代宜居风户型设计 本户型设计围绕“通透布局、功能集成、质感生活”理念,适配当代家庭居住需求。 - 空间规划:采用“开放公区+私密静区”分区逻辑,入户后客餐厅形成社交核心,与含钢琴的休闲区连贯互通,设计通过合理动线、人性化功能与雅致细节,构建“舒适、高效、有温度”的现代居住场景,精准回应家庭全周期生活需求全屋以浅木色+暖灰为主色调,搭配金属收边、艺术吊灯提升精致度让实用与美学渗透每处空间。