×
北京
手机博洛尼 售前:400-6868-692 售后:400-666-3706
所在位置/首页优秀案例/龙腾苑
点击浏览下一张
案例信息
  • 楼盘名称
  • 案例风格
  • 龙腾苑
  • 现代
  • 案例户型
  • 服务店面
  • 案例面积
  • 设计师
  • 167㎡
  • 王春婷
案例说明

该方案浅米色为主调,结合木质地板与简洁线条,营造出明亮通透的空间感。客厅运用对称布局与艺术挂画点缀,卧室通过柔和灯光与简约家具营造舒适氛围,整体设计兼具实用性与美学,展现出时尚与温馨的现代生活气息。

客厅
更多客厅灵感

客厅采用浅色调与木质元素,艺术挂画与绿植点缀增添活力,简约沙发与圆形茶几实用美观,开放式收纳柜与柔和灯光营造温馨氛围。

客厅
更多客厅灵感

客厅以大理石背景墙与木质元素结合,简约沙发与圆形茶几实用美观,装饰屏风与绿植点缀增添东方韵味,整体布局通透雅致。

餐厅
更多餐厅灵感

餐厨区采用开放式设计,白色橱柜与深色木质元素搭配,圆形餐桌与餐椅简洁现代,吊扇灯与装饰画增添生活气息,功能与美学兼具。

卧室
更多卧室灵感

卧室以浅米色色调为主,飘窗设计增加收纳与休憩空间,简约梳妆台与椅子实用美观,绿色元素点缀其中,整体布局温馨舒适,充满生活质感。

卧室
更多卧室灵感

该空间以浅米色为主调,柔和灯光营造温馨氛围,简约梳妆台与舒适床具结合,开放式衣柜与镜面设计增强空间感,整体布局舒适实用。

卧室
更多卧室灵感

该空间以浅色调与木质元素为主,大窗设计引入充足光线,简约书桌与椅子满足工作需求,整体布局舒适实用,充满现代生活气息。

书房
更多书房灵感

书房以木质书架与书桌为主,中式元素与现代设计结合,装饰画与绿植点缀增添文化气息,吊扇灯与地毯提升空间质感,营造静谧阅读环境。

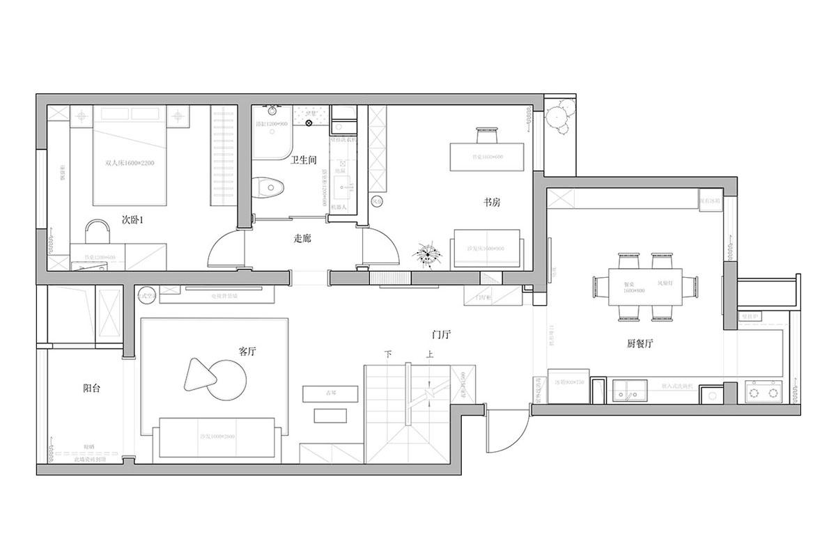
户型图
更多户型图灵感

该层功能分区明确,包含次卧1、客厅、书房、卫生间、厨房餐厅、阳台及门厅等区域,动线流畅,采光充足,厨房餐厅与客厅相连,适合家庭聚会与日常起居。

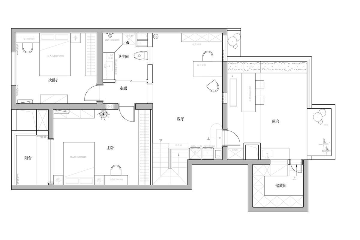
户型图
更多户型图灵感

图1:该层布局合理,包含主卧、次卧2、客厅、卫生间、阳台、露台及储藏间等区域,动线流畅,采光充足,露台与阳台提供充足户外空间,满足居住与休闲需求。

本案设计师

王春婷

钛马赫别墅特级主任设计师

  1. 172次
  2. 预约数
  1. 15年
  2. 从业年限
  1. 41套
  2. 作品案例

预约TA

现代风格的其它案例
更多

【案例】【金茂府】现代 四居室 140㎡

渠海东 渠海东 7 845504浏览 这样装修多少钱?

【案例】【万国城】现代 二居室 130㎡

霍俐明 霍俐明 7 4382481浏览 这样装修多少钱?

【案例】【棠颂】现代 别墅 360㎡

李延玲 李延玲 12 3548906浏览 这样装修多少钱?

四居室的其它案例
更多

【案例】【金盛家园】古典 四居室 155㎡

霍禹晨 霍禹晨 5 3624858浏览 这样装修多少钱?

【案例】【西钓鱼台庄园】古典 四居室 141㎡

霍伯骞 霍伯骞 8 2504浏览 这样装修多少钱?

【案例】【潘庄一号院】古典 四居室 160㎡

博洛尼 博洛尼 6 3186283浏览 这样装修多少钱?