













整体基调:以低饱和奶油白、燕麦色、浅杏色为主色调,搭配原木色、浅灰等中性色,营造温柔治愈的空间氛围,光线通透柔和,视觉上呈现“轻甜不腻”的质感。 空间设计 - 客餐厅:墙面采用微水泥或艺术漆,搭配无主灯设计(磁吸轨道灯+氛围灯带),地面通铺浅灰色哑光瓷砖或人字拼木地板。沙发选用羊羔绒或绒布材质,搭配圆形木质茶几与同色系地毯;餐厅吊灯选奶油白玻璃点缀。 - 卧室:床头背景墙用半墙木饰面+乳胶漆拼接,床头两侧设悬浮床头柜,搭配球形壁灯。窗帘选透光白纱+奶油色遮光帘,床品以棉麻材质为主,加入米色、浅卡其色抱枕作为层次补充。这样的设计既保留了现代简约的利落,又通过色彩与材质的碰撞,传递温暖与治愈。
更多客厅灵感
本客厅采用奶油风设计,以柔和的米白、浅杏为主色调,营造出温馨治愈的氛围。墙面选用哑光艺术漆,搭配无主灯设计(悬浮吊顶+筒灯),光线柔和不刺眼。 家具以浅色系为主,沙发采用绒布材质,柔软舒适;大理石茶几增添质感;角落的绿植与落地灯丰富空间层次。窗帘选用双层设计,纱帘透光柔和,布帘遮光性强。 整体设计简约而不失细节,弧形元素的运用弱化了空间棱角,软装搭配注重材质的自然感,让空间既高级又充满生活温度.
更多客厅灵感
本客厅采用现代简约风格,以柔和的米白、浅棕为主色调,营造出舒适雅致的休闲氛围。 - 视听区:悬浮式原木色电视柜搭配大屏电视,简洁大气。黑色钢琴与电视形成材质、色彩对比,增添艺术氛围。 - 休闲区:米白色休闲椅提供舒适坐感,大理石纹茶几造型简约,兼具美观与实用。 功能与美学:整体设计通过简洁线条、柔和色彩与合理布局,平衡了休闲、娱乐、宠物互动等功能,打造出了一个兼具舒适感美观感与高级感的生活空间。
更多餐厅灵感
本餐厨空间采用奶油风设计,以柔和的米白、浅杏色为主色调,营造出温馨治愈的氛围。 - 厨房:采用一体化橱柜设计,柜门为哑光米白色,搭配黑色拉手,简约利落。墙面选用白色哑光瓷砖,易清洁且显明亮。红色咖啡机作为视觉焦点,为空间增添活力。 - 餐厅:木质餐桌搭配金属椅脚的餐椅,材质碰撞显时尚。两盏简约吊灯提供柔和照明,花瓶中的白色花枝与红色挂画形成色彩对比,丰富了视觉层次。 整体设计简约而又不失细节。
更多餐厅灵感
该空间为现代简约风格的餐厨与休闲一体化区域,以柔和米白为主色调,搭配木色、黑色与红色点缀,营造出雅致且富有活力的氛围。 - 餐厨区:浅色橱柜简洁大气,黑色线条勾勒增添精致感;红色咖啡机成为视觉焦点,提亮空间。木质餐桌搭配金属椅,简约时尚。 - 休闲区:黑色钢琴与琴凳,为空间注入艺术气息,与餐厨区形成动静结合的布局。 设计亮点:一体化设计打破空间界限,功能分区明确又相互融合,通过色彩与材质的搭配。
更多卧室灵感
本卧室采用现代简约风格,以柔和的米白、浅棕为主色调,营造出静谧舒适的休憩氛围。 - 睡眠区:软包床头搭配简约床品,床尾凳圆润的造型增添柔和感,搭毯丰富层次。两侧床头柜对称布局,一侧置绿植、一侧放台灯,平衡实用与美学。 - 收纳区:通顶衣柜与墙面一体化设计,弱化柜体存在感,提升空间整洁度。 整体设计通过简洁的线条、柔和的色彩与合理的功能布局,打造出一个兼具舒适感与高级感的睡眠空间,让空间更加雅致。
更多卧室灵感
本空间为现代简约风格的飘窗与收纳一体化区域,以柔和米白为主色调,营造出温馨雅致的休闲氛围。 - 飘窗区:嵌入式飘窗设计,米白色软垫搭配同色系抱枕,舒适柔和;双层窗帘(纱帘+布帘)保障采光与隐私,浅棕布帘与整体色调和谐统一。 - 收纳区:转角式白色收纳柜,分层设计兼顾书籍展示与杂物收纳,木色地板增添自然温暖感。 设计亮点:一体化设计充分利用角落空间,飘窗休闲与收纳功能完美融合;柔和色调与简洁线条。
更多卧室灵感
该卧室为现代简约风格,以柔和米白为主色调,搭配木色与浅棕,营造出温馨雅致的休憩空间。 - 睡眠区:浅木色床架简约大气,米白床品搭配浅棕、深棕抱枕及床尾毯,层次丰富且柔和;墙面挂画以抽象纹理点缀,增添艺术氛围。 - 收纳区:浅木色床头柜实用美观,搭配同色系台灯,柔和照明提升温馨感;右侧嵌入式衣柜,与墙面一体化设计,简洁利落。 通过材质与色彩实现了舒适感与实用性的平衡,打造出一个宁静放松的睡眠空间。
更多卧室灵感
本卧室设计采用现代简约风格,以柔和的米白色为主色调,搭配浅粉与木色元素,营造出温馨雅致且兼具实用性的休憩空间。 - 睡眠区:浅粉色床头搭配米白床品,辅以浅粉抱枕,柔和温馨;墙面抽象挂画以暖色块点缀,增添艺术氛围。 - 工作区:一体化白色书桌与柜体设计,简洁利落;浅粉色办公椅与睡眠区色彩呼应,提升空间整体感。 通过柔和色调与一体化设计,实现了睡眠、工作、收纳功能的完美融合,打造出一个舒适的小天地。
更多厨房灵感
本厨房设计采用现代简约风格,以浅米与暖棕为主色调,打造出简洁大气且高效实用的烹饪空间。 - 布局规划:遵循“洗 - 切 - 炒”动线,水槽、操作台、燃气灶依次排列,搭配嵌入式电器,空间利用高效。 - 材质与色彩:浅米橱柜+暖棕柜体,柔和温馨;白色台面+同色系墙砖,干净易洁;黑色电器与五金件形成视觉对比,提升精致感。 通过简约的色彩搭配与合理的功能布局,实现了美观与实用的平衡,打造出一个高效的空间
更多玄关灵感
本空间采用现代简约风设计,以柔和的米白色为主色调,营造出温馨整洁的氛围。 - 入户区:定制通顶鞋柜,底部留空方便放置常穿鞋子,中间开放格搭配暖光灯带,可摆放钥匙等小物件,兼具收纳与展示功能。 - 餐厨区:一体化橱柜设计,柜门为哑光米白色,搭配黑色拉手,简约利落。墙面选用白色哑光瓷砖,易清洁且显明亮。红色咖啡机作为视觉焦点,为空间增添活力。 整体设计简约而又不失细节,软装搭配更注重材质的自然感。
更多卫生间灵感
本卫浴空间采用现代简约风格,以柔和的米白、浅棕为主色调,营造出整洁雅致的氛围。 - 洗漱区:一体化台盆柜设计,柜门与墙面同色,视觉上更显整体。镜面柜延伸至顶,增加收纳同时拓宽空间感,下方灯带提供充足照明,方便洗漱梳妆。 洗衣区:上下叠放的洗衣机与烘干机,嵌入墙体节省空间,方便使用。 细节营造:台面绿植、棕色洗护瓶,为空间增添自然生机与质感,让卫浴空间既实用又具美学氛围,是洗漱、洗衣的理想场所。
更多卫生间灵感
本浴室设计采用现代简约风格,以米白色为主色调,搭配黑色金属与木色元素,营造出简洁雅致且实用的卫浴空间。 - 功能分区:清晰划分洗漱区(台盆+镜柜)、沐浴区(浴缸+淋浴)、如厕区,动线流畅。 - 材质运用:米白瓷砖覆盖墙面地面,干净易洁;黑色金属架、水龙头增添精致感;木色镜柜与柜体提升温馨度。 柔和灯光与自然光影结合,营造舒适放松的沐浴氛围。 设计亮点:通过色彩搭配与功能整合,实现了美观与实用。
更多卫生间灵感
本卫生间设计遵循了现代简约风格,以浅米色的瓷砖为基底,搭配黑色的金属配件,打造出了简洁、整洁且实用的卫浴空间。 - 空间布局:清晰划分如厕区(马桶)与淋浴区,干湿分区明确,动线流畅。 - 材质运用:浅米色瓷砖覆盖墙面地面,视觉上拓展空间感;黑色金属置物架、淋浴装置,简约又具质感。 - 功能细节:多层置物架满足了洗漱用品收纳,毛巾架方便取用;一体化马桶设计提升整洁度,大顶喷淋浴头带来舒适沐浴体验。
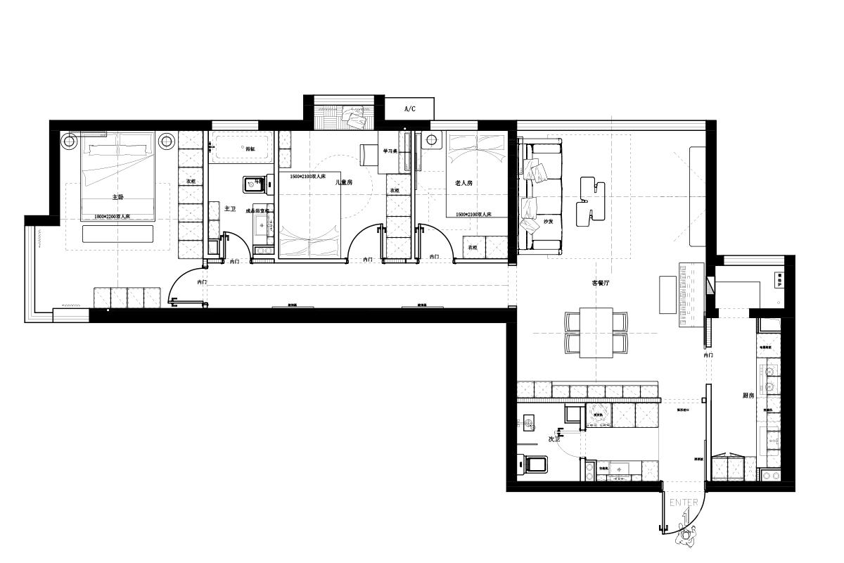
更多户型图灵感
本住宅平面设计为现代家庭居住空间,布局紧凑且功能分区明确。 - 空间规划:包含主卧、儿童房、老人房,满足多代同堂居住需求;客餐厅一体化设计,增强空间通透感与互动性;厨房、卫生间等功能区布局合理,动线流畅。 - 收纳设计:主卧、儿童房、老人房均设衣柜,客餐厅旁也有收纳空间,充分满足储物需求。 - 细节考量:卧室门采用内开设计,节省空间;卫生间干湿分离(推测),提升使用效率;空调机位(A/C)合理。