






客厅、餐厅、厨房形成连贯的公共活动带,强化空间通透感与互动性。厨房采用开放式(或半开放式)设计,与餐厅紧密衔接,方便备餐、用餐流程;客厅作为家庭核心活动区,与餐厅形成视觉和动线的联动,提升家庭聚会、日常交流的便利性。
更多客厅灵感
以黑白灰中性色系为主,通过不同灰度的层次(浅灰墙面、深灰厨房柜体、米白沙发)营造出简洁、克制的视觉效果,无多余跳色,传递出冷静且高级的质感。客餐厨采用开放式一体化设计,打破功能区的物理边界,让空间更显开阔通透;无主灯设计(线性灯带、嵌入式筒灯)进一步强化了空间的延伸感,减少视觉压迫。
更多餐厅灵感
以黑白灰 + 浅米白的中性色系为主,通过深灰岛台、浅灰橱柜、米白沙发的层次组合,营造出简洁克制的视觉效果;墙面大幅艺术画的低饱和渐变色彩,为空间注入细微的艺术感,却不破坏整体的极简基调。
更多卧室灵感
以黑白灰中性色调为主,通过深灰木质床头背景、浅灰柜体、白色床品的层次搭配,营造出冷静克制的视觉效果;材质上运用哑光饰面(如衣柜、书桌)、木质元素(床头背景),搭配简洁的金属线条(如悬浮台盆的黑色边框),在极简中融入细腻的质感。
更多书房灵感
以黑白灰中性色系为主,采用哑光深灰柜体、浅灰墙面、白色地砖,营造简洁克制的视觉效果;无主灯设计(嵌入式筒灯)与大窗户的自然采光结合,强化空间通透感,体现现代极简 “少即是多” 的核心逻辑。
更多厨房灵感
以低饱和度的灰、米白中性色系为主,搭配哑光质感的橱柜饰面(深灰下柜、浅灰上柜),营造出冷静、克制的视觉效果;台面采用白色石材,与墙面浅米色瓷砖形成层次,材质统一且无多余装饰,体现 “少即是多” 的极简哲学。
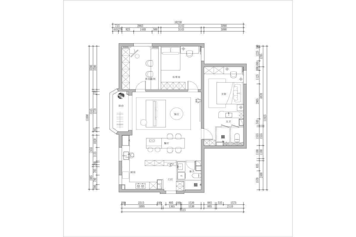
更多户型图灵感
客厅、餐厅、厨房形成连贯的公共活动带,强化空间通透感与互动性。厨房采用开放式(或半开放式)设计,与餐厅紧密衔接,方便备餐、用餐流程;客厅作为家庭核心活动区,与餐厅形成视觉和动线的联动,提升家庭聚会、日常交流的便利性。