










本案以“复古雅致,自然共生”为核心理念,融合东方传统美学与现代居住需求,打造兼具文化底蕴与舒适感的空间。 空间布局 - 客餐厅:采用开放式布局,以原木色吊顶与深色实木地板奠定温润基调,搭配拱形门洞划分区域,墙面局部运用米灰色艺术涂料,悬挂复古木质装饰画与黄铜壁灯,营造层次分明的视觉效果。 - 厨房采用复古小方砖铺贴墙面,搭配铜制水龙头与木质橱柜拉手;卫浴间引入复古铸铁浴缸,墙面悬挂圆形铜镜与绿植吊篮,让生活场景充满诗意。整体设计在保留中古风经典元素的同时,通过现代收纳系统与智能家电嵌入,实现美观与实用的平衡。 主色调为暖白、原木色与灰绿色,局部则以赭石红、墨黑作为点缀,避免大面积亮色.
更多客厅灵感
本客厅设计以现代中古风格为基调,融合自然元素与精致细节,营造出了舒适雅致的生活空间。 - 空间布局:开放式格局保证通透感,大窗搭配木质百叶,引入自然光线的同时兼具隐私性; - 色彩搭配:米白墙面与原木色家具形成柔和底色,黑色茶几、金属支架等深色元素点缀,增强视觉层次; - 材质运用:木质百叶、复古抽屉柜传递温润质感,哑光墙面与光滑柜体形成材质对比; - 软装细节:花卉挂画、艺术雕塑提升艺术氛围。
更多客厅灵感
该客厅设计以现代简约风格为基调,融合自然元素与精致细节,营造出舒适雅致的生活空间。 - 空间布局:采用开放式格局,保证空间通透感,木质百叶窗引入自然光线的同时兼具隐私性; - 色彩搭配:米白墙面与原木色家具形成柔和底色,黑色茶几、金属支架等深色元素点缀,增强视觉层次; - 材质运用:木质柜体传递温润质感,哑光墙面与光滑柜体形成材质对比,提升空间质感; - 软装细节:花卉挂画、艺术雕塑提升艺术氛围
更多餐厅灵感
本餐厅设计以现代中古风格为核心,融合复古与自然元素,打造舒适雅致的用餐场景。 - 空间布局:开放式布局增强通透感,与厨房、客厅区域自然衔接,提升空间利用率; - 色彩搭配:米白墙面搭配原木色家具,辅以黑色金属支架,形成柔和且富有层次的色彩体系; - 材质运用:木质餐桌传递温润质感,藤编椅面与金属椅架结合,复古冰箱与艺术镜增添了细节趣味; - 软装细节:黑色花瓶、粉色花卉、绿色果盘形成了色彩对比。
更多卧室灵感
本卧室采用中古风,以柔和的米白墙面搭配原木色家具,营造出温馨舒适的休憩氛围。 - 功能布局:睡眠区与学习工作区动静分区,床具居中摆放,书桌紧邻窗边,兼顾采光与使用便利性; - 细节设计:床头挂画、墙面置物架丰富空间层次,暖光台灯与射灯营造柔和光影;床品以米白为底,搭配深棕床尾毯,通过色彩对比提升视觉质感; - 材质运用:木质家具传递自然温润感,浅灰地毯柔化空间,窗帘与床品材质呼应,整体风格新颖。
更多卧室灵感
本卧室设计以现代简约风格为核心,融合自然元素,打造舒适静谧的休憩空间。 - 空间布局:床居中心,两侧床头柜对称分布,左侧开放式衣柜增强收纳与空间通透感,右侧百叶窗引入自然光线。 - 色彩搭配:米白墙面搭配原木色家具,浅灰床品与条纹地毯中和暖调,营造柔和温馨氛围。 - 材质运用:木质床具、地板传递温润质感,藤编床头柜增添自然肌理,玻璃衣柜门提升空间轻盈感。 - 细节设计:三幅装饰画丰富了墙面层次。
更多厨房灵感
本厨房设计以现代中古为核心,通过材质、色彩与细节的巧妙搭配,打造出兼具美观与实用的烹饪空间。 - 色彩与材质:采用浅米白色吊柜与深棕色实木地柜形成视觉对比,搭配原木色地板,营造出温暖柔和的空间氛围。墙面运用素色哑光材质,增强空间的整洁感。 - 功能布局:吊柜与地柜的组合提供充足收纳空间,黑色弧形油烟机简约大气,与整体风格协调统一。灶台区域的灯光设计,既满足烹饪照明需求,又增添了空间层次感。 -
更多厨房灵感
该厨房设计遵循现代中古风格,以实用与美学兼具为目标。 - 色彩搭配:以浅米色墙面、原木色柜体及地板为主色调,搭配白色台面,营造出温暖柔和且整洁的空间氛围,黑色电器作为点缀,增强视觉对比。 - 功能布局:采用L型橱柜结合中岛台的设计,橱柜提供充足收纳空间,中岛台兼具操作、休闲功能,搭配高脚凳,拓展了空间使用场景。 - 细节设计:墙面置物架摆放的罐具、中岛台的花艺与装饰画,增添生活气息;吊灯与吸顶灯
更多玄关灵感
本空间为餐厅与收纳区一体化设计,以现代简约+轻复古为风格核心,打造出了实用与美学兼具的生活场景。 - 空间布局:开放式布局增加强通透感,左侧一体化柜体实现收纳功能,右侧餐区与备餐柜联动,提升使用效率的同时。 - 色彩搭配:米白墙面+原木色家具奠定柔和基调,黑色金属、深色柜体形成视觉对比,层次丰富; - 材质运用:木质餐柜传递温润质感,藤编椅面+金属椅架、玻璃桌面+金属支架,融合复古与现代元素;
更多卫生间灵感
本卫浴空间采用现代简约风格,以浅灰调瓷砖打造柔和底色,营造出静谧舒适的氛围。 - 功能布局:洗漱区、如厕区与洗衣区紧凑有序,嵌入式柜体与叠放式洗衣机充分利用垂直空间,满足日常收纳与洗衣需求; - 细节设计:带灯光与时间显示的圆形镜柜,兼具照明、梳妆与储物功能;黑色置物架以对比色提亮空间,绿植、香薰等软装增添生活气息; - 材质运用:光滑的台面、哑光的瓷砖与简洁的柜体线条,传递出了精致利落的质感。
更多卫生间灵感
本卫生间设计以现代简约风格为主,追求简洁实用与精致质感的平衡。 - 空间布局:采用干湿分离设计,玻璃隔断划分淋浴区与洗漱、如厕区,提升空间利用率与使用便利性。 - 色彩搭配:以浅灰色瓷砖为基调,搭配白色洁具,营造出干净、柔和的视觉效果,整体氛围静谧舒适。 - 材质运用:墙面地面选用哑光质感的浅灰瓷砖,易清洁且显高级;玻璃隔断通透轻盈,增强空间通透感。 - 细节设计:带灯镜柜兼具了照明与收纳功能。
更多户型图灵感
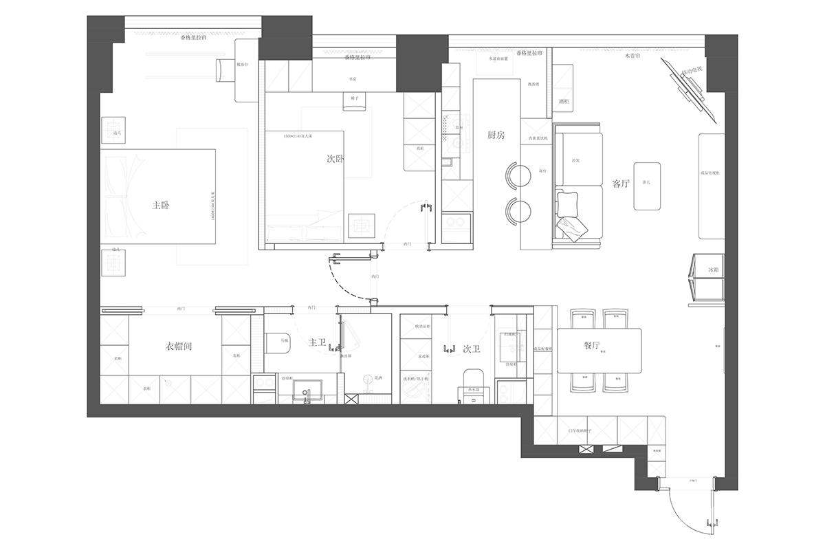
本住宅平面设计遵循“功能分区、动线流畅、空间高效”原则,打造舒适宜居的现代居所。 - 空间布局:采用动静分区设计,主卧、次卧等静区集中于西侧,客厅、餐厅、厨房等动区布局东侧,减少干扰。 - 功能规划:主卧带独立衣帽间、主卫,保障私密性;次卧紧邻公区,兼顾便捷与安静;双卫生间设计满足家庭需求。 - 动线设计:入户即达餐厅、客厅,厨房与餐厅动线短捷,家务动线(厨房 - 次卫 - 洗衣区)与居住动线(