






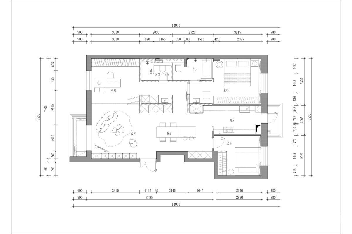
厨房、餐厅、客厅形成开放式联动空间,厨房紧邻入户,备餐动线高效;餐厅与客厅连通,拓展社交休闲尺度,客厅旁的书房可作为独立工作区,也可灵活打通,让公共区域更具通透感与多功能性。主卧配备独立主卫,保障隐私与便利性;次卧空间独立,满足家人休憩或客房需求;双卫设计(主卫 + 次卫)提升居家使用效率,避免早高峰拥堵。
更多卧室灵感
线条简洁利落,家具造型现代大气,同时法式护墙板、精致的花艺摆件等细节,为空间注入了法式浪漫与轻奢精致的双重气息。卧室功能分区清晰,睡眠区布局合理且舒适,大面积窗户保证了空间的采光与通透感,契合现代卧室对舒适性与美观性的双重追求。
更多厨房灵感
线条简洁利落,橱柜造型现代大气,同时拱形玻璃门、精致的咖啡机等细节,为空间注入了法式浪漫与轻奢精致的双重气息。厨房呈 U 型布局,功能分区清晰且动线合理,契合现代厨房对实用性与美观性的双重追求。
更多户型图灵感
厨房、餐厅、客厅形成开放式联动空间,厨房紧邻入户,备餐动线高效;餐厅与客厅连通,拓展社交休闲尺度,客厅旁的书房可作为独立工作区,也可灵活打通,让公共区域更具通透感与多功能性。主卧配备独立主卫,保障隐私与便利性;次卧空间独立,满足家人休憩或客房需求;双卫设计(主卫 + 次卫)提升居家使用效率,避免早高峰拥堵。