×
北京
手机博洛尼 售前:400-6868-692 售后:400-666-3706
所在位置/首页优秀案例/中海学府里
点击浏览下一张
案例信息
  • 楼盘名称
  • 案例风格
  • 中海学府里
  • 法式
  • 案例户型
  • 服务店面
  • 案例面积
  • 设计师
  • 81㎡
  • 王锋
案例说明

客户为精装改整装客户,对生活品质要求极高,整体设计采用法式风格,通过石膏线和智能灯光的加持,整体空间更具有高级感

客厅
更多客厅灵感

整体空间设计为法式风格,通过石膏线条造型搭配奶白色墙漆整体空间温柔和谐,通过一整面厅柜设计增加了储物空间

卧室
更多卧室灵感

整体空间以奶咖色为主色调,床头墙漆采用拼色设计搭配云朵灯与石膏线灯盘设计,整体空间非常柔和与温馨,利用飘窗增加抽屉柜体设计,增加了储物空间

厨房
更多厨房灵感

整个橱柜采用U字型设计最大限度利用洗切炒的操作空间,橱柜整体采用咖色为主搭配造型柜子,利用吊地柜与筒柜设计增加储物空间

儿童房
更多儿童房灵感

儿童房采用吊顶灯盘与石膏线搭配设计,利用云朵床搭配深咖色布帘与整体颜色进行呼应,整体空间甜而不腻,充满温馨感

卫生间
更多卫生间灵感

卫生间整体采用花砖与柔光转搭配设计,利用壁龛空间进行储物设计,卫浴柜后面的墙砖采用花砖与黑色墙砖搭配设计搭配黑色浴室柜与黑色木门,增加整体空间的和谐与统一性

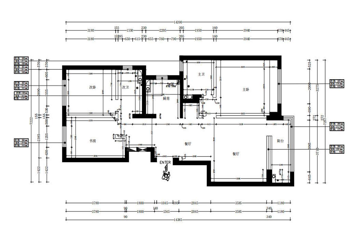
户型图
更多户型图灵感

该户型在原有户型基础上打通客厅与阳台之间的门联窗设计扩大了客厅空间,阳台与次卫通过增加弧形口设计增加整体空间美观度

本案设计师

王锋

主任设计师

  1. 168次
  2. 预约数
  1. 17年
  2. 从业年限
  1. 42套
  2. 作品案例

预约TA

法式风格的其它案例
更多

【案例】【大郊亭】法式 三居室 160㎡

赵波 赵波 6 5830浏览 这样装修多少钱?

【案例】【玉海园】法式 跃层/loft 120㎡

代伟欣 代伟欣 7 1197392浏览 这样装修多少钱?

【案例】【京西悦府】法式 别墅 300㎡

赵波 赵波 6 3134浏览 这样装修多少钱?

三居室的其它案例
更多

【案例】【富贵园】古典 三居室 200㎡

博洛尼 博洛尼 6 3481776浏览 这样装修多少钱?

【案例】【中海凯旋】古典 三居室 135㎡

于自奇 于自奇 7 5202浏览 这样装修多少钱?

【案例】【世纪城远大园】古典 三居室 140㎡

薛超 薛超 6 1665浏览 这样装修多少钱?