×
北京
手机博洛尼 售前:400-6868-692 售后:400-666-3706
所在位置/首页优秀案例/幸福里
点击浏览下一张
案例信息
  • 楼盘名称
  • 案例风格
  • 幸福里
  • 中古
  • 案例户型
  • 服务店面
  • 案例面积
  • 设计师
  • 78㎡
  • 马宠
案例说明

中古风格以20世纪中期经典设计语言为基底,融合复古质感与现代实用需求,摒弃繁复装饰,以简约线条、温润材质勾勒松弛氛围,平衡怀旧情怀与日常舒适度,打造兼具质感沉淀与生活温度的空间形态。

客厅
更多客厅灵感

以20世纪中期经典美学为核心,用简约利落线条、温润天然材质串联空间,平衡复古质感与日常实用,打造松弛雅致、兼具怀旧氛围与互动感的客厅场景。

餐厅
更多餐厅灵感

聚焦复古质感与用餐仪式感,以简约线条、温润木调为基底,融合经典中古元素与实用功能,打造静谧雅致、兼具怀旧氛围与日常舒适度的用餐空间。

卧室
更多卧室灵感

以静谧温润为基调,融合中古经典线条与天然质感,弱化冗余装饰,平衡复古怀旧氛围与睡眠舒适度,打造松弛治愈、兼具质感与私密性的休憩空间。

书房
更多书房灵感

以静谧沉稳为底色,融合中古经典线条与天然质感,兼顾阅读办公实用性与复古美学,打造兼具沉淀感与松弛感的沉浸式学习工作空间。

厨房
更多厨房灵感

厨房的设计是将20世纪中期经典元素与现代功能相融合,营造出复古又时尚的烹饪空间,橱柜选用实木多层板材料,搭配石英石台面,既实用又美观。

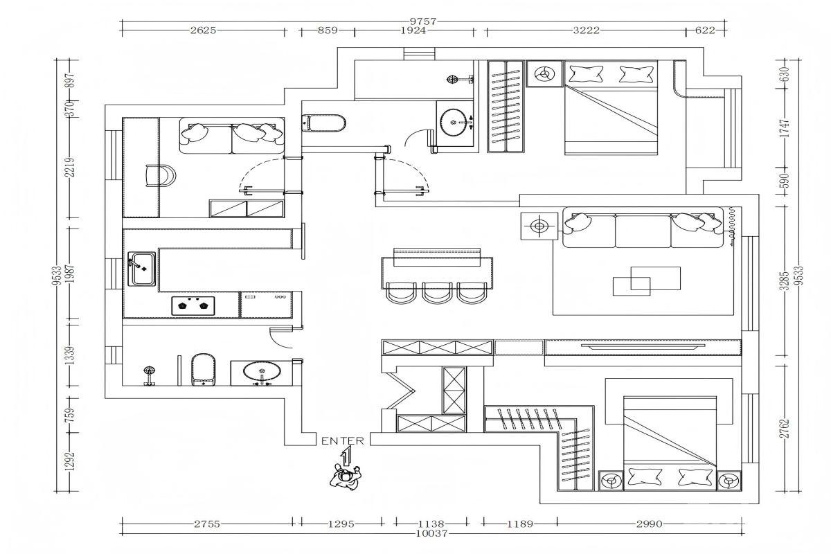
户型图
更多户型图灵感

以“通透联动+功能适配”为核心,最大化释放空间采光与动线流畅度,用空间分区呼应中古松弛调性,兼顾复古美学与日常实用场景,实现风格统一与功能落地。

本案设计师

马宠

资深设计师

  1. 168次
  2. 预约数
  1. 10年
  2. 从业年限
  1. 9套
  2. 作品案例

预约TA

中古风格的其它案例
更多

【案例】【康乐里小区】中古 二居室 103㎡

张洋 张洋 6 3678浏览 这样装修多少钱?

【案例】【枫丹丽舍】中古 三居室 160㎡

吕宏音 吕宏音 6 1983浏览 这样装修多少钱?

【案例】【棕榈泉国际公寓】中古 三居室 135㎡

渠海东 渠海东 9 2928浏览 这样装修多少钱?

二居室的其它案例
更多

【案例】【御墅临枫】古典 二居室 180㎡

魏焕和 魏焕和 7 3956浏览 这样装修多少钱?

【案例】【民岳家园】古典 二居室 100㎡

尚君 尚君 6 3628浏览 这样装修多少钱?

【案例】【世纪城】古典 二居室 125㎡

赵保祚 赵保祚 6 3371053浏览 这样装修多少钱?