





以 “复古优雅 × 当代舒适” 为内核,打造适配日常的中古风空间:融中世纪复古美学与现代功能,用温润木色、弧形线条、复古金属元素铺陈怀旧氛围,以简洁结构与充足收纳适配当代起居。 客餐厅:一体化布局 + 法式石膏线、拱形门洞,人字拼木地板搭配复古格栅柜体,低饱和软装让复古感融入 厨房:“白 + 木 + 黑” 配色,L 型操作台 + 嵌入式家电,兼顾中古风温润与烹饪效率; 卧室:木饰面 + 肌理墙,床品搭复古画营造松弛感,嵌入书桌实现 “休憩 + 轻办公” 复合功能。
更多客厅灵感
以奶白为基底,搭配人字拼木地板的温润肌理,瞬间铺陈出复古又柔和的底色。 设计细节全是巧思:背景墙的法式石膏线 + 拱形门洞,精准拿捏中古风的浪漫肌理;电视柜与边柜用 “木色 + 复古格栅 + 金属脚” 的组合,既有复古质感又藏足收纳;软装选了低饱和的白沙发 + 艺术感地毯,让复古氛围里多了份松弛的当代舒适。更妙的是客餐厨的通透衔接(镜面既延伸空间又能隐约看到厨房),互动感与颜值直接拉满
更多餐厅灵感
温润的木色餐桌搭配人字拼地板,瞬间铺陈出柔和的复古基底,而上方的褶皱灯罩吊灯,又给空间添了份轻盈的艺术感。 背后的餐边柜是设计巧思的核心:“白 + 木” 的配色既清爽又有复古质感,开放格嵌入氛围灯带,既能展示藏品(雕塑、摆件),又能收纳书籍、小家电,把 “颜值展示” 和 “实用收纳” 无缝结合
更多卧室灵感
以奶白 + 温润木色为基底,搭配人字拼木地板,柔和中透着精致的复古肌理。 设计细节里全是巧思:床头背景墙用木饰面 + 肌理板拼接,再嵌入氛围灯带,既丰富了层次又营造出松弛的休憩感;床侧直接一体化嵌入书桌,把 “休憩 + 轻办公” 功能做了无缝衔接,搭配复古造型的木椅,实用又不丢风格;软装选了千鸟格床品 + 艺术感装饰画,轻量复古元素让空间更有品味
更多厨房灵感
以 “白 + 木 + 黑” 的配色搭出轻复古氛围,吊柜的极简哑光白、地柜的温润木色,再配上人字拼木地板,柔和中透着精致的复古肌理。 设计细节全是实用巧思:L 型操作台把洗、切、炒动线安排得紧凑高效;吊柜 + 地柜的组合藏足收纳,台面留白处还能放小家电;百叶窗既保证了采光又能遮挡油烟,加上嵌入式灯光的点缀,做饭时的氛围和效率都直接拉满
更多儿童房灵感
整体以柔和的奶白 + 暖棕为主调,既保留了空间的清爽通透,又用木色、皮质床头等元素铺垫出温柔的复古氛围。 设计巧思直接戳中实用痛点:墙面定制的吊柜 + 书桌,把 “收纳 + 办公” 功能无缝嵌入,灯光藏在柜体层板里,既补充了照明又让氛围更显细腻;弧形床头 + 刺绣抱枕的软装配色,让休憩感更松弛;连小边几都选了复古格栅款,搭配装饰画,把中古风的精致感藏在每一处小物件里。
更多户型图灵感
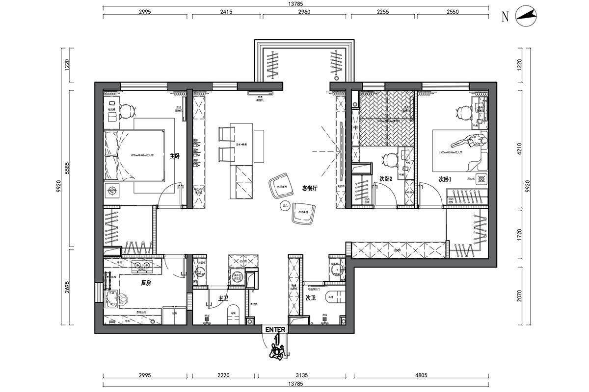
以「动静分区 + 洄游动线」为核心,公共区(客餐厨)做了通透一体化布局,不仅视觉上更显开阔,日常做饭、用餐、休闲的互动感直接拉满;私密区(主卧 + 双次卧)则 “藏” 在两侧,关上门就是互不打扰的安静私域 —— 主卧带独立卫浴 + 专属收纳区,双次卧既能做卧室也能改造成复古书房,灵活适配不同生活需求。