×
北京
手机博洛尼 售前:400-6868-692 售后:400-666-3706
所在位置/首页优秀案例/远大园三区
点击浏览下一张
案例信息
  • 楼盘名称
  • 案例风格
  • 远大园三区
  • 现代
  • 案例户型
  • 服务店面
  • 案例面积
  • 设计师
  • 190㎡
  • 谢明
案例说明

一套融合现代简约与东方禅意的住宅空间,涵盖客餐厅、厨房、书房、卧室等全功能区,以「木色+留白」为基调,通过线条、材质与光影营造出静谧雅致的居住氛围

客厅
更多客厅灵感

客厅过渡区,浅色布艺沙发配木质茶几,落地窗引入自然光,墙面设隐藏式柜体,地面铺浅灰地毯,空间简洁通透。

客厅
更多客厅灵感

茶室空间,整体以米白和浅木色为主,摆放深色实木茶桌和圈椅,墙面挂有书法作品,角落设古琴与博古架,营造雅致的品茶氛围。

餐厅
更多餐厅灵感

餐厅入口,黑色金属边框玻璃隔断分隔空间,后方可见木质餐桌与餐椅,厨房区域采用白色与木色橱柜,整体风格统一。

餐厅
更多餐厅灵感

餐厨一体化空间,中岛台与餐桌相连,墙面挂山水画装饰,厨电嵌入式设计,灯光用线性灯与筒灯,营造温馨用餐环境。

卧室
更多卧室灵感

主卧空间,深色床头背景配浅色床品,两侧床头柜设台灯,灯光用线性灯与筒灯,营造温馨,墙面挂装饰画,定制衣柜到顶,空间宽敞舒适。

卧室
更多卧室灵感

次卧空间,浅灰色床品搭配木质家具,墙面留白配单幅装饰画,打造私密且舒适的睡眠区,床头区域预留休闲与收纳功能。灯光柔和,营造宁静的睡眠氛围。

其他
更多其他灵感

多功能房,兼具客卧与书房功能,沙发床、书桌与书柜组合,墙面挂风景画,地面铺黑白条纹地毯,功能灵活多变。

其他
更多其他灵感

电竞房,木质书桌配双显示器,黑色电竞椅与书架组合,窗边设收纳柜,整体风格简约实用,满足办公与娱乐需求。

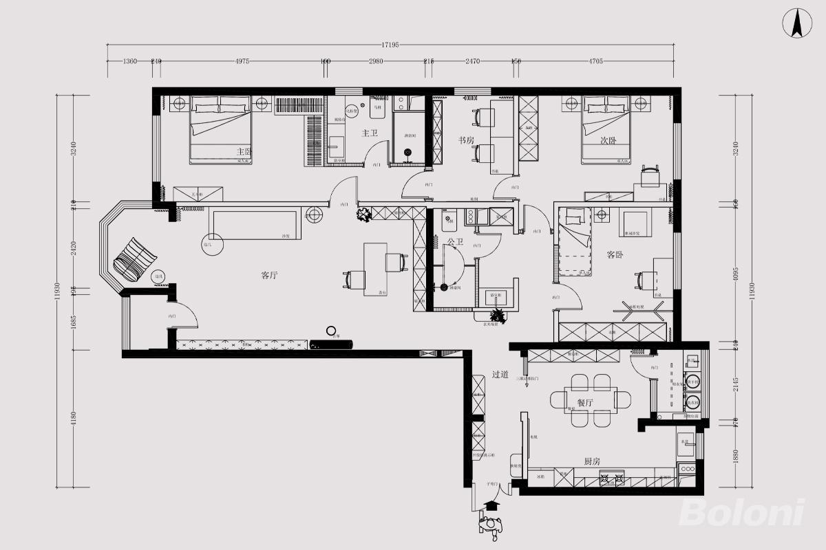
户型图
更多户型图灵感

采用“洄游动线+动静分离”设计,入户过道串联餐厨区(动区)与客厅、卧室(静区),公共区域与私密区域通过结构墙体和隔断自然分隔,动线流畅且互不干扰;客厅作为核心公共区,与茶室形成开放式联动,拓展视觉与使用尺度。

本案设计师

谢明

主任设计师

  1. 168次
  2. 预约数
  1. 11年
  2. 从业年限
  1. 20套
  2. 作品案例

预约TA

现代风格的其它案例
更多

【案例】【金茂府】现代 四居室 140㎡

渠海东 渠海东 7 845258浏览 这样装修多少钱?

【案例】【万国城】现代 二居室 130㎡

霍俐明 霍俐明 7 4382273浏览 这样装修多少钱?

【案例】【棠颂】现代 别墅 360㎡

李延玲 李延玲 12 3548624浏览 这样装修多少钱?

三居室的其它案例
更多

【案例】【富贵园】古典 三居室 200㎡

博洛尼 博洛尼 6 3482459浏览 这样装修多少钱?

【案例】【中海凯旋】古典 三居室 135㎡

于自奇 于自奇 7 6448浏览 这样装修多少钱?

【案例】【世纪城远大园】古典 三居室 140㎡

薛超 薛超 6 2023浏览 这样装修多少钱?