










本项目以 “极简柔和 + 功能一体化” 为核心,采用浅暖色调与自然材质,串联起客餐厅、梳妆区、卧室、办公休憩区等空间。通过隐形收纳、光影层次(暗藏灯、天窗)与材质呼应(木饰面、柔光砖),打造出兼具通透感与舒适感的现代居所,实现美学与实用的平衡。
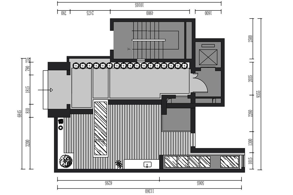
更多户型图灵感
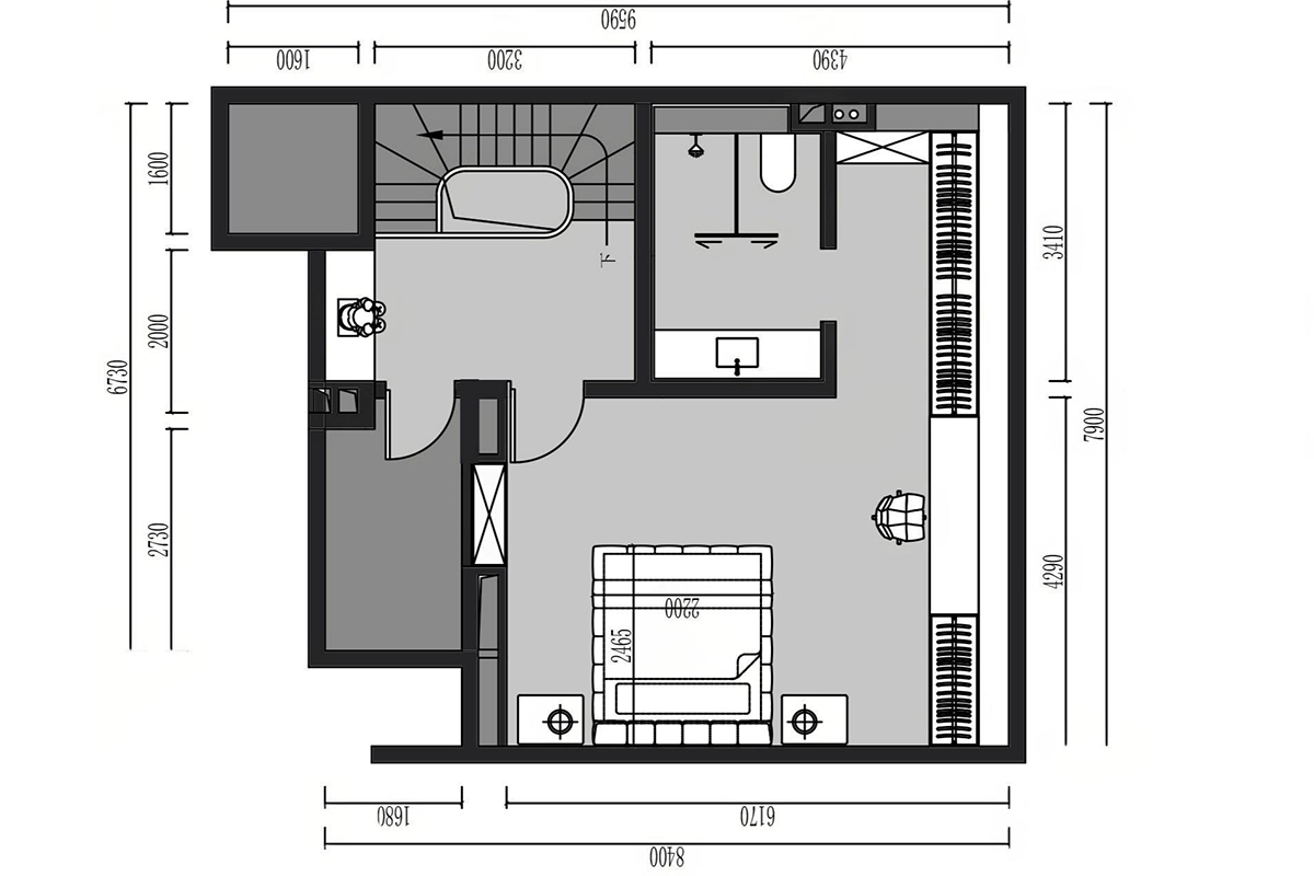
功能分层明确:低层含双车位车库 + 辅助空间;中层为餐客厨 + 卧室,满足起居;上层设双卧 + 露台,强化休憩;另有休闲层适配社交互动。空间配置完善,公私分区清晰,动线衔接流畅,适配多元生活场景。
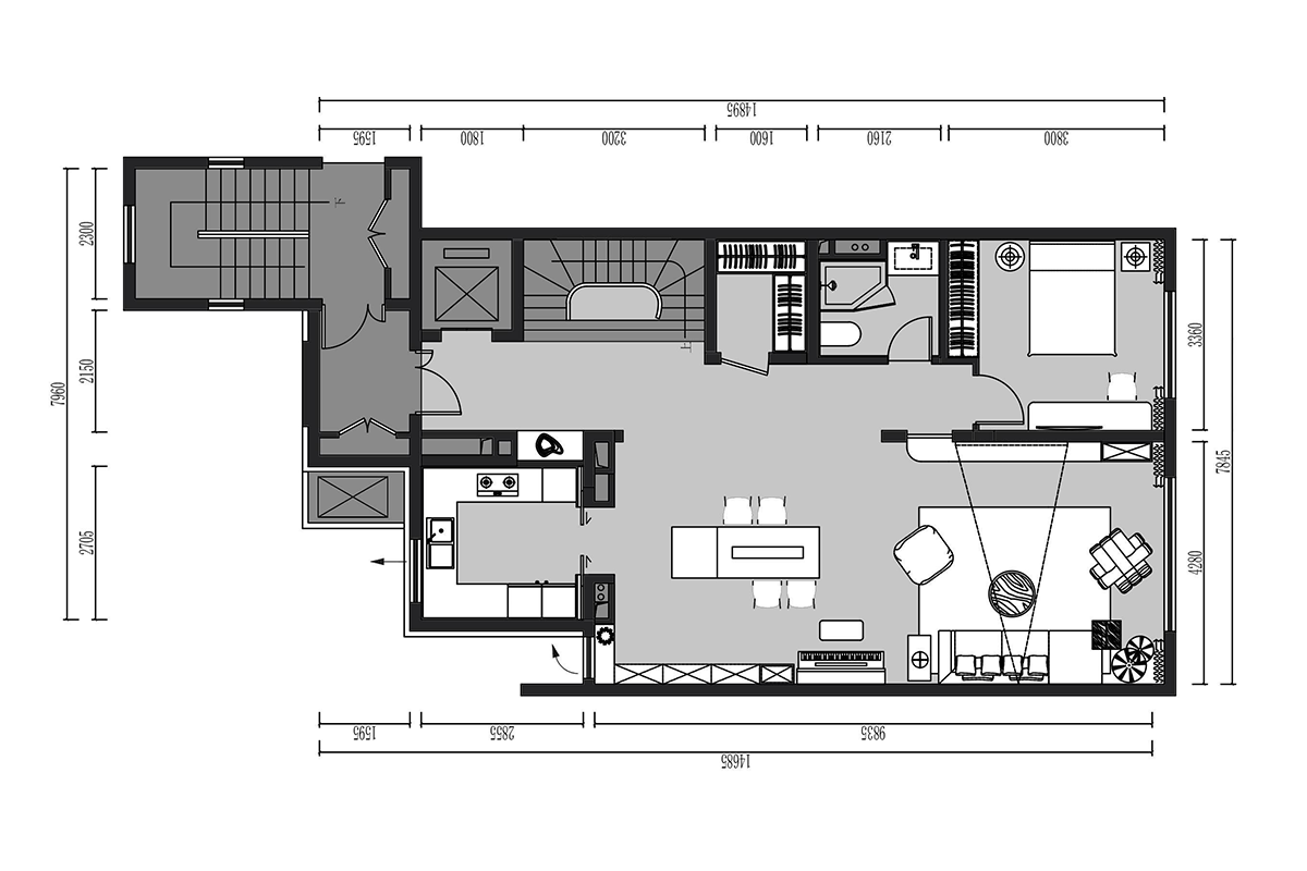
更多户型图灵感
功能分层明确:低层含双车位车库 + 辅助空间;中层为餐客厨 + 卧室,满足起居;上层设双卧 + 露台,强化休憩;另有休闲层适配社交互动。空间配置完善,公私分区清晰,动线衔接流畅,适配多元生活场景。
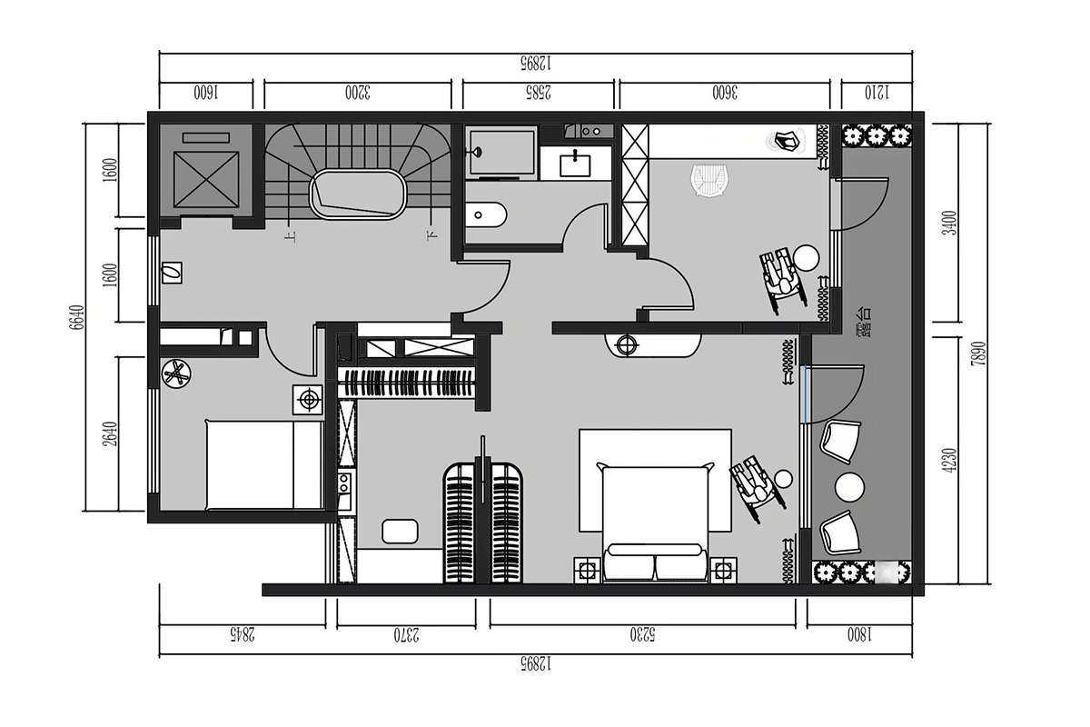
更多户型图灵感
功能分层明确:低层含双车位车库 + 辅助空间;中层为餐客厨 + 卧室,满足起居;上层设双卧 + 露台,强化休憩;另有休闲层适配社交互动。空间配置完善,公私分区清晰,动线衔接流畅,适配多元生活场景。
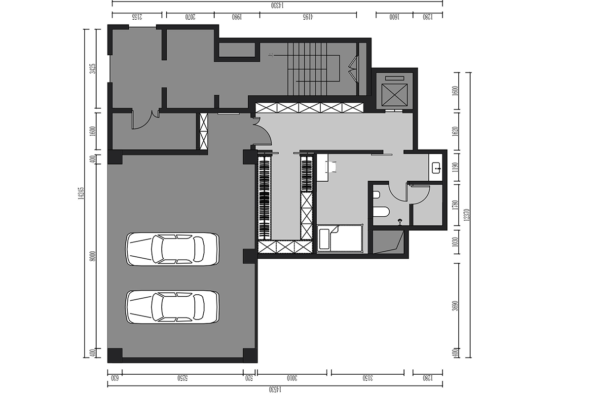
更多户型图灵感
功能分层明确:低层含双车位车库 + 辅助空间;中层为餐客厨 + 卧室,满足起居;上层设双卧 + 露台,强化休憩;另有休闲层适配社交互动。空间配置完善,公私分区清晰,动线衔接流畅,适配多元生活场景。
更多户型图灵感
功能分层明确:低层含双车位车库 + 辅助空间;中层为餐客厨 + 卧室,满足起居;上层设双卧 + 露台,强化休憩;另有休闲层适配社交互动。空间配置完善,公私分区清晰,动线衔接流畅,适配多元生活场景。
更多户型图灵感
功能分层明确:低层含双车位车库 + 辅助空间;中层为餐客厨 + 卧室,满足起居;上层设双卧 + 露台,强化休憩;另有休闲层适配社交互动。空间配置完善,公私分区清晰,动线衔接流畅,适配多元生活场景。