





本设计为现代轻奢风格住宅,平面布局功能清晰,双卧一厅配置满足居住需求。空间运用大理石、金属等材质,搭配水晶吊灯、艺术摆件,营造精致感;卧室简约雅致,书房与客厅兼具实用与格调。整体在现代简约中融入轻奢细节,打造出“时尚精致又舒适宜居”的品质空间。
更多餐厅灵感
本空间为现代风格设计,以大理石、金属为核心材质,营造轻奢大气氛围。挑高空间搭配水晶吊灯,大理石背景墙与地面尽显质感,流线型家具增添现代感,楼梯设计精致利落。整体在材质碰撞与空间层次中,打造出“奢华精致又具现代格调”的高端生活空间。
更多餐厅灵感
本空间为现代风格设计,以大理石、金属为主要材质,营造轻奢质感。几何拼接背景墙搭配水晶吊灯,大理石餐桌与皮质餐椅尽显精致,艺术摆件与绿植点缀细节。整体在材质碰撞与光影运用中,打造出“奢华大气又具现代格调”的高端用餐空间。
更多卧室灵感
本卧室为现代风格设计,以灰白、大理石纹理为基调,营造简约高级氛围。一体化柜体兼具收纳功能,艺术感床头装置与大理石背景墙彰显设计感,软装配色简洁大气。整体通过材质对比与灯光运用,打造出“简洁雅致又具艺术格调”的现代休憩空间。
更多书房灵感
本空间为现代风格设计,以木棕、深灰为基调,营造简约雅致氛围。一体化收纳柜兼具展示与储物功能,大理石桌脚书桌搭配线性灯,皮质沙发与艺术挂画增添格调,绿植与红台灯点缀活力。整体布局通透,通过材质对比与细节设计,打造出“简洁实用又具艺术感”的现代办公休闲空间。
更多衣帽间灵感
本空间为现代风格设计,以米白、木色为基调,营造简洁雅致氛围。一体化柜体兼具收纳与展示功能,布艺沙发搭配艺术边几,细节处的绿植与书籍增添生活气息。整体布局通透,通过简约线条与质感材质,打造出“简洁舒适又不失格调”的现代休闲空间。
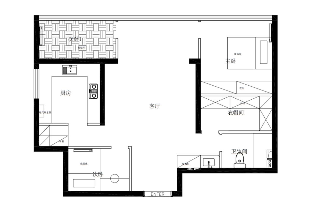
更多户型图灵感
本设计为现代风格住宅平面布局,功能分区清晰。两卧一厅配置满足居住需求,主卧带衣帽间提升收纳与品质感,厨房布局紧凑实用,卫生间功能齐全。整体动线流畅,空间利用高效,通过合理的功能划分,打造出简洁实用、适合家庭居住的现代住宅空间。