






本方案以 “温润复古,兼容实用” 为核心,打造中古风居住空间。整体采用暖米墙色为基底,搭配深棕木作、复古花砖与藤编元素,复刻怀旧肌理,传递自然温润质感。 公共区客餐厨一体,弧形门洞、裸露砖墙强化风格,嵌入式收纳与柔光灯带兼顾整洁与氛围;私密区卧室以木质床具配定制柜,卫浴融入复古花砖与智能洁具,在复古元素与现代功能间寻求平衡。 材质上融合木、藤、砖的自然肌理,色彩以暖调为主,点缀复古撞色,既保留中古风的怀旧松弛感,又适配日常居住的实用需求,营造兼具烟火气与质感的居家场域。
更多客厅灵感
中古风客餐厨区,暖米墙色为基底,深棕木作、藤编椅搭配复古置物区,复刻怀旧肌理。客餐厨一体动线流畅,柔光灯带与艺术画点缀氛围,自然材质融合嵌入式收纳,在复古质感与日常实用间平衡,营造松弛的起居场域。
更多卧室灵感
中古风卧室,暖米墙作基底,深棕木床、定制衣柜搭配藤编床头柜,复刻怀旧肌理。复古装饰画点缀细节,柔光灯带晕染松弛氛围,收纳功能与复古质感相融,在温润怀旧与起居实用间平衡,营造静谧的休憩场域。
更多卧室灵感
中古风卧室,暖白墙作基底,深棕木床、书桌复刻怀旧肌理,藤编椅点缀复古细节。书桌整合办公需求,柔光灯带与装饰画晕染松弛氛围,收纳功能与复古质感相融,在温润怀旧与起居、办公实用间平衡,营造松弛的复合场域。
更多厨房灵感
中古风厨房,暖米基底搭深棕木作复刻怀旧肌理,复古造型吧椅适配吧台互动场景。嵌入式收纳整合储物需求,柔光灯带晕染松弛氛围,自然材质与现代厨电相融,在复古质感与烹饪效率间平衡,营造温润烟火场域。
更多户型图灵感
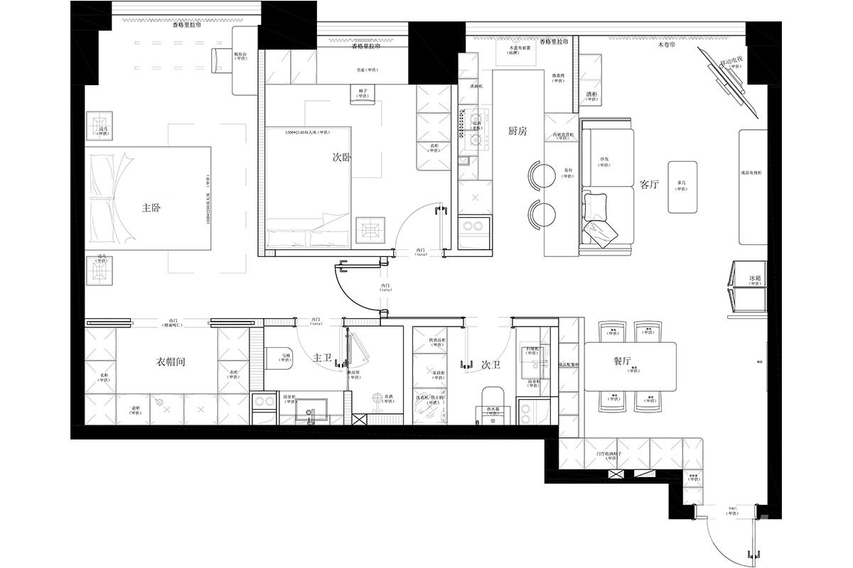
本户型布局清晰:主卧衔接衣帽间、主卫,保障私密起居;次卧独立,客餐厅分区。厨房邻餐厅动线顺畅,双卫 + 充足收纳强化实用。整体公私分明,动线合理,适配中古风的温润质感,平衡隐私与互动,契合现代家庭日常起居需求。