






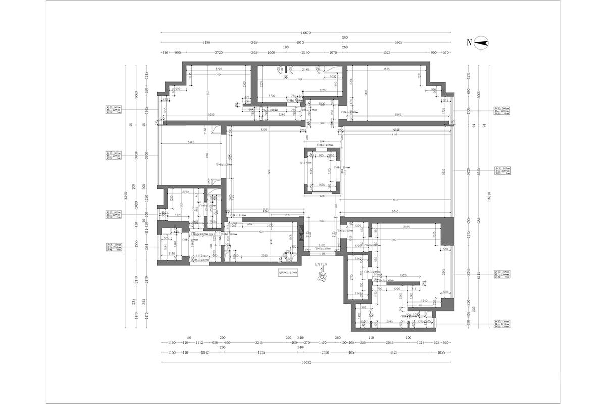
国锐金嵿户型方正、南北通透、全明格局的先天优势为基础,融合功能性与质感表达,打造兼具通透感、实用性与个性化的现代人居空间。设计立足居者生活需求,摒弃冗余装饰,通过线条、材质与光影的精妙搭配,平衡简约形态与生活温度,让空间既符合现代审美潮流,又适配家庭日常使用场景。
更多餐厅灵感
这是一个兼具现代感与艺术氛围的开放式餐厨空间,整体设计简约大气,又充满细节巧思。前景是带有白色纹理的黑色六角砖,与后方的人字拼木地板形成鲜明对比;白色岩板吧台、红色烤漆餐桌与金属质感的餐边柜相互映衬,营造出层次丰富的视觉体验。
更多卧室灵感
大面积落地窗引入充足自然光,纱帘与布帘的双层设计可灵活调节光线;顶部的悬浮吊顶与线性灯带,营造出层次丰富的光环境,让空间更显开阔与精致垂坠感的床头吊灯、肌理感的床尾毯,以及床边的简约床头柜,都在细节处提升了空间的品质感,让整个卧室既有大宅的尺度感,又不失温馨细腻的居家氛围。
更多户型图灵感
中央是超大的客餐厅一体化空间,动线流畅,是家庭活动与社交的核心。 四周分布着至少4间卧室(含1间带独立卫浴和衣帽间的主卧套房),保障居住隐私。 整体风格偏向现代简约,强调空间的通透感与功能性,适合追求舒适与品质的多人口家庭或改善型居住需求。