×
北京
手机博洛尼 售前:400-6868-692 售后:400-666-3706
所在位置/首页优秀案例/晨光家园
点击浏览下一张
案例信息
  • 楼盘名称
  • 案例风格
  • 晨光家园
  • 中古
  • 案例户型
  • 服务店面
  • 案例面积
  • 设计师
  • 72㎡
  • 梁春英
案例说明

此户型为两居室,客户是一对年轻夫妻,想要打造一个舒适便捷的居住环境。夫妻两人比较喜欢中古风,打造一种复古松弛的居住环境。

客厅
更多客厅灵感

客餐厅以现代复古为基底,融入温暖木质元素与柔和灯光,通过开放式布局与艺术陈设,营造兼具松弛感与品质感的都市栖息空间。

客厅
更多客厅灵感

客厅以现代复古为核心,通过黑色皮质沙发、艺术挂画与层次置物架营造质感,柔和灯光与撞色地毯平衡冷硬,打造兼具复古氛围与当代舒适的松弛空间。

餐厅
更多餐厅灵感

餐厅以深色木质餐桌配浅米色软包餐椅,冷暖材质碰撞出层次。单头吊灯与筒灯形成明暗对比,营造温馨仪式感,一体化餐边柜与高柜兼顾收纳与美学,让整个空间风格统一且富有节奏。

卧室
更多卧室灵感

卧室以现代简约为基调,木质床具与柔和灯光营造温润松弛感,艺术挂画与格纹地毯增添层次,整面衣柜实现高效收纳,打造兼具舒适与美学的休憩空间。

厨房
更多厨房灵感

厨房采用现代简约风格,以深浅木色与白色柜体拼接,通过一体化台面与隐藏式收纳,打造兼具美学与实用性的高效备餐空间,开放式布局也强化了与公共区域的联动。

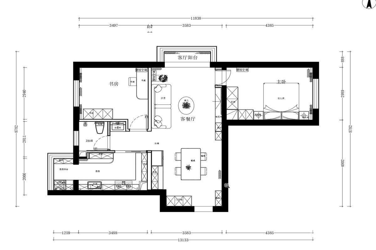
户型图
更多户型图灵感

户型是比较紧凑的两居,布局动静分区明确,客厅连通阳台提升了采光与空间感。卧室分布在两侧,能保障居住私密性,厨房靠近入户门的设计也减少了动线交叉。

本案设计师

梁春英

高级主任设计师

  1. 168次
  2. 预约数
  1. 15年
  2. 从业年限
  1. 12套
  2. 作品案例

预约TA

中古风格的其它案例
更多

【案例】【康乐里小区】中古 二居室 103㎡

张洋 张洋 6 3671浏览 这样装修多少钱?

【案例】【枫丹丽舍】中古 三居室 160㎡

吕宏音 吕宏音 6 1967浏览 这样装修多少钱?

【案例】【棕榈泉国际公寓】中古 三居室 135㎡

渠海东 渠海东 9 2903浏览 这样装修多少钱?

二居室的其它案例
更多

【案例】【御墅临枫】古典 二居室 180㎡

魏焕和 魏焕和 7 3877浏览 这样装修多少钱?

【案例】【民岳家园】古典 二居室 100㎡

尚君 尚君 6 3533浏览 这样装修多少钱?

【案例】【世纪城】古典 二居室 125㎡

赵保祚 赵保祚 6 3370947浏览 这样装修多少钱?