












现代风的核心是 “去繁就简、实用美学”,以利落线条、通透格局与质感材质为基底,摒弃冗余装饰,聚焦空间本质功能与居住舒适度。本设计针对碧湖居 B2、B1、F1、F2 层多户型结构,深度整合各楼层功能需求(入户过渡、老人照料、日常起居、休憩私享),通过 “统一风格贯穿 + 分层功能聚焦” 的思路,强化空间通透性、收纳实用性与视觉简约感,同时融入智能细节与适老化设计,打造适配多元家庭结构、兼具颜值与实用性的现代居住空间。
更多客厅灵感
一、核心视觉:质感与光影的层次构建 空间以 “材质碰撞 + 氛围灯光” 塑造记忆点: 顶面设计:采用圆形内嵌式 “月球肌理灯”,暖调光晕与金属质感的顶面层次结合,既成为视觉中心,也以柔和光线弱化空间边界,营造松弛的沉浸感; 墙面焦点:主墙面选用波纹金属材质,搭配嵌入式氛围灯带,光影在肌理表面形成流动的斑驳效果;右侧红色亚克力格栅(潮玩展示区)与之形成冷暖质感对比,强化空间的艺术先锋性。
更多客厅灵感
本空间为客厅电视墙核心区域,以 “一体化整洁感、低饱和质感层次” 为设计核心,将视觉美学与实用收纳融合,塑造高级简约且松弛舒适的客厅休闲场域,适配现代都市家庭对 “整洁美学 + 日常实用” 的双重需求。 整体以浅米色为空间主色调,搭配深棕、黑色的质感型色彩点缀,弱化视觉干扰的同时,通过材质(绒面护墙板、金属线条、大理石)的细微差异,营造 “简约不单调” 的轻奢氛围,契合现代家居的高级审美取向。
更多客厅灵感
本空间为客厅核心休闲区,以 “材质质感碰撞 + 松弛舒适体验” 为核心设计逻辑,通过低饱和中性色调基底,搭配石材、木饰面、皮质等多元质感材质,塑造高级且松弛的现代家居场域,适配家庭日常休闲、轻社交的复合需求。 整体采用 “深灰石材纹理 + 浅棕木饰面 + 黑色皮质 + 金属线条” 的材质组合,以中性低饱和色调(深灰、浅棕、米白)为基底,弱化色彩干扰,转而通过材质的肌理、软硬差异营造空间层次。
更多卧室灵感
本空间为卧室核心休憩区,以 “静谧松弛 + 自然质感” 为核心设计逻辑,通过浅木基底、艺术肌理与柔和软装的协同,塑造兼具舒适睡眠功能与美学质感的休憩场域,适配都市人群对 “卧室 —— 身心放松容器” 的需求。 整体采用 “浅木色 + 米白 + 低饱和灰” 的柔和色调组合,以自然材质的肌理替代繁复装饰,弱化视觉刺激,从色彩与质感层面构建 “松弛无压” 的睡眠环境,契合卧室 “休憩优先” 的核心属性。
更多卧室灵感
本空间为紧凑型卧室休憩区,以 “松弛睡眠 + 隐形实用 + 轻艺术点缀” 为核心设计逻辑,通过低饱和柔和基底、嵌入式功能系统与艺术元素的协同,在有限空间内兼顾舒适休憩、高效储物与审美质感,适配都市小户型对 “卧室多功能性” 的需求。
更多厨房灵感
该设计以极简轻奢的美学语言塑造高级家居氛围,通过餐厨一体化的功能布局适配现代家庭 “烹饪 + 社交” 的复合需求,实用与美学高度融合。采用餐厨一体化开放式布局,以中岛台为核心衔接点:左侧承载烹饪功能(嵌入式厨房柜体),中岛既作为厨房操作延展台,又承担餐桌功能,实现 “备餐 - 用餐” 的动线最短化;右侧通过玻璃隔断弱化空间边界,既保持餐厨区的独立感,又让光线与视觉延伸,避免封闭空间的局促感。
更多卫生间灵感
本空间为一体化卫浴功能区,以 “整洁有序、质感舒适、功能集约” 为核心设计逻辑,通过干湿分区、隐形收纳与柔和质感的协同,塑造兼具实用体验与高级美学的卫浴场域,适配现代家庭对卫浴 “舒适、高效、整洁” 的需求。
更多衣帽间灵感
本空间为入户过渡型功能过道,以 “静谧整洁、隐形实用” 为核心设计方向,通过一体化材质、隐形收纳与通透边界的处理,将过渡空间的 “通行属性” 与 “实用属性” 融合,适配整体轻侘寂 / 极简家居的氛围调性。
更多户型图灵感
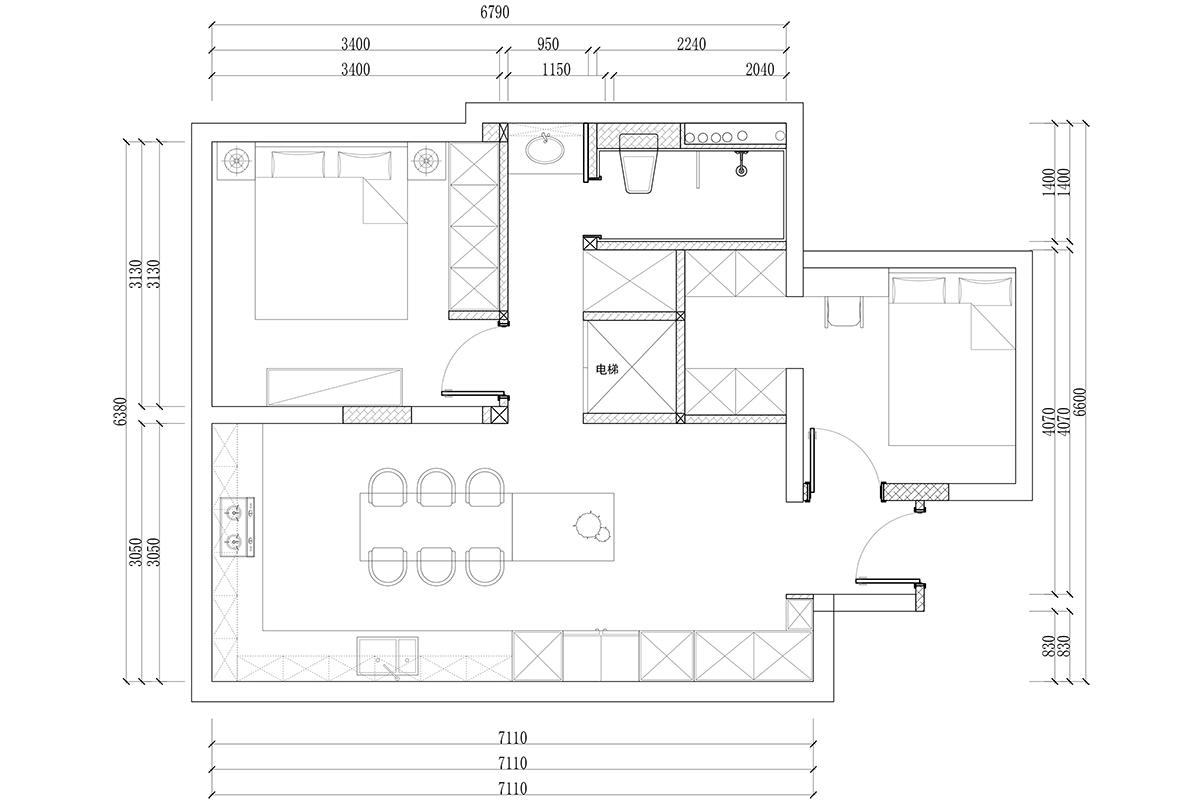
方案 F1 聚焦储物功能与生活便捷性,核心布局涵盖玄关、衣帽间、洗衣机 / 烘干机功能区,并配置定制衣柜与带灯带开放格的定制书柜,既强化了空间收纳容量,又通过灯光细节营造温馨实用的氛围。各功能区域尺寸经过精准核算对称尺寸、衣帽间等关键尺度),确保使用舒适度与空间利用率的平衡,适配日常居住中的储物、洗衣、入户过渡等核心需求。
更多户型图灵感
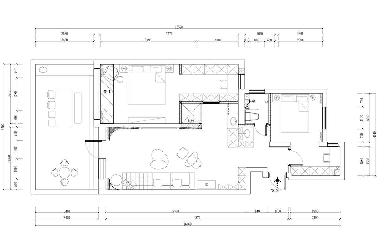
方案 B1 以空间规整性与动线适配为核心,围绕电梯位置构建对称化布局,多处重复出现的尺寸,形成统一且均衡的空间比例,让整体格局简洁有序。设计重点优化了电梯与周边空间的动线衔接,关键尺度的规划,确保通行流畅性,同时为后续功能填充预留了规整的空间基础,适合追求简洁、对称美感与高效动线的使用场景。
更多户型图灵感
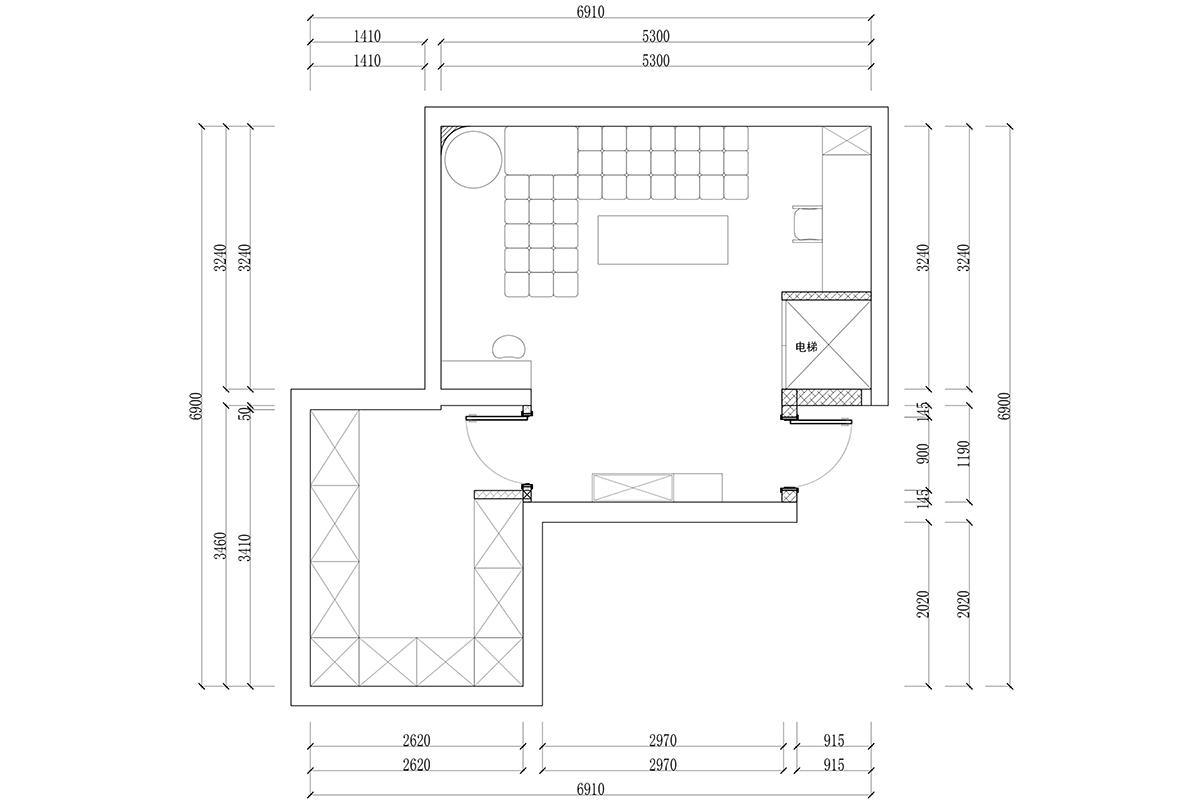
侧重功能分区的精细化与空间利用率的最大化,基于电梯动线合理划分功能区域等重复尺寸体现了标准化功能模块的规划,等差异化尺寸则适配多元使用需求。设计通过精准的尺寸分配,实现了空间功能的多元适配,既保障了核心区域的使用舒适度,又通过细节尺度的把控提升了整体空间的实用价值,适配对功能分区有明确需求的场景。