×
北京
手机博洛尼 售前:400-6868-692 售后:400-666-3706
所在位置/首页优秀案例/澳景花庭
点击浏览下一张
案例信息
  • 楼盘名称
  • 案例风格
  • 澳景花庭
  • 现代
  • 案例户型
  • 服务店面
  • 案例面积
  • 设计师
  • 150㎡
  • 胡书静
案例说明

没有繁复的装饰,只有克制的线条、温润的木饰面与天然大理石的对话;没有冗余的堆砌,只有功能与美学的完美平衡。从卧室的静谧一隅,到客餐厅的洄游动线,每一处设计都在回应他们对生活的期待——在繁华都市中,拥有一处能卸下疲惫、拥抱彼此的自在之所。

客厅
更多客厅灵感

采用“深灰色木饰面+天然大理石”的组合,大理石纹理自然大气,四周内嵌线性灯带,弱化了石材的冷硬感,营造出柔和的氛围。

餐厅
更多餐厅灵感

亚克力透明桌腿的餐桌搭配皮革餐椅,上方悬挂着几何线条造型的线性吊灯,现代感十足。背景是通顶的隐形门柜体,中间嵌入了带灯光的酒柜和展示格,既满足收纳又成为视觉亮点。

餐厅
更多餐厅灵感

浅米色的大尺寸模块沙发,搭配同色系抱枕与一条米白色毛毯,营造出舒适放松的氛围。沙发背景墙为素色哑光墙面,悬挂着九联幅黑白抽象艺术画,成为空间的艺术点缀。

餐厅
更多餐厅灵感

右侧的西橱柜整合了咖啡机等小家电,玻璃门的酒柜既展示了藏品,又保持了空间的整洁。下方的开放式格架可放置摆件或书籍,兼具实用与美观。

卧室
更多卧室灵感

• 顶面:采用无主灯设计,嵌入式线性空调出风口与顶面齐平,搭配几处小射灯,保证了顶面的简洁完整。 • 墙面与收纳:左侧是通顶的隐形门衣柜,中间嵌入了带暖光灯带的开放式格架,兼具储物与展示功能。床头背景墙为素色哑光墙面,右侧设有悬浮式书桌,搭配壁灯,形成一个小型工作区。

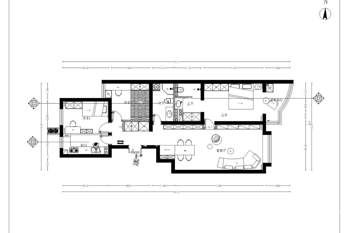
户型图
更多户型图灵感

此方案多处墙体预留了嵌入式柜体的位置,为后续的一体化收纳系统设计提供了良好的基础。多处墙体预留了嵌入式柜体的位置,为后续的一体化收纳系统设计提供了良好的基础。整体布局呈现“动静分区、南北通透”的特点,非常适合现代家庭的生活方式。

本案设计师

胡书静

高级主任设计师

  1. 168次
  2. 预约数
  1. 9年
  2. 从业年限
  1. 23套
  2. 作品案例

预约TA

现代风格的其它案例
更多

【案例】【金茂府】现代 四居室 140㎡

渠海东 渠海东 7 845500浏览 这样装修多少钱?

【案例】【万国城】现代 二居室 130㎡

霍俐明 霍俐明 7 4382480浏览 这样装修多少钱?

【案例】【棠颂】现代 别墅 360㎡

李延玲 李延玲 12 3548902浏览 这样装修多少钱?

三居室的其它案例
更多

【案例】【富贵园】古典 三居室 200㎡

博洛尼 博洛尼 6 3482770浏览 这样装修多少钱?

【案例】【中海凯旋】古典 三居室 135㎡

于自奇 于自奇 7 6968浏览 这样装修多少钱?

【案例】【世纪城远大园】古典 三居室 140㎡

薛超 薛超 6 2247浏览 这样装修多少钱?