×
北京
手机博洛尼 售前:400-6868-692 售后:400-666-3706
所在位置/首页优秀案例/大成郡
点击浏览下一张
案例信息
  • 楼盘名称
  • 案例风格
  • 大成郡
  • 现代
  • 案例户型
  • 服务店面
  • 案例面积
  • 设计师
  • 123㎡
  • 崔洪刚
案例说明

本方案为三卧两卫户型,以动静分区为核心,主卧套房设计保障私密,次卧灵活适配多元需求。客餐厅一体化拓展社交尺度,书房与家政区整合功能,动线流畅,兼顾实用与品质。

客厅
更多客厅灵感

以米白、浅杏为基底,胡桃木与深黑点缀,打造温润克制的社交空间。L型模块化沙发界定休憩区,无拉手电视背景柜保持立面整洁。线性磁吸灯与落地灯营造层次,软装抱枕与绿植呼应现代感与自然气息。

卧室
更多卧室灵感

以米白、浅棕为主色,胡桃木色与金属线条传递温暖高级感。软包大床为核心,悬浮床头柜整合收纳,靠窗书桌形成独立办公区。床头灯带与极简吊灯营造柔和氛围,床品与窗帘强化空间统一性,平衡理性与感性。

书房
更多书房灵感

以纯白与深黑为对比,胡桃木色过渡塑造利落质感。整面玻璃门展示柜整合储物与展示,内置灯带强化效果。悬浮书桌形成高效办公区,线性灯与筒灯营造层次,自然光柔化引入,平衡专注与放松。

书房
更多书房灵感

以米白与胡桃木色为基调,打造兼具办公与休闲的复合空间。悬浮书桌与透明单椅形成高效办公区,榻榻米与蒲团界定休憩区。线性灯带与台灯营造柔和氛围,自然光透过卷帘柔化引入,平衡理性与松弛。

卫生间
更多卫生间灵感

以浅灰大理石纹岩板为基底,胡桃木色柜体点缀,传递精致质感。悬浮式台盆柜整合收纳,智能镜柜兼具照明与储物。淋浴区采用玻璃隔断,线性灯与筒灯营造层次,实现功能与美学的统一。

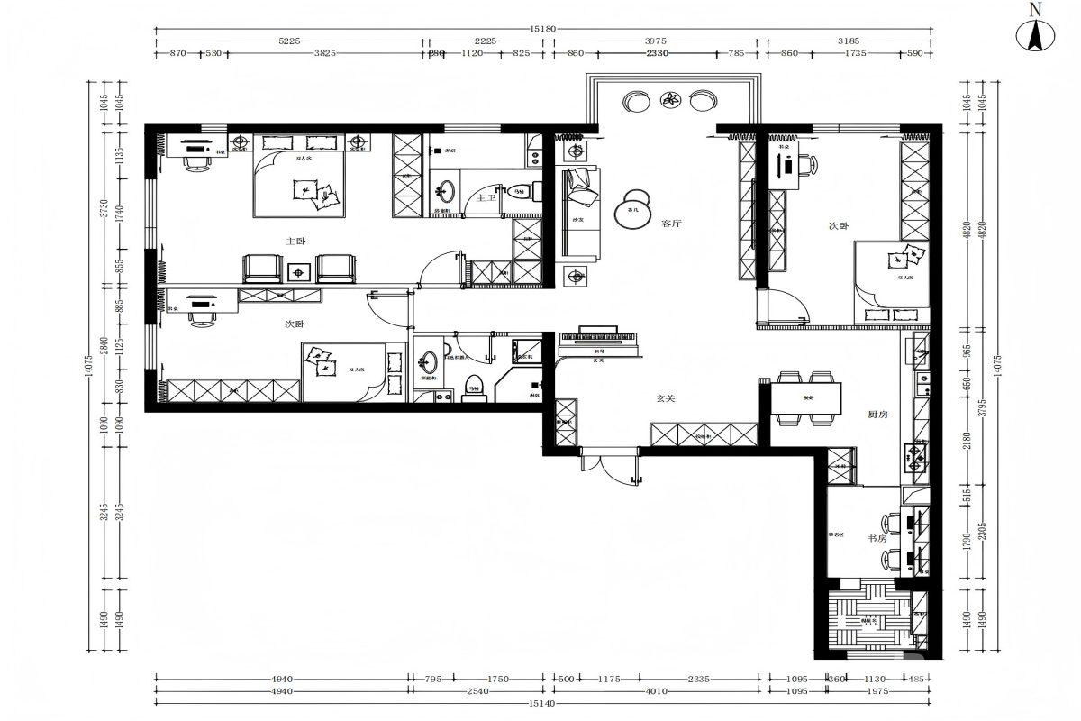
户型图
更多户型图灵感

本方案为三卧两卫户型,以现代简约为基调,动静分区清晰。主卧套房保障私密,次卧灵活适配多元需求。客餐厅一体化拓展社交尺度,书房与家政区整合功能,动线流畅,兼顾实用与品质。

本案设计师

崔洪刚

特级主任设计师

  1. 168次
  2. 预约数
  1. 12年
  2. 从业年限
  1. 8套
  2. 作品案例

预约TA

现代风格的其它案例
更多

【案例】【金茂府】现代 四居室 140㎡

渠海东 渠海东 7 844979浏览 这样装修多少钱?

【案例】【万国城】现代 二居室 130㎡

霍俐明 霍俐明 7 4382010浏览 这样装修多少钱?

【案例】【棠颂】现代 别墅 360㎡

李延玲 李延玲 12 3548124浏览 这样装修多少钱?

三居室的其它案例
更多

【案例】【富贵园】古典 三居室 200㎡

博洛尼 博洛尼 6 3481933浏览 这样装修多少钱?

【案例】【中海凯旋】古典 三居室 135㎡

于自奇 于自奇 7 5493浏览 这样装修多少钱?

【案例】【世纪城远大园】古典 三居室 140㎡

薛超 薛超 6 1689浏览 这样装修多少钱?