





本项目为一对年轻程序员夫妇的住宅,设计以 **“高效、舒适、多元”** 为核心,打造兼具工作与生活属性的现代居所。 整体采用原木与浅灰为主调,搭配柔和的线性灯光,营造出温暖、松弛的氛围。空间布局上,通过开放式吧台、隐形床等设计,实现了餐厨、办公、休闲等功能的灵活切换,满足了程序员高效工作与居家放松的双重需求。 细节处,定制的开放格与洞洞板,为书籍、设备和灵感素材提供了有序的收纳;而卧室的低饱和度配色与柔软的布艺,则为高强度工作后的深度休憩提供了保障。整个空间在克制的美学表达中,实现了功能与情感的平衡,成为承载职业属性与生活温度的理想容器。
更多客厅灵感
本空间为开放式客餐厨一体区,以 “高效社交与松弛休闲共生” 为核心,适配程序员夫妇的日常场景。 原木餐桌搭配藤编座椅,满足轻社交与日常用餐需求;浅灰沙发区作为放松与临时办公的过渡,线性灯带与柔和射灯勾勒温暖克制的氛围。隐形床设计(从整体方案延伸)实现空间功能灵活切换,弱化边界的布局提升通透感,让理性布局与生活温度自然融合,适配高频居家办公与休闲需求。
更多客厅灵感
开放书架与玻璃移门划分办公与休闲区,吧台衔接咖啡角与客厅,移动电视与可移动茶几适配灵活场景。原木与浅灰基调搭配线性灯带,弱化边界提升通透感,既满足设备收纳、轻办公需求,又为休闲娱乐提供松弛容器,让理性布局与生活温度自然融合。
更多卧室灵感
本卧室以 “静谧休憩与轻妆办公共生” 为核心,为程序员夫妇打造高效与松弛并存的空间。 浅灰墙面搭配原木家具,弱化视觉重量;床头线性灯带与柔和吊灯勾勒静谧氛围,为高强度工作后的深度休憩提供保障。悬浮梳妆台与整面收纳柜整合,满足轻办公与衣物收纳需求;浅色系软装平衡科技感,让理性布局与生活温度自然融合,成为高效工作与静谧休憩的过渡容器。
更多儿童房灵感
本卧室以 “松弛休憩与轻办公共生” 为核心,适配孩子的日常需求。 低饱和浅蓝墙面搭配竖纹软包床头,弱化视觉重量,床头暗藏灯带勾勒柔和氛围,为高强度工作后的深度休憩提供保障。书桌与开放书架整合,满足睡前阅读或轻办公需求;原木家具与布艺软装平衡科技感,让理性与温暖自然融合,成为高效工作与静谧休憩的过渡容器。
更多其他灵感
本空间作为餐厨与办公区的过渡节点,以 “高效与仪式感共生” 为核心,服务于程序员夫妇的日常。 开放式吧台衔接咖啡角与双工位办公区,玻璃移门分隔厨卫,既保证空间通透,又实现功能独立。原木柜体搭配大理石台面,线性灯带勾勒层次,营造温暖克制的氛围。咖啡角满足晨间仪式感,吧台可作临时办公或轻食区,开放收纳规整设备与食材,适配高频居家办公与休闲需求,让理性布局与生活温度自然融合。
更多户型图灵感
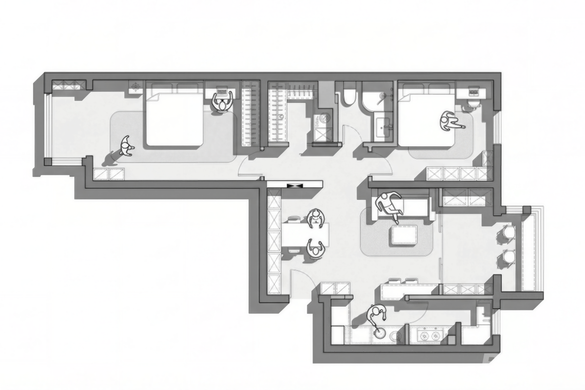
为程序员夫妇打造高效居所,**L型动线串联餐厨、双办公区与双卧休憩区**,以玻璃隔断实现空间通透与功能独立。 开放式吧台衔接客餐厨,隐形床灵活切换办公/睡眠模式,定制收纳规整设备与素材。原木浅灰基调搭配线性光,让理性布局与松弛氛围共生。