







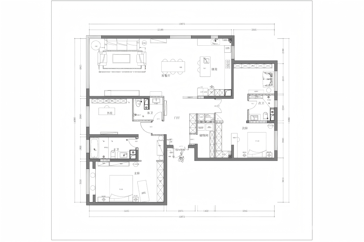
本案233平米,平层,三口人和狗儿子,主要强调个人空间使用具有私密性和公共空间衔接感。女儿25岁喜欢哈利波特元素,女业主基本退休状态,喜欢养花,品茶。男业主上市公司高管,喜欢研究智能,不喜欢太复杂。将四个卧室重新做了布局规划。女儿和父母都有自己独立的衣帽间书房卫生间。厨房做开放式用地板通铺直接将客厅和餐厅融为一体,风格上体现家的温馨和女主人喜欢的简美带一点中古元素。
更多餐厅灵感
以现代简约为基底,融合轻复古的温润质感,摒弃繁杂装饰,用低饱和色调与经典材质打造“实用且有温度”的餐厨空间,平衡现代餐厨的高效功能与复古生活的松弛感,让烹饪与用餐成为一场温柔的生活仪式。
更多儿童房灵感
以“霍格沃茨公共休息室+学生宿舍”为情绪核心,通过低饱和橄榄绿墙面、深木色家具与暖光照明,复刻魔法学院宿舍的温暖静谧感,既保留复古英伦的优雅,又传递出“被魔法包裹的安全感”,让卧室成为逃离现实的精神庇护所。
更多户型图灵感
本案233平米,平层,三口人和狗儿子,主要强调个人空间使用具有私密性和公共空间衔接感。 女儿25岁喜欢哈利波特元素 女业主基本退休状态,喜欢养花,品茶。 男业主上市公司高管,喜欢研究智能,不喜欢太复杂。 将四个卧室重新做了布局规划。 女儿和父母都有自己独立的衣帽间书房卫生间。 厨房做开放式用地板通铺直接将客厅和餐厅融为一体 风格上体现家的温馨和女主人喜欢的简美带一点中古元素。