×
北京
手机博洛尼 售前:400-6868-692 售后:400-666-3706
所在位置/首页优秀案例/亿城天筑
点击浏览下一张
案例信息
  • 楼盘名称
  • 案例风格
  • 亿城天筑
  • 现代
  • 案例户型
  • 服务店面
  • 案例面积
  • 设计师
  • 120㎡
  • 刘一禛
案例说明

本复式设计以一层为公共活动区,打造通透客餐厅与起居空间;二层为私密静区,规划书房、储物间与独立卫浴。优化动线,强化动静分区,提升收纳效率,兼顾实用性与舒适度,打造全家庭宜居空间。

客厅
更多客厅灵感

以挑高斜顶打造开阔通透感,利用夹层定制玻璃展示柜,陈列潮玩藏品。无主灯设计搭配艺术挂画,营造兼具收纳、展示与休闲的多元家庭核心空间。

客厅
更多客厅灵感

以挑高斜顶打造开阔通透感,大理石电视墙提升质感,线性灯与艺术吊灯营造层次。弧形拱门柔化空间,打造大气雅致的家庭核心活动区。

卧室
更多卧室灵感

以温润原木与奶白为主调,打造通顶衣柜最大化收纳。无主灯设计营造柔和氛围,搭配落地窗引景入室,营造静谧松弛、舒适治愈的睡眠空间。

卧室
更多卧室灵感

以温润原木打造飘窗书桌一体区,兼顾学习与采光。通顶衣柜满足收纳,趣味挂画与玩具点缀,营造活泼治愈、适配成长的童趣睡眠学习空间。

书房
更多书房灵感

利用斜顶空间打造整墙开放式书柜,最大化藏书收纳。以原木温润质感营造静谧氛围,搭配休闲椅与书桌,兼顾办公、阅读与放松,打造沉浸式书房空间。

书房
更多书房灵感

依托斜顶空间打造整墙开放式书柜,最大化藏书收纳。原木温润基调搭配舒适家具,营造静谧专注的办公、阅读氛围,打造沉浸式书房空间。

其他
更多其他灵感

利用楼梯侧墙打造通高玻璃展示柜,嵌入灯带,既盘活闲置空间,又为潮玩手办提供展示载体,兼顾收纳与颜值,让楼梯成为家中趣味焦点。

其他
更多其他灵感

以极简手法打造通透走廊,线性灯引导动线,端景造景弱化狭长感,温润色调与无主灯设计相融,营造静谧雅致的归家过渡空间。

户型图
更多户型图灵感

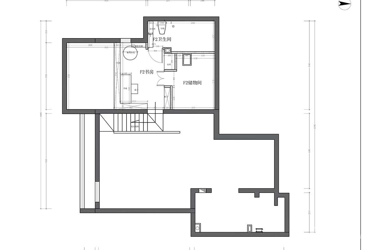
本方案以二层为静谧私域,打造独立书房满足办公学习需求,配套卫生间提升使用便利性。整合储物间优化收纳,预留灵活空间适配家庭成长,动静分区明确,营造安静舒适的私密生活与工作场景。

户型图
更多户型图灵感

本次设计以通透开放为核心,优化客餐厅动线,强化空间互动感。合理规划动静分区,保障主卧、儿童房私密性;整合储物空间,提升收纳效率。兼顾采光与通风,打造舒适宜居、功能完备的家庭生活空间。

本案设计师

刘一禛

特级主任设计师

  1. 173次
  2. 预约数
  1. 15年
  2. 从业年限
  1. 95套
  2. 作品案例

预约TA

现代风格的其它案例
更多

【案例】【金茂府】现代 四居室 140㎡

渠海东 渠海东 7 845500浏览 这样装修多少钱?

【案例】【万国城】现代 二居室 130㎡

霍俐明 霍俐明 7 4382480浏览 这样装修多少钱?

【案例】【棠颂】现代 别墅 360㎡

李延玲 李延玲 12 3548902浏览 这样装修多少钱?

三居室的其它案例
更多

【案例】【富贵园】古典 三居室 200㎡

博洛尼 博洛尼 6 3482770浏览 这样装修多少钱?

【案例】【中海凯旋】古典 三居室 135㎡

于自奇 于自奇 7 6968浏览 这样装修多少钱?

【案例】【世纪城远大园】古典 三居室 140㎡

薛超 薛超 6 2247浏览 这样装修多少钱?