×
北京
手机博洛尼 售前:400-6868-692 售后:400-666-3706
所在位置/首页优秀案例/华腾园
点击浏览下一张
案例信息
  • 楼盘名称
  • 案例风格
  • 华腾园
  • 现代
  • 案例户型
  • 服务店面
  • 案例面积
  • 设计师
  • 100㎡
  • 刘一禛
案例说明

本方案以客餐厅为家庭核心,优化洄游动线,串联起居、餐厨空间。主卧带独立衣帽间与主卫,保障私密;次卧灵活适配,厨房动线流畅,兼顾采光通风,打造功能完备、舒适宜居的全家庭空间。

客厅
更多客厅灵感

以高级奶油调为主,大理石背景墙彰显质感。悬浮吊顶搭配无主灯照明,流线型软装点缀,打造大气静谧、温馨治愈的家庭核心社交区。

客厅
更多客厅灵感

采用法式奶咖配色,石膏线门垛提升精致度,彩色地毯点亮空间,悬浮电视柜优化收纳,打造通透舒适、氛围感拉满的现代法式客厅。

客厅
更多客厅灵感

以温润奶白为基调,法式石膏线勾勒精致感,彩色地毯注入活力,悬浮电视柜扩容收纳,无主灯营造柔和氛围,打造温馨治愈、灵动松弛的家庭核心社交区。

客厅
更多客厅灵感

以温润奶白为基底,原木柜体混搭牛油果绿沙发,彩色地毯点亮空间。悬浮书柜兼具收纳与展示,打造温馨治愈、色彩灵动的家庭核心区。

餐厅
更多餐厅灵感

采用法式奶白配色,岛台餐桌联动餐厨,洞洞板提升入户实用性,艺术挂画点亮空间,打造通透舒适、氛围感拉满的现代法式餐厨区。

餐厅
更多餐厅灵感

以温润奶白与原木为基调,岛台餐桌一体串联餐厨,通顶柜最大化收纳,无主灯营造柔和氛围,打造动线流畅、温馨治愈的全功能餐厨空间。

卧室
更多卧室灵感

以温润奶咖为基调,洞洞板+层架打造灵活收纳,床桌一体化布局,兼顾睡眠、办公与展示,无主灯营造柔和氛围,打造实用通透、适配成长的多功能空间。

卧室
更多卧室灵感

采用极简奶咖配色,艺术背景墙提升空间质感,无主灯营造柔和氛围,通顶衣柜优化收纳,打造舒适通透、高级感十足的主卧休憩区。

卧室
更多卧室灵感

以温润原木为基调,通顶衣柜最大化收纳,内嵌开放格打造展示区,无主灯营造柔和氛围,打造静谧松弛、实用通透的多功能休憩空间。

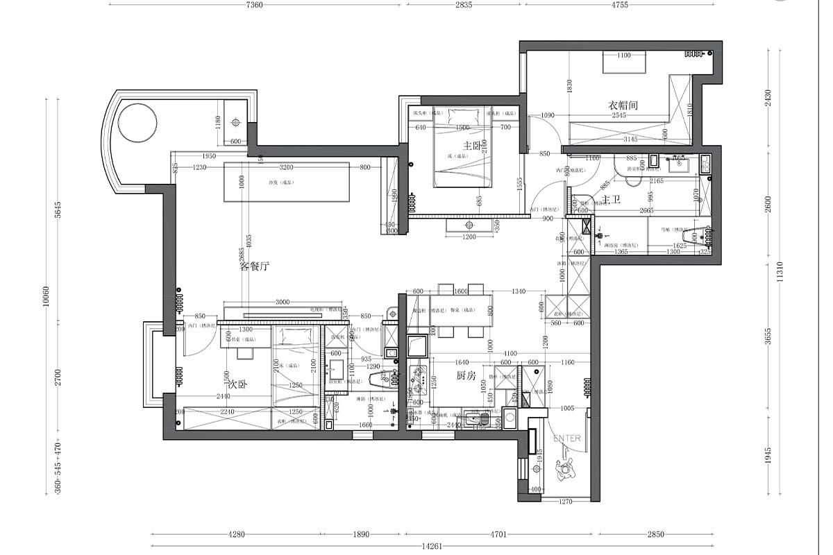
户型图
更多户型图灵感

以客餐厅为公共活动核心,强化动静分区,主卧套间提升居住品质,次卧满足多元需求。厨房动线合理,收纳系统完善,最大化空间利用率,打造通透舒适、功能齐全的改善型住宅。

本案设计师

刘一禛

特级主任设计师

  1. 173次
  2. 预约数
  1. 15年
  2. 从业年限
  1. 95套
  2. 作品案例

预约TA

现代风格的其它案例
更多

【案例】【金茂府】现代 四居室 140㎡

渠海东 渠海东 7 845500浏览 这样装修多少钱?

【案例】【万国城】现代 二居室 130㎡

霍俐明 霍俐明 7 4382480浏览 这样装修多少钱?

【案例】【棠颂】现代 别墅 360㎡

李延玲 李延玲 12 3548902浏览 这样装修多少钱?

三居室的其它案例
更多

【案例】【富贵园】古典 三居室 200㎡

博洛尼 博洛尼 6 3482770浏览 这样装修多少钱?

【案例】【中海凯旋】古典 三居室 135㎡

于自奇 于自奇 7 6968浏览 这样装修多少钱?

【案例】【世纪城远大园】古典 三居室 140㎡

薛超 薛超 6 2247浏览 这样装修多少钱?