×
北京
手机博洛尼 售前:400-6868-692 售后:400-666-3706
所在位置/首页优秀案例/上城郡
点击浏览下一张
案例信息
  • 楼盘名称
  • 案例风格
  • 上城郡
  • 原木
  • 案例户型
  • 服务店面
  • 案例面积
  • 设计师
  • 215㎡
  • 杨明
案例说明

本四层叠墅通体采用现代原木风,以“白+木”为基调,营造温润自然的居住氛围。一层为社交中枢,客餐厨一体化通透布局,采光视野极佳,动线流畅;二层为私密起居层,双卧双卫动静分离;三层为独立主卧套房,搭配卫浴与衣帽间,尊享私域;四层为多功能弹性空间,可随心改造为书房、客房或工作室,适配多元生活。整体动线清晰,收纳体系完善,全方位提升居住品质与生活格调。

客厅
更多客厅灵感

打造温润现代原木风客厅。米白沙发搭配木质扶手休闲椅,圆形茶几层次丰富,艺术感吊灯提升氛围。粉色花砖绿植区增添生机,整屋线条柔和,采光通透,营造出松弛治愈的居家氛围。

客厅
更多客厅灵感

同系列客厅呈现电视墙视角,深胡桃木整墙电视柜收纳充足,开放式置物架摆放绿植,弱化空间单调感。同系列吊灯呼应整体,左侧嵌入式书柜兼具展示与收纳,客餐厨一体化布局开阔通透,风格统一且实用。

客厅
更多客厅灵感

客厅临落地窗布局,引入充足自然采光,纱帘柔化光线,营造慵懒氛围。米白沙发搭配艺术挂画,木质家具温润自然,异形地毯勾勒会客区,绿植点缀生机,空间通透开阔,兼具颜值与舒适感,适配原木风调性。

餐厅
更多餐厅灵感

厨房采用上下分色橱柜,上白下棕适配原木风,大理石纹台面干净整洁,开放式置物架增加烟火气。餐台紧邻厨房,动线流畅,白色餐椅搭配木质餐桌,简约吊灯提升氛围感,空间整洁实用,兼顾美观与操作便利性。

餐厅
更多餐厅灵感

餐厅视角望向客厅,空间动线流畅,客餐厨一体化布局开阔通透。木质餐桌搭配简约餐椅,花艺装饰提升温馨感,同系列吊灯呼应整体,客厅休闲区清晰可见,采光充足,风格统一,营造出舒适的家庭互动空间。

卧室
更多卧室灵感

主卧打造静谧休憩空间。实木床架温润自然,搭配对称式床头柜,落地灯与壁灯营造柔和氛围,休闲椅临窗而设,整墙收纳柜满足储物需求,空间开阔通透,采光充足,舒适感拉满。

卧室
更多卧室灵感

电视墙采用上下分色设计,上白下棕与整体风格统一,嵌入式电视+整墙收纳柜,兼顾观影与储物功能。休闲椅搭配同色系软包,线条简约流畅,纱帘柔化光线,空间整洁大气,提升主卧的实用性与高级感。

卧室
更多卧室灵感

主卧临落地窗布局,双纱帘设计兼顾采光与隐私,嵌入式电视墙收纳充足,休闲椅打造观景角落。实木床架质感温润,空间动线流畅,采光视野极佳,营造出静谧舒适的睡眠氛围。

卧室
更多卧室灵感

床头做深木饰面硬包,搭配悬浮床头柜与艺术摆件;床尾白色长凳搭棕毯提升质感。窗边绿植焕活氛围,书桌与吊灯打造办公区,整体静谧舒适,兼具休憩与实用功能。

卧室
更多卧室灵感

全景展示藏书墙与办公区的完美结合,白色柜体整洁大气,竖向分类收纳书籍,层次清晰。伸缩梯方便取阅高层书籍,书桌紧邻窗户,采光极佳,打造兼具颜值与实用性的书香空间。

卧室
更多卧室灵感

次卧以奶白墙面搭配原木家具,清新柔和。床头艺术画增添生机,白色床品干净舒适。整墙衣柜收纳充足,书桌与吊灯打造办公区,暖黄窗帘与球形灯营造松弛氛围,兼具休憩与工作功能。

卧室
更多卧室灵感

空间整合次卧与藏书墙,白色柜体统一整洁,顶部收纳摆件提升格调。临窗采光舒适,伸缩梯方便取书,灵活切换休憩与办公模式,空间利用率极高。

书房
更多书房灵感

打造温润原木风多功能书房,搭配暖棕实木书桌,条纹沙发床兼具休憩与客卧功能。暖棕窗帘柔化光线,艺术挂画提升格调,开放式书架满足收纳,空间通透舒适,可灵活切换书房、客房等多元场景。

厨房
更多厨房灵感

厨房临窗布局,引入自然采光,视野开阔。上下分色橱柜实用美观,五金挂件收纳整洁,餐台紧邻厨房,操作动线顺畅。木质餐桌搭配白色餐椅,花艺与果盘点缀,简约吊灯提升氛围,整屋温馨治愈,适配原木风。

厨房
更多厨房灵感

延续现代原木风,采用上白下棕的经典橱柜配色,大理石纹岩板通铺墙面,干净通透。引入自然采光与山景视野,嵌入式洗碗机提升实用性,艺术挂画点缀空白墙面,操作区整洁有序,兼顾颜值与烟火气。

玄关
更多玄关灵感

过道打造简约过渡空间。隐形门设计弱化结构,保持立面整洁,嵌入式壁灯提升氛围感,艺术挂画点缀墙面,衔接餐厅与其他功能区,动线流畅,细节处彰显原木风的简约高级感。

玄关
更多玄关灵感

定制整墙收纳柜,柜门+深木色地台,简约大气,内嵌氛围灯提升质感。换鞋凳方便日常使用,全身镜拓展空间感,挂衣区满足日常需求,收纳与颜值兼具,打造整洁有序的更衣空间,适配整体风格。

卫生间
更多卫生间灵感

卫生间暖棕浴室柜搭配奶白台面,智能马桶提升居住品质,智能镜柜带时间显示,兼具收纳与氛围感。电热毛巾架实用贴心,花艺装饰增添温馨感,墙地通铺浅色系瓷砖,空间干净明亮,干湿分离布局合理。

卫生间
更多卫生间灵感

卫浴干区延续温润调性,奶白台面搭配深木下柜,智能镜柜带氛围灯带,兼具收纳与梳妆功能。黑色五金精致利落,花艺摆件柔化空间,旁侧可见浴缸区,整体干净整洁,打造舒适治愈的洗漱体验。

卫生间
更多卫生间灵感

卫浴湿区配色清爽,上白下棕的瓷砖墙面耐脏且协调。双窗采光充足,黑色窗框线条利落。智能马桶提升舒适,毛巾架与五金件精致实用,干湿分离布局合理,打造整洁高效的卫浴空间。

户型图
更多户型图灵感

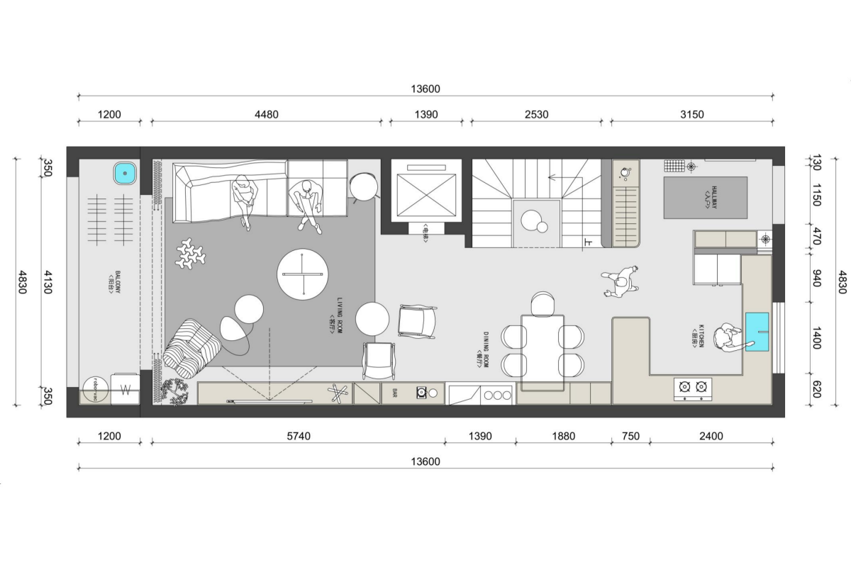
一层为全明公共活动层,客餐厅一体化大横厅,空间开阔通透,采光视野拉满。厨房紧邻餐厅,操作动线流畅,楼梯居中划分功能区,入户玄关过渡自然,动静分区清晰,既满足家庭社交,又适配现代原木风的简约舒适。

户型图
更多户型图灵感

三层为独立主卧套房层,超大主卧带步入式衣帽间与主卫,功能齐全。独立卫浴配浴缸,提升居住品质,南向采光极佳,空间私密静谧,打造专属休憩天地,完美适配现代简约风的舒适与质感,尽显居住格调。

户型图
更多户型图灵感

二层为双卧双卫起居层,双卧室朝南,采光充足,独立卫浴保障隐私。中间楼梯与过渡区衔接,动静分离合理,空间利用率高,既满足家人分房居住需求,又保留私密感,与整体原木风的温润质感高度契合。

户型图
更多户型图灵感

四层为灵活多功能层,次卧室+休闲区布局,独立卫生间配套齐全,空间通透,既能做儿童房、客房,拓展性极强,为家庭生活预留充足弹性,适配多元居住需求。

本案设计师

杨明

高级主任设计师

  1. 168次
  2. 预约数
  1. 16年
  2. 从业年限
  1. 6套
  2. 作品案例

预约TA

原木风格的其它案例
更多

【案例】【北京香颂】原木 跃层/loft 370㎡

渠海东 渠海东 14 1325345浏览 这样装修多少钱?

【案例】【玉桥南里】原木 二居室 95㎡

张时月 张时月 6 448756浏览 这样装修多少钱?

【案例】【金域学府】原木 二居室 82㎡

倪美苹 倪美苹 6 171818浏览 这样装修多少钱?

别墅的其它案例
更多

【案例】【龙熙瓦德拉玛庄园】古典 别墅 1314㎡

博洛尼 博洛尼 6 3506010浏览 这样装修多少钱?

【案例】【自在香山】古典 别墅 300㎡

高宏寅 高宏寅 6 1539355浏览 这样装修多少钱?

【案例】【懋源景玺】古典 别墅 775㎡

渠海东 渠海东 11 823600浏览 这样装修多少钱?