










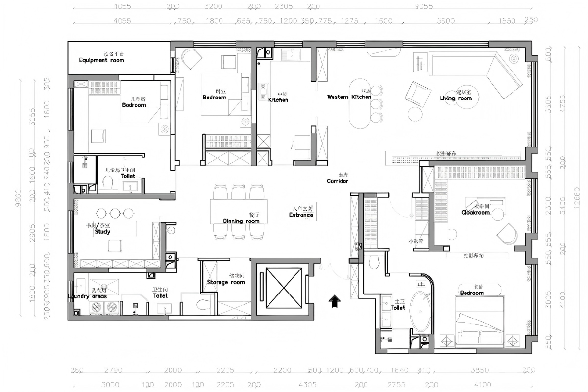
本户型为大平层空间,采用现代简约轻奢风格,以低饱和米白为基底,融入金属线条与岩板材质,打造通透大气的居住氛围。户型动静分区清晰,客餐厨一体化布局放大社交尺度,三卧三卫满足全家庭需求,中西双厨提升生活品质。设计以极简线条勾勒空间秩序,通过定制收纳、通透隔断与精致软装,兼顾实用性与高级感,打造舒适通透的品质人居。
更多客厅灵感
电视背景墙采用悬浮式一体化设计,搭配隐形内嵌柜体与氛围灯带,弱化墙体厚重感,实现视觉与实用的双重平衡。浅奶油质感墙面搭配深色木质开放格,形成冷暖材质碰撞,层次分明;下方悬浮地台拓展功能台面,搭配极简几何造型茶几与线条感休闲单椅,客餐厅空间动线流畅,整体轻奢质感内敛高级。
更多客厅灵感
客厅依托大面积落地窗打造通透采光界面,双层布艺窗帘兼顾遮光与柔光需求,实现光影自由调控。悬浮式电视背景墙延续整体简约设计语言,白色布艺沙发与黑色皮质休闲单椅形成色彩对比,中和空间单调感;顶面线性灯带勾勒空间层次,大面积留白设计赋予空间呼吸感,营造出开阔舒展、松弛惬意的居家休憩氛围。
更多餐厅灵感
采用一体化布局,中岛餐桌搭配竖纹肌理饰面,弱化柜体体积感,提升空间通透度。墙面嵌入式直饮机设计,优化家居生活动线,实用性拉满;百叶窗引入柔和自然光,温润光影铺满空间,暖白色定制柜体提亮整体色调,造型简约的艺术吊灯成为视觉焦点,兼具照明与装饰属性,塑造出舒适且高级的餐厨社交氛围。
更多卧室灵感
次卧空间主打温馨静谧的居住体验,床头采用软包拼接线条造型设计,摒弃繁杂装饰,凸显简约质感。墙面搭配简约装饰画,填补空白的同时提升艺术氛围,浅原木色床头柜与温润地板形成材质呼应,中和墙面冷调质感;地面铺设柔光地毯,提升脚感与空间暖意,整体配色柔和统一,打造出舒适安眠的私密居住空间。
更多卧室灵感
床头采用硬包饰面搭配简约装饰画,线条利落且质感饱满,打造出精致的床头视觉焦点。悬浮式床头柜设计,释放地面空间,便于日常清洁打理;地面柔光地毯与同色系窗帘、墙面形成色彩呼应,整体色调温润柔和,无繁杂装饰堆砌,营造出静谧安逸、质感上乘的主卧睡眠氛围。
更多卧室灵感
床头软包搭配分层隐形灯带,通过光影塑造提升空间层次感,极简细腿吊灯弱化顶面视觉杂乱感,浅原木色床头柜搭配局部柔光灯带,细节处尽显人性化设计;搭配温润木质元素,打造出松弛有度、静谧舒适的专属睡眠空间。
更多书房灵感
书房以功能性与舒适性为核心设计理念,整墙双体书柜搭配内嵌氛围灯带,分层布局实现书籍与藏品的分类收纳,兼具实用性与展示性。白色极简书桌搭配金属细腿框架,轻盈不占空间,避免视觉压抑;落地柔光窗帘过滤强光,搭配桌面台灯形成专业工作照明,整体氛围安静雅致。
更多玄关灵感
玄关作为入户第一空间,采用悬浮式端景台搭配分层氛围灯带设计,弱化柜体压抑感,提升入户仪式感。台面绿植点缀,为空间注入自然生机,黑白极简入户门与浅木色地面形成经典配色,顶面线性灯横向延伸视觉空间,整体布局整洁利落,兼具收纳功能与美学表达,塑造出简约大气的入户第一印象。
更多卫生间灵感
主卫采用标准干湿分离布局,彻底实现干湿区功能分隔,提升空间使用效率与整洁度。独立嵌入式浴缸提升居家生活品质,满足放松休憩需求;全尺寸镜柜扩容收纳空间,完美收纳卫浴杂物,顶面线性灯与柜体灯带形成双重补光,杜绝照明死角;黑白五金配件搭配浅石纹台面,简约中尽显高级质感。
更多卫生间灵感
采用窄边玻璃隔断实现干湿分离,通透材质不压抑空间,同时提升使用便利性。百叶窗设计灵活调控采光与隐私,兼顾实用性与美观性,壁挂式马桶释放地面空间,简化清洁流程;浅灰色哑光瓷砖通铺墙面与地面,提亮空间视觉效果,整体布局简洁利落。