×
北京
手机博洛尼 售前:400-6868-692 售后:400-666-3706
所在位置/首页优秀案例/太平路36号院
点击浏览下一张
案例信息
  • 楼盘名称
  • 案例风格
  • 太平路36号院
  • 奶油
  • 案例户型
  • 服务店面
  • 案例面积
  • 设计师
  • 60㎡
  • 梁春英
案例说明

客户为单身女性,希望家看起来比较温馨舒适,动线分区明确,满足日常所需,另外一间房当成客房方便家人留宿,要求采光好的地方放一张桌子以便平时办公或者梳妆。

客厅
更多客厅灵感

客厅整体是偏温柔治愈的奶油风,暖浅色调柔和软糯。圆润家具弱化棱角,软装搭配清新灵动,灯光氛围温润,空间通透松弛,满是慵懒舒适的居家暖意。

客厅
更多客厅灵感

电视背景墙整体以素净柔和为主。留白墙面+悬浮极简电视柜,线条干净利落,软装轻盈简约,光线明亮通透,营造出干净松弛、治愈放松的居家休闲氛围。

餐厅
更多餐厅灵感

客餐厨一体化奶油风设计,整体色调温柔治愈。通顶收纳柜搭配氛围灯带精致高级,圆形餐桌衔接休闲客厅,动线流畅开阔,兼顾颜值、烟火气与松弛居家质感。

卧室
更多卧室灵感

主卧以温柔奶油少女风为主,浅调空间干净柔和。软包床头搭配云朵顶灯,通墙衣柜扩容收纳,飘窗延伸休闲区,氛围甜美治愈,静谧好眠又元气满满。

卧室
更多卧室灵感

次卧室为清爽极简奶油风,榻榻米床底储物扩容空间。一体式书桌搭配开放书架,学习收纳二合一,色调干净明亮,紧凑布局也能兼具舒适与实用。

卫生间
更多卫生间灵感

干湿分离简约卫浴,浅素基调干净清爽。悬空浴室柜减轻压抑、方便打理,通顶镜柜强化收纳与纵深感,搭配复古黑框门,整洁通透,实用又显开阔大气。

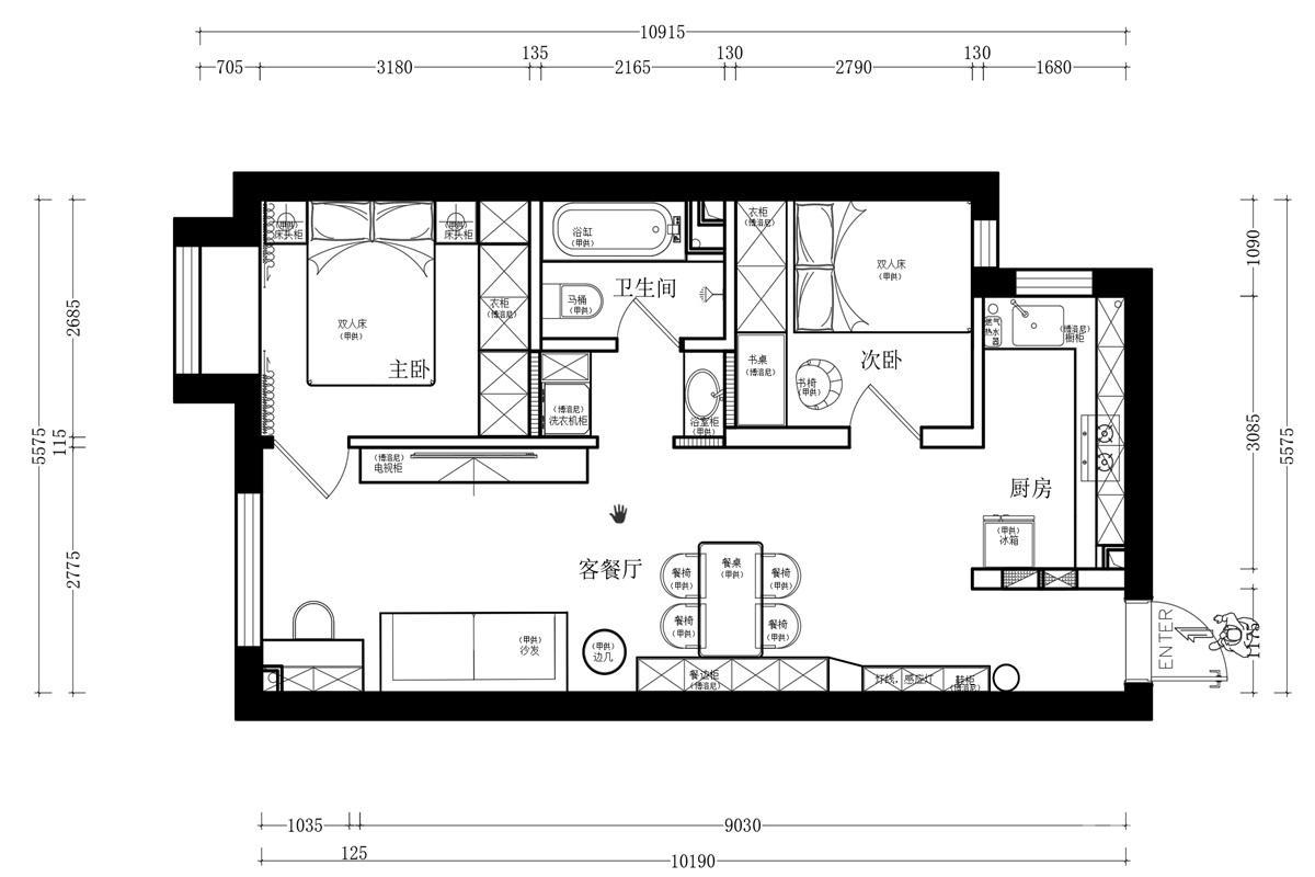
户型图
更多户型图灵感

户型方正通透,客餐厅一体化开阔舒展,动静分区合理。主卧次卧分区排布,厨卫布局规整,动线简洁流畅,空间利用率高,日常居住舒适实用。

本案设计师

梁春英

高级主任设计师

  1. 168次
  2. 预约数
  1. 15年
  2. 从业年限
  1. 15套
  2. 作品案例

预约TA

奶油风格的其它案例
更多

【案例】【澳林观邸】奶油 四居室 200㎡

康明 康明 9 73967浏览 这样装修多少钱?

【案例】【首城国际】奶油 二居室 150㎡

叶曼 叶曼 6 515551浏览 这样装修多少钱?

【案例】【豪柏公寓】奶油 三居室 128㎡

蒋胜 蒋胜 6 3776浏览 这样装修多少钱?

二居室的其它案例
更多

【案例】【御墅临枫】古典 二居室 180㎡

魏焕和 魏焕和 7 3977浏览 这样装修多少钱?

【案例】【民岳家园】古典 二居室 100㎡

尚君 尚君 6 3647浏览 这样装修多少钱?

【案例】【世纪城】古典 二居室 125㎡

赵保祚 赵保祚 6 3371068浏览 这样装修多少钱?