











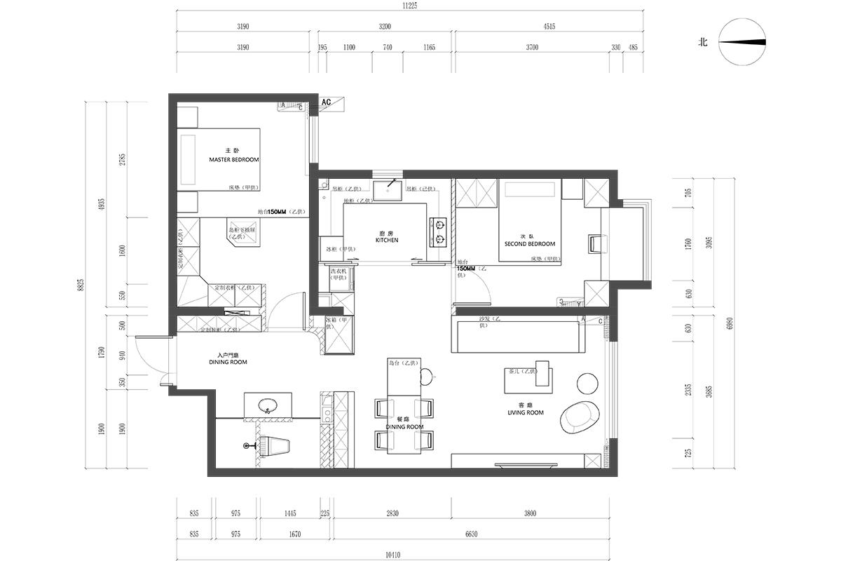
本方案为两居户型优化设计,采用 LDK 一体化布局,打通客餐厨与厨房的空间边界,打造通透开阔的公共活动区,最大化利用南侧采光面,让公共区采光充足、动线流畅。 入户区设置满墙定制收纳柜,兼顾鞋帽、杂物收纳,解决小户型入户收纳痛点。家政区整合至厨房过渡空间,洗衣机、冰箱有序排布,功能集约不浪费面积。静区规划双卧室,主卧配置定制通顶衣柜,预留充足储物空间;次卧兼顾多元使用需求,整体动静分区清晰,在有限面积内,实现了功能齐全、通透舒适的现代居家体验,最大化提升空间利用率。
更多客厅灵感
这是一套意式极简风客厅,贯彻了意式克制的美学逻辑,低饱和奶灰调铺满空间,干净通透又自带高级质感。简洁的哑光硬包背景墙无冗余装饰,搭配悬浮矮沙发与异形磨砂茶几,利落线条尽显意式简约。拼色艺术单椅注入细节巧思,打破单调。线性氛围灯搭配百叶柔帘,让自然光温柔入户,以温润材质与简约线条,打造出低调奢华、松弛有度的意式居家氛围。
更多客厅灵感
这是一套意式极简风客厅,电视墙采用木饰面与奶白硬包错落拼接,搭配上下线性氛围灯,层次分明又克制高级。异形黑茶几搭配焦糖色艺术单椅,利落线条与温润皮革碰撞,尽显意式设计的细节巧思。大面百叶帘柔化自然光,无主灯设计让光线柔和有层次。整体无冗余装饰,以低饱和色调与多元质感材质,打造出低调奢华、松弛通透的意式居家氛围。
更多餐厅灵感
这是一套意式极简客餐厨一体化空间,开放式布局让客餐区自然衔接,动线流畅通透。中岛台衔接餐桌,兼顾操作与简餐功能,实用又有设计感。右侧玻璃门酒柜内嵌暖光灯带,兼顾藏酒收纳与展示。木作吊顶搭配线性照明,黑白抽象装饰画注入艺术感,低饱和色调与温润材质碰撞,打造出低调高级、松弛有序的意式居家氛围。
更多餐厅灵感
这是一套意式极简的全能公共区,客餐厨与家政区一体化整合,功能集约又通透。长虹玻璃推拉门巧妙隐藏家政区,隔断油烟的同时不遮挡采光,兼顾整洁与实用。左侧玻璃酒柜内嵌暖光灯带,岛台搭配藤编餐椅,温润材质碰撞出高级质感。木作吊顶搭配线性照明,低饱和色调贯穿全场,打造出低调有序、颜值与功能兼具的意式居家空间。
更多卧室灵感
这是一套意式极简主卧,L 型转角衣帽间采用百叶玻璃半隔断,划分功能区的同时不遮挡采光,通透又兼顾隐私。悬浮床搭配深棕床头背景墙,线性氛围灯与床头小吊灯,营造出温柔的睡眠氛围。人字拼木地板温润有质感,整体低饱和色调贯穿,克制无冗余装饰,打造出静谧高级、功能齐全的专属休憩空间。
更多卧室灵感
这是一套意式极简次卧,延续了全屋的克制美学,人字拼木地板温润有质感。悬浮床搭配深棕拼接床头背景墙,线性氛围灯烘托出温柔静谧的睡眠氛围。对称小床头柜利落简约,左侧百叶玻璃半隔断划分出小型衣帽间,兼顾收纳与通透感。两幅抽象小画点缀墙面,低饱和色调贯穿,打造出干净高级、舒适松弛的专属休憩空间。
更多卧室灵感
这是一套意式极简多功能房,地台床搭配底部氛围灯,轻盈有质感,藤编靠背床头注入温润细节。左侧通顶衣柜错落设计,内嵌暖光开放格,兼顾收纳与展示。右侧 L 型书桌衔接展示柜,打造出独立的办公区,兼顾书房功能。彩色抽象画点亮低饱和空间,整体功能集约,在小空间里实现了客房、书房、储物的全能需求,高级又实用。
更多厨房灵感
这是一套意式极简 L 型厨房,奶白与浅木色撞色橱柜,无拉手设计干净利落,贯彻了意式克制美学。台下线性氛围灯补足操作区照明,细节实用又有质感。通顶橱柜预留充足收纳空间,右侧开放格方便随手取用餐具,大窗引入充足采光,让小厨房也通透明亮。整体动线流畅,功能齐全,打造出整洁高级、舒适高效的烹饪空间。
更多玄关灵感
这是一套意式极简入户玄关,通顶无拉手鞋柜做了一体化设计,干净利落。中间内嵌暖光开放格,兼顾展示与随手收纳,底部悬空区预留换鞋空间,搭配氛围灯,细节拉满。右侧弧形阳角搭配金属线条,柔化了空间棱角,弱化尖锐感。整体低饱和奶白调贯穿,无冗余装饰,用克制的设计与细节灯光,打造出整洁高级、充满仪式感的归家第一印象。
更多卫生间灵感
这是一套意式极简三分离卫生间,干区外置的设计,让洗漱、如厕、洗浴三区独立,可同时使用,高效不冲突。悬浮洗手柜搭配带灯智能镜,大花白石材背板点缀,简约又有质感。奶白门搭配细金属收边,右侧搭配软包长凳,兼顾使用舒适度。整体低饱和色调贯穿,无冗余装饰,打造出整洁高级、功能齐全的治愈卫浴空间。
更多其他灵感
这是一套意式极简一体化家政区,通顶定制柜将大屏冰箱、洗烘套装完全嵌入,完美隐藏家电,让空间整洁利落。中间预留了错落的暖光开放格,兼顾杂物收纳与展示,填补了功能区的单调感。整体低饱和奶白调贯穿,与全屋风格统一,无冗余装饰,在有限的空间里集约了家政、储物功能,打造出颜值与实用兼具的整洁家政空间。
更多户型图灵感
本方案为孛旺家园 100㎡两居的意式极简全案设计,采用 LDK 一体化布局,打通客餐厨与家政区边界,最大化利用南侧采光,打造通透公共区,动线流畅。 入户满墙定制柜解决收纳痛点,家政区嵌入冰箱、洗烘套装,功能集约。静区规划双卧 + 多功能房,主卧配转角衣帽间,次卧兼顾书房功能。全屋贯彻意式克制美学,在有限面积内实现了功能齐全、高级通透的舒适居家体验。