









本方案为 144㎡三室两厅平层住宅设计,聚焦三代同堂的全龄居住需求,以 “无界融合,全龄友好” 为核心理念。公共区采用横厅开放式布局,客餐厨动线流畅,兼顾家庭互动与聚会场景;私密区主卧带独立卫浴保障隐私,老人房紧邻公卫适配起夜需求,儿童房预留成长调整空间。公卫干湿分离提升使用效率,家政区集中处理家务,避免动线交叉。方案兼顾高收纳规划、采光优化与人性化细节,打造了适配家庭全周期的舒适人居空间。
更多客厅灵感
电视背景墙以法式石膏线勾勒精致层次,搭配黑白撞色悬浮电视柜,简洁利落富有视觉对比。左侧定制拱形玻璃门展示柜,内嵌感应层板灯,兼顾收纳与陈列。顶部搭配别致的珍珠串式吊灯,辅以吊顶线性氛围灯烘托氛围;藏蓝色沙发中和浅调空间的柔和感,搭配落地窗的充足采光,让整个空间通透舒展,氛围感十足。
更多客厅灵感
法式轻复古客厅,奶白墙面搭配精致石膏线条,奠定温柔优雅基调。宝蓝色绒布转角沙发为视觉中心,自带复古质感。波浪纹圆茶几搭配线条地毯,柔和又有巧思;珍珠环形吊灯点亮空间,尽显法式浪漫。一侧玻璃展示柜内嵌暖光,兼具收纳与展示;洞洞板运动收纳区,兼顾实用与美学。整体以低饱和奶油色调为主,打造温柔松弛、兼具浪漫与生活气息的治愈客厅。
更多客厅灵感
法式轻复古风客厅,奶白墙面搭配精致石膏线护墙,奠定温柔优雅的基调。藏青色 L 型绒布沙发作为视觉中心,自带复古氛围感。波浪纹圆形茶几搭配复古几何地毯,柔和又有设计巧思,珍珠环形吊灯点亮空间,尽显法式浪漫。两侧玻璃展示柜内嵌暖光,兼顾收纳与展示,大落地窗引入充足采光,整体低饱和奶油色调,打造出温柔松弛、兼具浪漫与生活气息的治愈客厅。
更多餐厅灵感
法式轻复古风餐厅,奶咖色墙面搭配精致石膏线,奠定温柔雅致的基调。黑框玻璃厨房门自带复古氛围感,搭配厨房的复古花砖,细节拉满。黑色椭圆餐桌搭配亚克力异形桌腿,设计感十足,撞色中古餐椅注入复古巧思,错落的色彩让空间更有层次。桌面花艺点缀,为空间注入自然生机,整体低饱和色调,打造出温柔松弛、兼具浪漫与烟火气的治愈用餐空间。
更多卧室灵感
法式轻复古风主卧,奶白墙面搭配精致石膏线护墙,奠定温柔雅致的基调。黑色花瓣造型软包床头,自带复古设计感,撞色床品注入层次,搭配黑色中古床头柜,细节拉满。多头艺术吊灯点亮空间,人字拼木地板温润有质感,角落的小象凳,为空间注入亲子温馨感。大落地窗搭配双层纱帘,引入柔和采光,整体低饱和色调,打造出静谧松弛、兼具浪漫与温度的专属休憩空间。
更多卧室灵感
法式奶油风卧室,以奶白墙面搭配鱼骨拼浅木地板为基底,柔和温馨。墙面延续法式石膏线勾勒优雅层次,核心的黑色波浪软包大床极具设计感,搭配黑白撞色床品,与同色系床头柜、斗柜梳妆台一体柜呼应,高级感十足。多头球形线条吊灯点亮空间,白色小象矮凳添了亲子温馨感,双层窗帘柔化光线,整体在法式优雅中融入现代简约,营造出静谧舒适的休憩氛围。
更多书房灵感
法式轻复古开放式书房,与公共区自然衔接,通透不隔断,兼顾了独立办公与家人互动。奶咖色墙面搭配精致石膏线与拱门造型,奠定温柔雅致的基调。复古实木书桌搭配黑珠造型桌腿,混搭罗马柱细节,设计感十足,中古异形椅与橄榄绿长凳,注入复古巧思。棋盘格地毯搭配艺术吊灯,氛围感拉满,右侧玻璃展示柜内嵌暖光,兼顾收纳与展示,打造出静谧又通透的专属办公空间。
更多书房灵感
法式轻复古开放式书房,与公共区自然衔接,通透不隔断,兼顾了独立办公与家人互动。奶咖色墙面搭配精致石膏线与拱门造型,奠定温柔雅致的基调。复古实木书桌搭配黑珠造型桌腿,混搭罗马柱细节,设计感十足,中古异形椅与橄榄绿长凳,注入复古巧思。棋盘格地毯搭配艺术吊灯,氛围感拉满,右侧玻璃展示柜内嵌暖光,兼顾收纳与展示,打造出静谧又通透的专属办公空间。
更多玄关灵感
法式轻复古风入户玄关,奶咖色通顶定制柜做了一体化设计,干净利落,中间内嵌暖光开放格,兼顾随手收纳与展示,底部线性氛围灯烘托归家仪式感。左侧黑框拱形玻璃隔断,划分空间的同时不遮挡采光,保持通透。黑色入户门搭配复古全身镜与木质挂钩,细节拉满,整体低饱和奶油色调,打造出整洁高级、充满仪式感的归家第一印象。
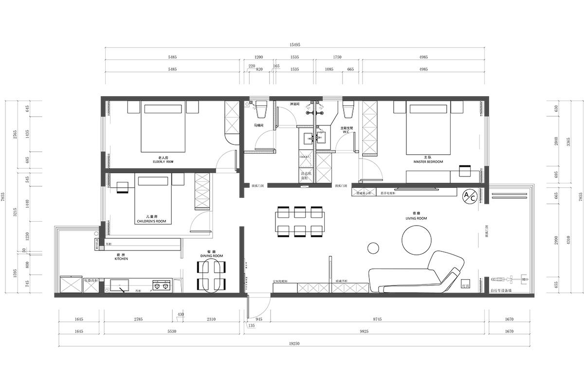
更多户型图灵感
本方案为 170㎡三室两厅平层住宅设计,聚焦三代同堂的全龄居住需求,以 “无界融合,全龄友好” 为核心理念。公共区采用横厅开放式布局,客餐厨动线流畅,兼顾家庭互动与聚会场景;私密区主卧带独立卫浴保障隐私,老人房紧邻公卫适配起夜需求,儿童房预留成长调整空间。公卫干湿分离提升使用效率,家政区集中处理家务,避免动线交叉。方案兼顾高收纳规划、采光优化与人性化细节,打造了适配家庭全周期的舒适人居空间。