×
北京
手机博洛尼 售前:400-6868-692 售后:400-666-3706
所在位置/首页优秀案例/金地名京
点击浏览下一张
案例信息
  • 楼盘名称
  • 案例风格
  • 金地名京
  • 现代
  • 案例户型
  • 服务店面
  • 案例面积
  • 设计师
  • 150㎡
  • 郭清林
案例说明

商业精英,退休养老。打破了原有的三居室格局。开放式厨房、餐厅、客厅一体大空间,侧面的飘台大窗,视野与采光完美呈现。

客厅
更多客厅灵感

定制电视柜与斗柜实现多元收纳,满足日常物品归置需求;模块化茶几与灵活坐凳提升空间使用的灵活性,通透采光搭配简约软装,既保障了起居、娱乐的实用功能,又营造出雅致舒适的休闲氛围,让每一处设计都为品质生活赋能。

客厅
更多客厅灵感

定制收纳柜可有序收纳茶具、摆件与杂物,满足实用收纳需求;简约茶桌搭配通透采光与雅致软装,营造出宁静的品茗氛围,让空间既具备日常茶歇的实用功能,又成为一处能让人静享慢时光的禅意角落。

客厅
更多客厅灵感

开放式布局联动餐厨,提升空间互动性;定制化柜体满足收纳需求,让物品有序归置;通透采光与简约软装结合,既保证日常起居的便捷舒适,又营造出雅致有格调的休闲场景,每一处设计都为品质生活服务。

餐厅
更多餐厅灵感

开放式布局让餐厨动线紧密且流畅,满足烹饪、用餐的高效互动;定制化柜体兼顾收纳与展示,将厨房用品、餐具有序归置;大面采光窗引入充足自然光,搭配简约雅致的软装,既保证了空间的实用便捷,又营造出温馨有格调的生活场景,让每一次下厨、每一顿用餐都成为兼具效率与质感的享受。

餐厅
更多餐厅灵感

我们打造的这款客餐厅,以通透采光设计引入充沛自然光,餐区布局兼顾用餐与社交实用性,收纳与装饰一体的柜体满足功能需求,软装点缀更显雅致,让空间在舒适实用中尽显品质格调。

餐厅
更多餐厅灵感

实景照片,业主原有的实木餐桌、餐椅、茶水柜、中式花架等,与现代极简的定制厨房相融合,毫无违和感的诠释了现代新中式风格。

卧室
更多卧室灵感

地台设计兼具收纳与休闲功能,定制柜体满足物品归置需求;柔和灯光与通透采光营造惬意氛围,同时通过软装搭配提升空间质感,让卧室既实现日常休憩的实用价值。

卧室
更多卧室灵感

定制的格子收纳柜,既能有序收纳书籍、摆件,又能作为空间的装饰亮点;床品与软装的搭配营造出静谧舒适的休憩氛围,同时利用采光优势提升空间通透感,让卧室在满足日常收纳。

厨房
更多厨房灵感

实景照片,现代极简的开放式厨房,利用阳台承重墙垛做了一体式岛台设计,增加了空间的互动性与延伸性,采光更加明亮。

卫生间
更多卫生间灵感

镜面柜兼具收纳与增强采光的实用功能,台盆与柜体设计贴合日常使用习惯,同时通过花艺绿植点缀,在实现实用便捷的基础上,更营造出轻奢雅致的沐浴氛围,让每一次洗漱都成为舒适的享受。

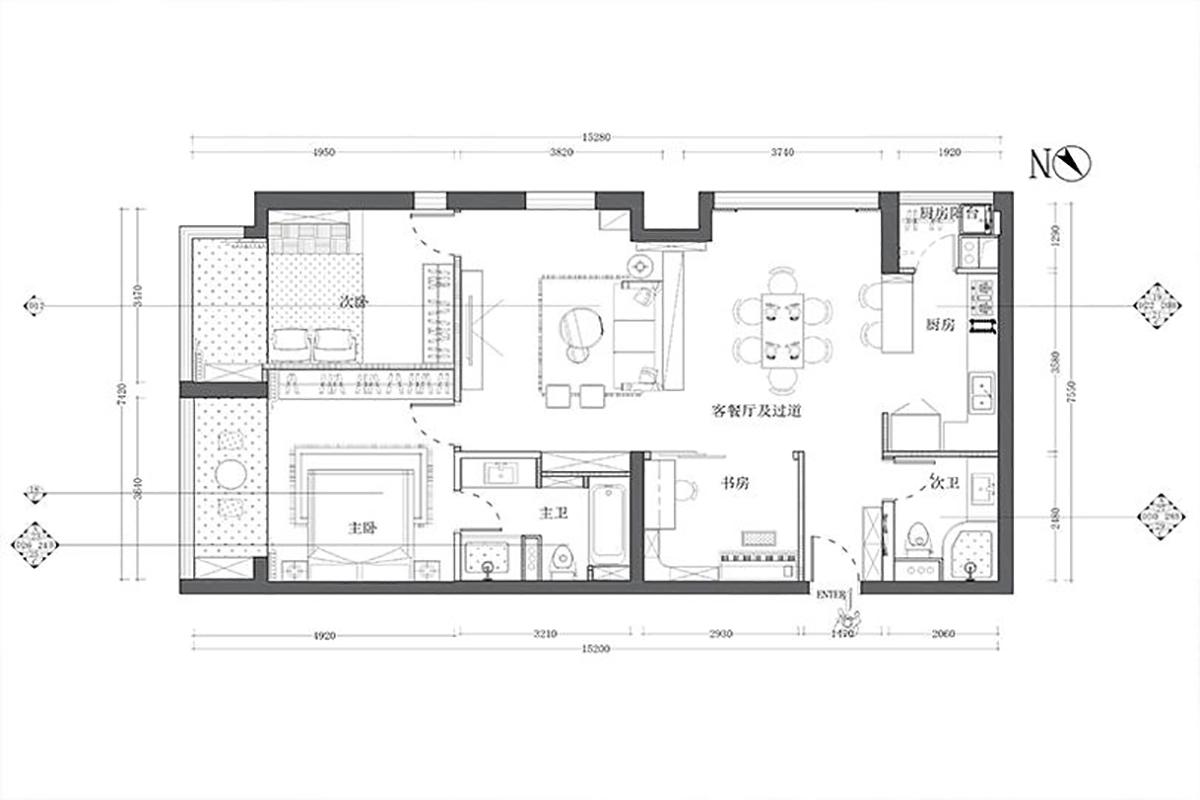
户型图
更多户型图灵感

整个空间格局做了非常大的调整,将封闭式的厨房打开,利用采光窗,做纵向的客厅、餐厅、厨房一体,使空间的视觉感最优。

本案设计师

郭清林

主任设计师

  1. 169次
  2. 预约数
  1. 12年
  2. 从业年限
  1. 26套
  2. 作品案例

预约TA

现代风格的其它案例
更多

【案例】【金茂府】现代 四居室 140㎡

渠海东 渠海东 7 844651浏览 这样装修多少钱?

【案例】【万国城】现代 二居室 130㎡

霍俐明 霍俐明 7 4381700浏览 这样装修多少钱?

【案例】【棠颂】现代 别墅 360㎡

李延玲 李延玲 12 3547672浏览 这样装修多少钱?

三居室的其它案例
更多

【案例】【富贵园】古典 三居室 200㎡

博洛尼 博洛尼 6 3481274浏览 这样装修多少钱?

【案例】【中海凯旋】古典 三居室 135㎡

于自奇 于自奇 7 4191浏览 这样装修多少钱?

【案例】【世纪城远大园】古典 三居室 140㎡

薛超 薛超 6 1376浏览 这样装修多少钱?