北京
手机博洛尼 售前:400-6868-692 售后:400-666-3706
所在位置/首页优秀案例/润枫水尚
点击浏览下一张
案例信息
  • 楼盘名称
  • 案例风格
  • 润枫水尚
  • 现代
  • 案例户型
  • 服务店面
  • 案例面积
  • 设计师
  • 200㎡
  • 于铭哲
案例说明

我的设计理念是追求简约、舒适和功能性的完美结合。希望每个角落都能让你感受到家的温暖。 通过自然光、绿植和天然材质的运用,营造一个健康环保的居住环境,让你在家中也能感受到大自然的气息。注重细节,从每一个小细节入手,提升你的生活品质和幸福感。

客厅
更多客厅灵感

客厅采用开放式设计,连接餐厅和厨房,打造宽敞明亮的活动空间。 选择简约大方的家具,营造出温馨舒适的居家氛围。 多层次的照明设计,包括主灯、射灯和落地灯,营造温暖的氛围。

卧室
更多卧室灵感

次卧的设计上延续了整体的配色,暖色调和原木的搭配,具有意式轻奢的氛围,也有文艺复兴时期的艺术感,营造出精致、简约又具有现代感的家。

卧室
更多卧室灵感

主卧的设计以白色为主,原木色色系为辅,注入了素雅气质和品质感的融合,对称的纹理线条结合拱型的分区设计,将艺术与生活结合,打造出现代时尚的氛围。

书房
更多书房灵感

书房的首要任务是提供一个高效、舒适的工作和学习环境。因此,合理的空间规划至关重要。考虑书桌、书架、座椅和储物柜的摆放位置,确保光线充足、通风良好,并考虑未来扩展的可能性。

厨房
更多厨房灵感

开放式厨房的设计使空间更加通透和宽敞。没有了墙壁的阻隔,厨房与其他生活区域融为一体,创造了一个流畅的互动环境。这种布局促进了家庭成员之间的交流,同时也为社交活动提供了理想的场所。

玄关
更多玄关灵感

玄关的色彩和材质选择应与整体家居环境相协调,营造出和谐统一的感觉。色彩上,可以选择温暖、自然的色调,如米色、灰色、木色等,以营造温馨的氛围。材质上,可以选择天然材料如木材、石材等,既环保又健康。同时,注意选择耐磨、易清洁的材质,以方便日常打理。

儿童房
更多儿童房灵感

简约原木风的设计,强调自然、清新与纯净。它追求的是一种回归自然、返璞归真的生活态度,将大自然的元素与家居空间融为一体,营造出一种宁静、温馨、舒适的居住环境。

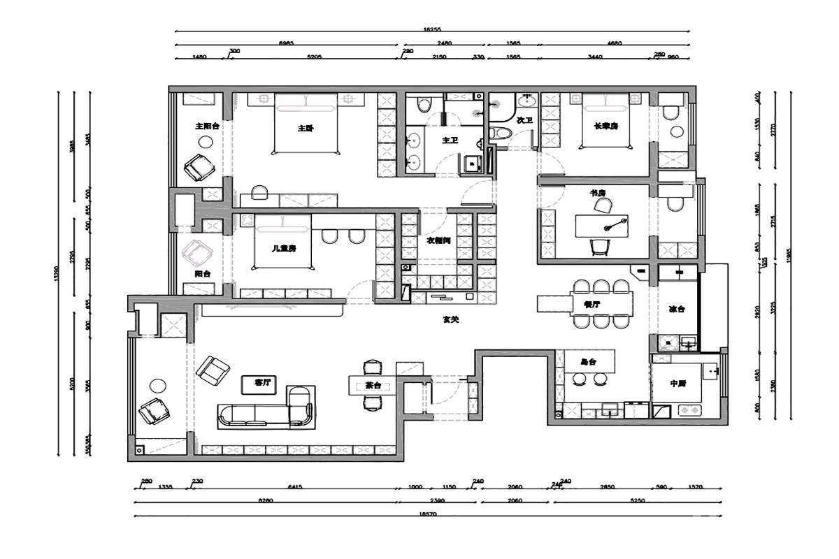
户型图
更多户型图灵感

本案设计理念遵循“简约而不简单”的原则,力求在有限的空间内实现功能性与美观性的完美结合。通过精简的线条、自然的材质和柔和的色彩,打造出一个既实用又具有设计感的现代简约家居空间。

本案设计师

于铭哲

主任设计师

  1. 168次
  2. 预约数
  1. 12年
  2. 从业年限
  1. 6套
  2. 作品案例

预约TA

现代风格的其它案例
更多

【案例】【金茂府】现代 四居室 140㎡

渠海东 渠海东 7 844741浏览 这样装修多少钱?

【案例】【万国城】现代 二居室 130㎡

霍俐明 霍俐明 7 4381788浏览 这样装修多少钱?

【案例】【棠颂】现代 别墅 360㎡

李延玲 李延玲 12 3547824浏览 这样装修多少钱?

三居室的其它案例
更多

【案例】【富贵园】古典 三居室 200㎡

博洛尼 博洛尼 6 3481469浏览 这样装修多少钱?

【案例】【中海凯旋】古典 三居室 135㎡

于自奇 于自奇 7 4586浏览 这样装修多少钱?

【案例】【世纪城远大园】古典 三居室 140㎡

薛超 薛超 6 1455浏览 这样装修多少钱?