×
北京
手机博洛尼 售前:400-6868-692 售后:400-666-3706
所在位置/首页优秀案例/太平路36号院
点击浏览下一张
案例信息
  • 楼盘名称
  • 案例风格
  • 太平路36号院
  • 现代
  • 案例户型
  • 服务店面
  • 案例面积
  • 设计师
  • 76㎡
  • 李士佳
案例说明

本方案是围绕现代简约为主题,以简洁明快的设计风格为主调,简洁和实用是现代简约风格的基本特点。简约风格不仅注重居室的实用性,而且还体现出了现代社会生活的精致与个性,符合现代人的生活品位。

客厅
更多客厅灵感

空间以白色及浅木色为主色调,设计中以黑色元素点缀、浅灰色地毯过度整体空间。窗帘、沙发、灯具等软装上的使用,空间整体明亮舒适。

客厅
更多客厅灵感

客厅空间以白色和浅木色为主色调,设计中考虑背景墙、石材台面与阳台柜体的施工衔接比较僵硬,设计以圆弧手法衔接两处不同材质,增加空间柔和感。

餐厅
更多餐厅灵感

空间以黑白灰为主色调,奠定现代风格的简约基调。白色墙面让空间明亮洁净,黑色餐桌椅增添沉稳质感,明亮的灯光勾勒出开阔而灵动的空间。

书房
更多书房灵感

书房以白色、浅木色元素为主色调,柜体设计中运用磨砂玻璃、开放格处理,增加空间的灵动性,家具的挑选上功能严谨、颜色与整体空间把控协调两者兼得。

玄关
更多玄关灵感

入户门厅以白色和浅木色为主色调,搭配无主灯设计,局部使用石材及暖光源的使用,整个空间不失简洁温馨的同时还寻一抹灵巧。

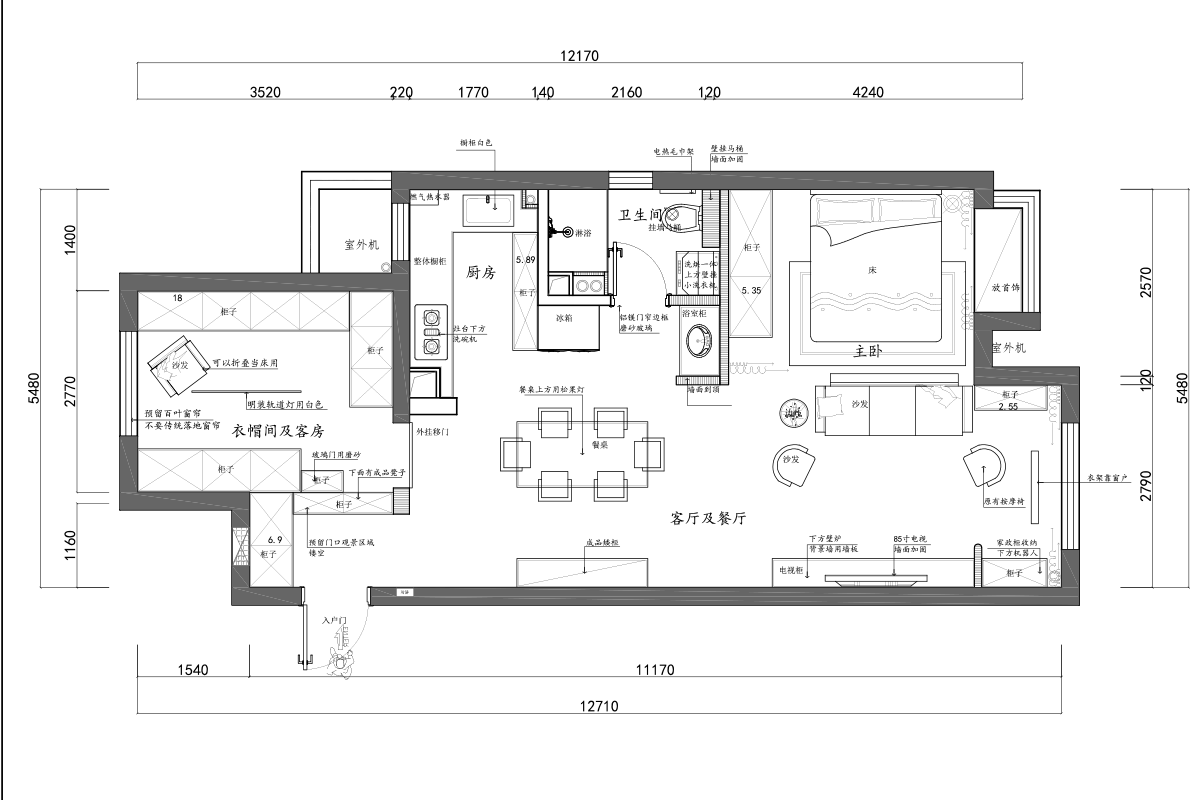
户型图
更多户型图灵感

本方案是围绕现代简约为主题,以简洁明快的设计风格为主调,简洁和实用是现代简约风格的基本特点。简约风格不仅注重居室的实用性,而且还体现出了现代社会生活的精致与个性,符合现代人的生活品位。

本案设计师

李士佳

特级主任设计师

  1. 168次
  2. 预约数
  1. 10年
  2. 从业年限
  1. 99套
  2. 作品案例

预约TA

现代风格的其它案例
更多

【案例】【金茂府】现代 四居室 140㎡

渠海东 渠海东 7 844637浏览 这样装修多少钱?

【案例】【万国城】现代 二居室 130㎡

霍俐明 霍俐明 7 4381694浏览 这样装修多少钱?

【案例】【棠颂】现代 别墅 360㎡

李延玲 李延玲 12 3547663浏览 这样装修多少钱?

二居室的其它案例
更多

【案例】【御墅临枫】古典 二居室 180㎡

魏焕和 魏焕和 7 3106浏览 这样装修多少钱?

【案例】【民岳家园】古典 二居室 100㎡

尚君 尚君 6 2633浏览 这样装修多少钱?

【案例】【世纪城】古典 二居室 125㎡

赵保祚 赵保祚 6 3370162浏览 这样装修多少钱?