





现代风格装修是一种以简洁,清晰和功能性为特点的室内设计风格,它强调简洁的线条,明亮的色彩和开放的空间布局。
更多客厅灵感
在如今的繁忙生活中,简洁大方的设计风格更受人们的推崇,看惯了现在生活中的繁华,与花天酒地,经过了一整天的忙碌,我们更想在一个安静、舒适、宽敞明亮的环境中生活,来消除视觉的疲劳,忘记都市的喧嚣,享受生活的宁静,而现代简约风格的室内装修设计满足了这一需求,现代简约风格亦是现代流行装修风格的一种。
更多卧室灵感
在这个现代厨房中,白色橱柜搭配黑色台面,简直是经典中的战斗机,不仅让空间看起来更加明亮宽敞,还自带高级感,让人一看就心动不已。而且这种色彩搭配,无论什么风格的厨具都能轻松hold住,简直就是百搭小能手!
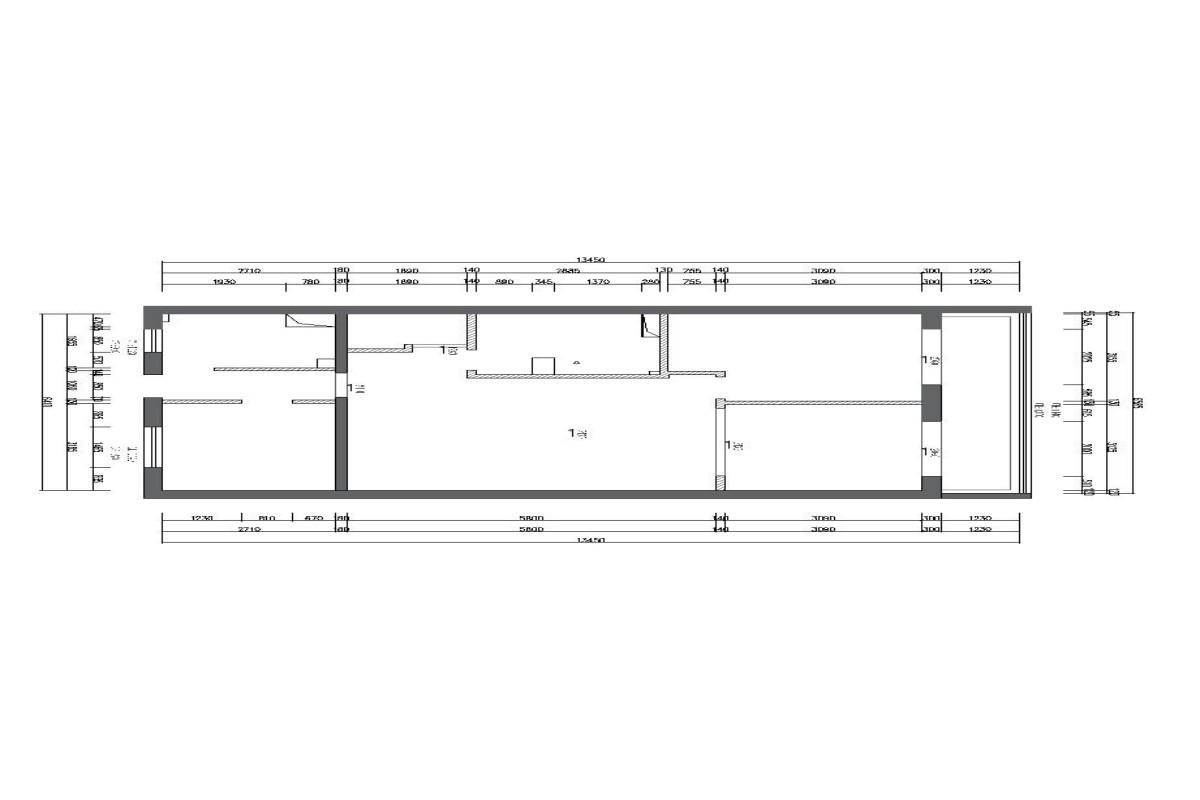
更多户型图灵感
现代简约风格其着重点就在于简,即外形简洁,室内空间朴素、大方,但其功能性强。从细节上来说,即物品的摆放要整洁,装饰的物品要少,在颜色和布局上来说,颜色的种类最好不要太多,布局要大方,格调要简洁、素雅。