×
北京
手机博洛尼 售前:400-6868-692 售后:400-666-3706
所在位置/首页优秀案例/景宜里
点击浏览下一张
案例信息
  • 楼盘名称
  • 案例风格
  • 景宜里
  • 现代
  • 案例户型
  • 服务店面
  • 案例面积
  • 设计师
  • 100㎡
  • 李铭
案例说明

在装饰上提倡简约,简约风格的特色是将设计的元素、色彩、照明、原材料简化到最少的程度,简约的空间设计,往往能达到以少胜多、以简胜繁的效果

客厅
更多客厅灵感

客厅呈现出简约而时尚的设计风格,注重细节处理和色彩搭配,每一个细小的局部和装饰,都要深思熟虑,其最大的特点是不同材质的使用,使装饰耐看、经得起时间的考验

卧室
更多卧室灵感

现代简约卧室设计以“少即是多”为核心,通过简洁的线条、低饱和配色营造空间感。 主色调通常为米白、浅灰,搭配深色家具突出层次感。

厨房
更多厨房灵感

现代简约厨房注重简洁美观。在厨房设计中,可以选择简洁的纯色墙面和地面,配以现代简约的橱柜和台面设计。

玄关
更多玄关灵感

用留白创造 现代玄关设计,通过精简的布局与合理的分区,让空间更显开阔通透,而且从外面看,玄关显得更加干净、有档次

卫生间
更多卫生间灵感

现代简约卫生间设计以功能性与实用性为核心,注重空间利用与科技融合,简洁又不失稳重,更加注重空间的合理运用和功能布局的合理分化

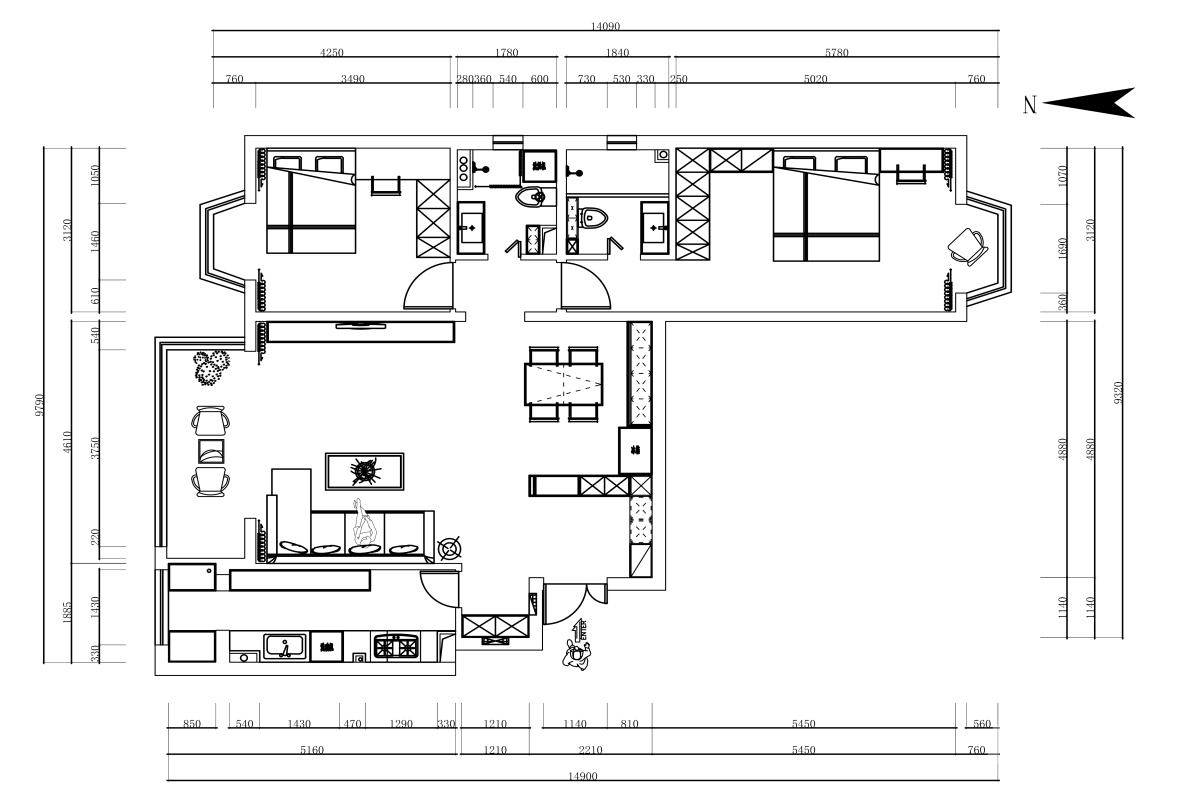
户型图
更多户型图灵感

在家具配置上,独特的光泽使家具倍感时尚,具有舒适与美观并存的享受。在配饰上,以简洁的造型、完美的细节,营造出时尚前卫的感觉

本案设计师

李铭

主任设计师

  1. 172次
  2. 预约数
  1. 7年
  2. 从业年限
  1. 53套
  2. 作品案例

预约TA

现代风格的其它案例
更多

【案例】【金茂府】现代 四居室 140㎡

渠海东 渠海东 7 845140浏览 这样装修多少钱?

【案例】【万国城】现代 二居室 130㎡

霍俐明 霍俐明 7 4382162浏览 这样装修多少钱?

【案例】【棠颂】现代 别墅 360㎡

李延玲 李延玲 12 3548486浏览 这样装修多少钱?

三居室的其它案例
更多

【案例】【富贵园】古典 三居室 200㎡

博洛尼 博洛尼 6 3482347浏览 这样装修多少钱?

【案例】【中海凯旋】古典 三居室 135㎡

于自奇 于自奇 7 6306浏览 这样装修多少钱?

【案例】【世纪城远大园】古典 三居室 140㎡

薛超 薛超 6 1927浏览 这样装修多少钱?