





这套设计糅合现代简约的利落与原木风的温润,以原木天然肌理碰撞极简线条,低饱和色调铺就雅致基底。开放式布局串联功能区,格状书架、木质家具在光影间尽显自然质感,软装删繁就简,一花一木皆为点睛,于简约中勾勒出温暖治愈的生活诗意,让空间在利落与温润的平衡里,演绎出自然雅致的现代人居格调。
更多客厅灵感
此设计融现代简约之清隽与原木风之温润,以原木天然肌理呼应极简线条,低饱和暖调铺就雅致基底。开放式布局让空间呼吸自如,木质家具与光影交织,于简净中晕染自然诗意,每一处留白都藏着对生活质感的考究,演绎出利落与温暖共生的现代人居美学。
更多客厅灵感
此空间融现代简约之凝练与原木风之温润,原木格架的天然肌理与极简书桌相得益彰,低饱和色调铺就雅致基底。灯光错落晕染自然诗意,于简净中雕琢质感,每一处陈设皆为点睛之笔,演绎出利落与温暖交织的质感人居。
更多餐厅灵感
此餐厨设计糅合现代简约的利落与原木风的温润,哑光橱柜的极简线条与原木肌理相映成趣,低饱和色调铺就雅致底色。错落灯光晕染温馨,花艺点缀添自然生机,开放式布局让空间呼吸自如,于简净中雕琢出质感与温度并存的餐厨美学,演绎出现代与自然共生的生活格调。
更多卧室灵感
此卧室设计融现代简约之雅致与原木风之温润,原木家具的天然肌理与极简线条共生,低饱和色调铺就静谧基底。灯光轻柔晕染,于简净中勾勒出自然质感,让休憩空间在利落与温暖的平衡里,漾出治愈人心的雅致韵律。
更多卧室灵感
此儿童房设计融现代简约之明快与原木风之温润,原木质感书架与简约家具线条呼应,色彩跳脱却雅致。于利落布局中注入自然肌理,让空间既具现代感的清爽,又有原木的童真暖意,演绎出灵动且雅致的成长美学。
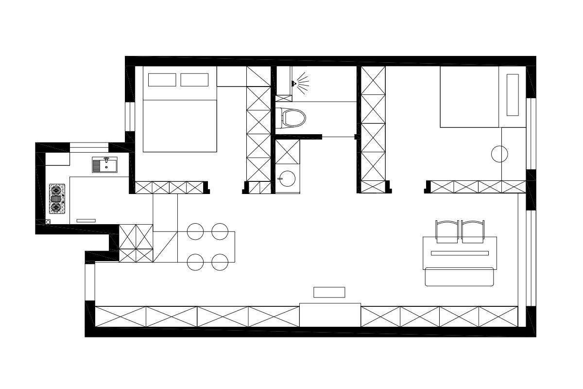
更多户型图灵感
空间划分颇具匠心,厨房独立规整,烹饪动线清晰;客餐厅开阔贯通,社交与用餐场景自然衔接;卧室区私密静谧,卫浴布局便捷实用。各功能区既独立成域,又以流畅动线相互呼应,在格局里实现起居、餐厨、休憩的完美契合,于简洁划分中勾勒出舒适且具秩序感的生活图景。