





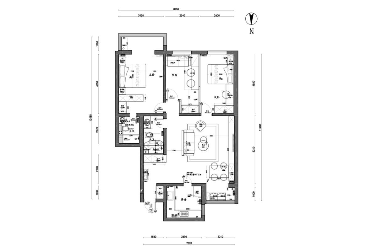
本方案以“以人为本的生长型空间”为核心理念,基于博洛尼“整体家装”体系,深度适配户型结构与现代多元生活需求,打造“简而有致、功能复合、隐奢于境”的居住空间,诠释“少即是多,简亦生暖”的设计哲学,实现“空间高效、生活自在、美学共鸣”**的居住理想。
更多户型图灵感
本设计挣脱风格符号的束缚,回归“以居者为核心”的设计本质,借由空间秩序的科学重构激活生活场景,以功能模块的有机整合升级居住效能,让住宅成为盛满家庭温度、适配人生不同阶段的“成长载体”。诠释现代家装“生长型空间”的理念,为平淡日常晕染出简雅而鲜活的质感。