





本设计以现代简约风格为核心,采用米白、浅木色为主的柔和色调,通过对餐厨、主卧、儿童房等空间的功能化布局(如餐厨区的收纳与互动设计、儿童房的学习睡眠一体化),搭配自然材质、线性灯带、艺术隔断等细节,在摒弃冗余装饰的同时,实现了空间美学、实用功能与人文关怀的统一,打造出兼具温馨质感与便捷体验的居住环境,传递 “少即是多” 的生活哲学。
更多餐厅灵感
布局上实现 “就餐 + 轻食操作” 的功能整合,长形餐桌满足家庭用餐与日常互动需求;右侧定制柜结合开放式层板与封闭柜体,既展示咖啡机、玻璃器皿等生活好物,又通过暗藏灯带提升氛围感,让烹饪、用餐成为兼具仪式感与实用性的日常。 设计细节上,拱形窗洞柔化空间棱角,与直线型柜体形成刚柔对比;墙面装饰画以抽象线条点缀,为简约空间注入艺术气息。
更多卧室灵感
以 “静谧休憩” 为核心,浅木色床头背景墙搭配线性灯带,弱化空间压迫感的同时营造温馨氛围;大面积窗户引入充足自然光,搭配双层窗帘(纱帘 + 遮光帘),满足采光与隐私的双重需求;床品与装饰画以低饱和度色彩呼应整体基调,让卧室成为身心放松的 “港湾”。
更多玄关灵感
利用入户过渡区打造多功能收纳柜,上层开放格展示装饰画、台灯等软装,下层封闭抽屉收纳杂物,既实现 “进门第一眼美观”,又解决家居收纳痛点,同时通过拱形门洞与餐厨空间形成视觉联动,强化空间整体性。
更多儿童房灵感
针对儿童成长需求,采用 “睡眠 + 学习” 一体化设计:定制书桌与榻榻米床相连,最大化利用空间;墙面洞洞板实现收纳与展示的个性化组合,粉色系软装与童趣摆件(如动物玩偶、印花床品)营造出活泼且不失简约的儿童专属空间。
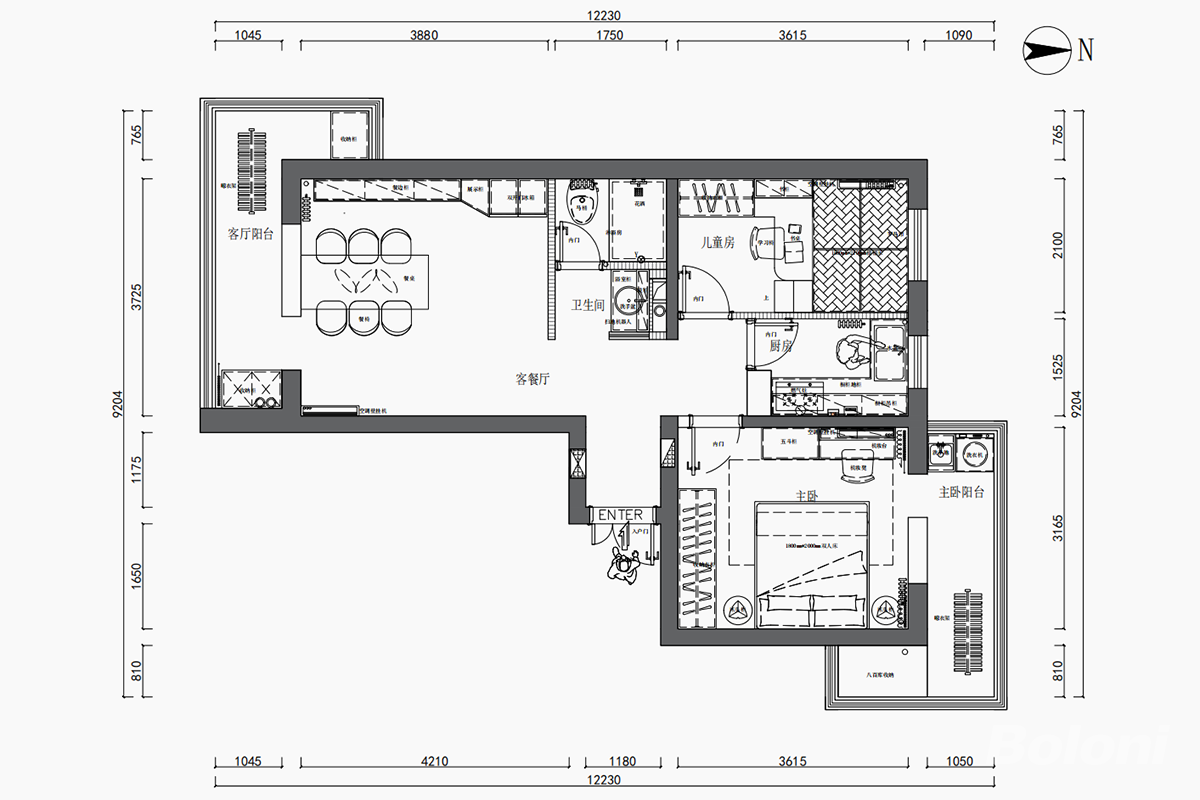
更多户型图灵感
本设计以现代简约风格为核心,采用米白、浅木色为主的柔和色调,通过对餐厨、主卧、儿童房等空间的功能化布局(如餐厨区的收纳与互动设计、儿童房的学习睡眠一体化),搭配自然材质、线性灯带、艺术隔断等细节,在摒弃冗余装饰的同时,实现了空间美学、实用功能与人文关怀的统一,打造出兼具温馨质感与便捷体验的居住环境,传递 “少即是多” 的生活哲学。