×
北京
手机博洛尼 售前:400-6868-692 售后:400-666-3706
所在位置/首页优秀案例/天樾书院
点击浏览下一张
案例信息
  • 楼盘名称
  • 案例风格
  • 天樾书院
  • 现代
  • 案例户型
  • 服务店面
  • 案例面积
  • 设计师
  • 450㎡
  • 康明
案例说明

本设计以“简约纯粹”为核心,剥离冗余装饰,用利落直线勾勒空间骨架。精选原木、岩板与金属线条碰撞,搭配通透采光与低饱和色调,平衡功能性与美学表达。让空间回归本质,在克制中释放质感,营造出静谧、舒适且富有呼吸感的现代生活场景。

客厅
更多客厅灵感

本客厅以低饱和色调铺陈松弛基底,木饰面与绒面家具交织温润质感。开放式布局串联社交场域,线性光带柔化边界,悬浮收纳架与轻盈茶几呼应,在极简秩序中,构建兼具互动性与静谧感的现代生活界面 。

卧室
更多卧室灵感

本卧室以低饱和色调构建静谧基底,木饰面与肤感材质碰撞温润层次。线性光带弱化边界,悬浮床头、一体化书桌简化形态,透明座椅添轻盈感。织物与木色呼应,在极简秩序中,编织松弛治愈的休憩场域 。

卧室
更多卧室灵感

本卧室以低饱和灰调筑静谧基底,极简线条串联定制柜体与界面,线性灯晕染床头层次。木色 bedside 台柔化冷调,哑光材质呼应现代质感,于克制秩序中,构建无扰休憩场域 。

卧室
更多卧室灵感

本卧室以暖调低饱和灰铺陈静谧基底,肤感墙板与木质元素碰撞层次。线性光带串联界面,床头氛围灯柔化边界,一体化收纳隐于极简造型,在材质的克制对话里,筑就质感与松弛共融的休憩场域 。

卧室
更多卧室灵感

本卧室循现代简约逻辑,大窗引自然入内,浅灰墙面与木色地板构建静谧基底。金属挂架、悬浮灯添精致感,一体化柜体消弭冗余,艺术画与织物呼应。以极简秩序糅合光影层次,筑就松弛私享的休憩场域 。

卧室
更多卧室灵感

本卧室以木饰面营造温润基底,低饱和色调串联绒面床品与极简家具。大窗引自然光浸润空间,线性灯晕染层次,材质质朴对话间,在秩序感中构建松弛私享的休憩场域 。

厨房
更多厨房灵感

本厨房循现代简约逻辑,浅木柜体呼应岩板台面,线性灯带晕染开放收纳区。开放式布局打通操作与展示界面,封闭柜与陈列架平衡储物与美学,以温润质感与秩序感,构建兼具烟火气与仪式感的烹饪场域 。

户型图
更多户型图灵感

本层遵循现代风格“功能至上”逻辑,开放式餐厨与客厅贯通,洄游动线提升交互性。借落地采光衔接庭院绿意,以素净材质(木、岩板)与极简线面,消弭空间边界,让通透感与自然意趣共筑松弛的日常场域 。

户型图
更多户型图灵感

二层作为私密休憩场域,以套房化设计实现功能闭环。摒弃繁杂造型,借简洁线面、低饱和色调与温润材质铺陈,各空间通过流畅动线串联,在秩序感中注入松弛氛围,诠释现代人居对私享与质感的双重追求 。

户型图
更多户型图灵感

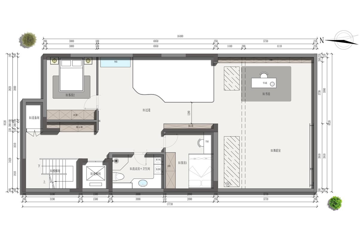
B1层以现代思维重构地下场域,整合休憩、创作、娱乐等复合功能。通过流畅动线串联空间,以简洁界面、温润材质弱化地下封闭感,嵌入收纳系统优化秩序,让光影与功能共筑兼具松弛感与实用性的私享维度 。

户型图
更多户型图灵感

B2层定位归家过渡与休闲中枢,以开放格局串联影音、儿童区,车库直连玄关优化动线。借极简界面、柔和光效消解地下封闭,功能与美学互融,在克制的现代语汇里,构建实用与松弛并存的私享基底 。

本案设计师

康明

特级主任设计师

  1. 168次
  2. 预约数
  1. 18年
  2. 从业年限
  1. 100套
  2. 作品案例

预约TA

现代风格的其它案例
更多

【案例】【金茂府】现代 四居室 140㎡

渠海东 渠海东 7 844138浏览 这样装修多少钱?

【案例】【万国城】现代 二居室 130㎡

霍俐明 霍俐明 7 4381251浏览 这样装修多少钱?

【案例】【棠颂】现代 别墅 360㎡

李延玲 李延玲 12 3546878浏览 这样装修多少钱?

别墅的其它案例
更多

【案例】【龙熙瓦德拉玛庄园】古典 别墅 1314㎡

博洛尼 博洛尼 6 3502781浏览 这样装修多少钱?

【案例】【自在香山】古典 别墅 300㎡

高宏寅 高宏寅 6 1538776浏览 这样装修多少钱?

【案例】【懋源景玺】古典 别墅 775㎡

渠海东 渠海东 11 821102浏览 这样装修多少钱?