×
北京
手机博洛尼 售前:400-6868-692 售后:400-666-3706
所在位置/首页优秀案例/金泉家园
点击浏览下一张
案例信息
  • 楼盘名称
  • 案例风格
  • 金泉家园
  • 现代
  • 案例户型
  • 服务店面
  • 案例面积
  • 设计师
  • 150㎡
  • 李士佳
案例说明

本方案以“生活美学+空间折叠”为核心理念,基于博洛尼“整体家装”体系,深度适配户型结构与现代多元生活需求,打造“功能一体化、风格统一化、体验沉浸式”的居住空间,诠释“内繁外简、与自然共生”的设计哲学,实现“都市中可呼吸的精神栖居地”的居住理想。

客厅
更多客厅灵感

客厅以深木饰面+皮革沙发构建轻奢基调,抽象画与橙色单椅形成视觉焦点,灯光层次与窗景呼应,既实现餐客空间的风格统一,又借材质碰撞与软装点缀,营造出精致且松弛的现代起居氛围。

客厅
更多客厅灵感

电视墙以大理石纹理+深木饰面打底,嵌入大屏与暗藏灯带的储物格,下方搭配壁炉造型,既借材质碰撞强化轻奢质感,又通过功能与装饰的融合,成为客厅的视觉核心与氛围载体。

餐厅
更多餐厅灵感

餐厅以深木饰面+大理石岛台构建轻奢质感,嵌入酒柜、咖啡区实现功能集成,红调点缀与艺术画衬出格调,灯光层次丰富,既适配社交宴饮,又让用餐空间兼具精致与松弛感。

卧室
更多卧室灵感

卧室以深木饰面+棕灰皮革床具营造轻奢质感,嵌入柜、妆台实现功能整合,灯带与艺术画衬出静谧氛围,软装配色柔和,既显现代精致,又让休憩空间兼具舒适与格调。

厨房
更多厨房灵感

厨房以深灰木纹柜+浅灰石纹墙地构建极简质感,嵌入烟灶、洗碗机实现功能集成,灯带与窗景呼应,既显现代利落,又让烹饪空间兼具实用与通透氛围。

玄关
更多玄关灵感

玄关以深黑柜面+石纹地台构建简约质感,嵌入暗藏灯带的展示区丰富层次,红调艺术画成为视觉焦点,既借一体化柜体实现收纳功能,又以灯光与装饰的呼应,营造出精致的入户氛围。

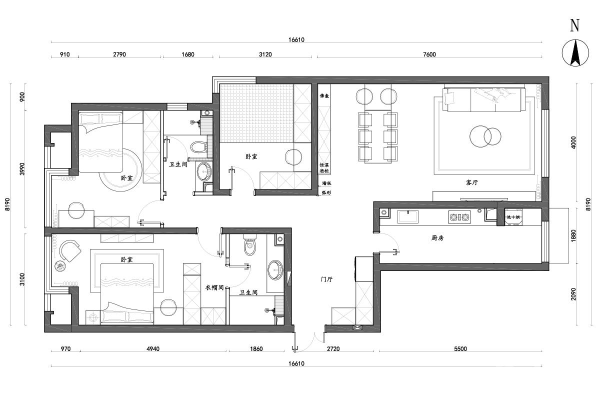
户型图
更多户型图灵感

三卧双卫户型,格局规整且客餐厨联动形成开阔公共区,同时配置佛龛、衣帽间等功能模块,双卫+多卧适配家庭居住,动线流畅、采光良好,既满足日常起居的实用性,也兼顾多元生活场景的适配性。

本案设计师

李士佳

特级主任设计师

  1. 168次
  2. 预约数
  1. 10年
  2. 从业年限
  1. 99套
  2. 作品案例

预约TA

现代风格的其它案例
更多

【案例】【金茂府】现代 四居室 140㎡

渠海东 渠海东 7 845393浏览 这样装修多少钱?

【案例】【万国城】现代 二居室 130㎡

霍俐明 霍俐明 7 4382408浏览 这样装修多少钱?

【案例】【棠颂】现代 别墅 360㎡

李延玲 李延玲 12 3548771浏览 这样装修多少钱?

三居室的其它案例
更多

【案例】【富贵园】古典 三居室 200㎡

博洛尼 博洛尼 6 3482581浏览 这样装修多少钱?

【案例】【中海凯旋】古典 三居室 135㎡

于自奇 于自奇 7 6613浏览 这样装修多少钱?

【案例】【世纪城远大园】古典 三居室 140㎡

薛超 薛超 6 2162浏览 这样装修多少钱?