×
北京
手机博洛尼 售前:400-6868-692 售后:400-666-3706
所在位置/首页优秀案例/五福玲珑居南区
点击浏览下一张
案例信息
  • 楼盘名称
  • 案例风格
  • 五福玲珑居南区
  • 法式
  • 案例户型
  • 服务店面
  • 案例面积
  • 设计师
  • 69㎡
  • 李玉鹏
案例说明

以法式经典元素(石膏线、拱门将)为基底,融入现代黑棕家具与轻盈隔断,平衡复古优雅与当代实用;借人字拼地板、复古灯具衬质感,用简约软装消厚重,营造出兼具精致仪式感与松弛生活感的轻法空间。

客厅
更多客厅灵感

以法式石膏线、雕花顶为基底,融黑棕家具与现代软装,平衡复古精致与当代实用;人字拼地板、复古吊灯衬质感,简约陈设消厚重,营造优雅松弛的轻法生活场域。

餐厅
更多餐厅灵感

以法式石膏线为基底,融复古家具与艺术装饰,平衡经典精致与当代实用;人字拼地板衬质感,简约陈设消厚重,营造优雅松弛的轻法用餐场域。

餐厅
更多餐厅灵感

以法式线条为基底,融黑调厨柜与复古藤椅,平衡经典质感与当代实用;大理石纹、暖光衬氛围,一体化布局保障操作动线,营造优雅且高效的餐厨场域。

卧室
更多卧室灵感

以法式雕花顶、石膏线为基底,融黑棕复古床具与雅致软装,平衡经典精致与当代松弛;人字拼地板衬质感,收纳与休憩区有序布局,营造优雅且舒适的睡眠场域。

厨房
更多厨房灵感

以黑白撞色为基底,融法式花卉砖与简约厨柜,平衡复古浪漫与当代实用;人字拼地板衬质感,一体化布局保障操作效率,营造精致且高效的烹饪场域。

玄关
更多玄关灵感

以法式石膏线、拱门将为基底,搭黑棕复古柜具,平衡经典精致与当代实用;人字拼地板衬质感,艺术装饰添氛围,既保障收纳秩序,又营造优雅松弛的入户场域。

儿童房
更多儿童房灵感

以法式线条为基底,融热气球壁画、小熊床具注入童趣,平衡优雅质感与儿童适配性;蓝棕色调衬温馨,学休区有序布局,既保障成长实用性,又营造松弛可爱的成长场域。

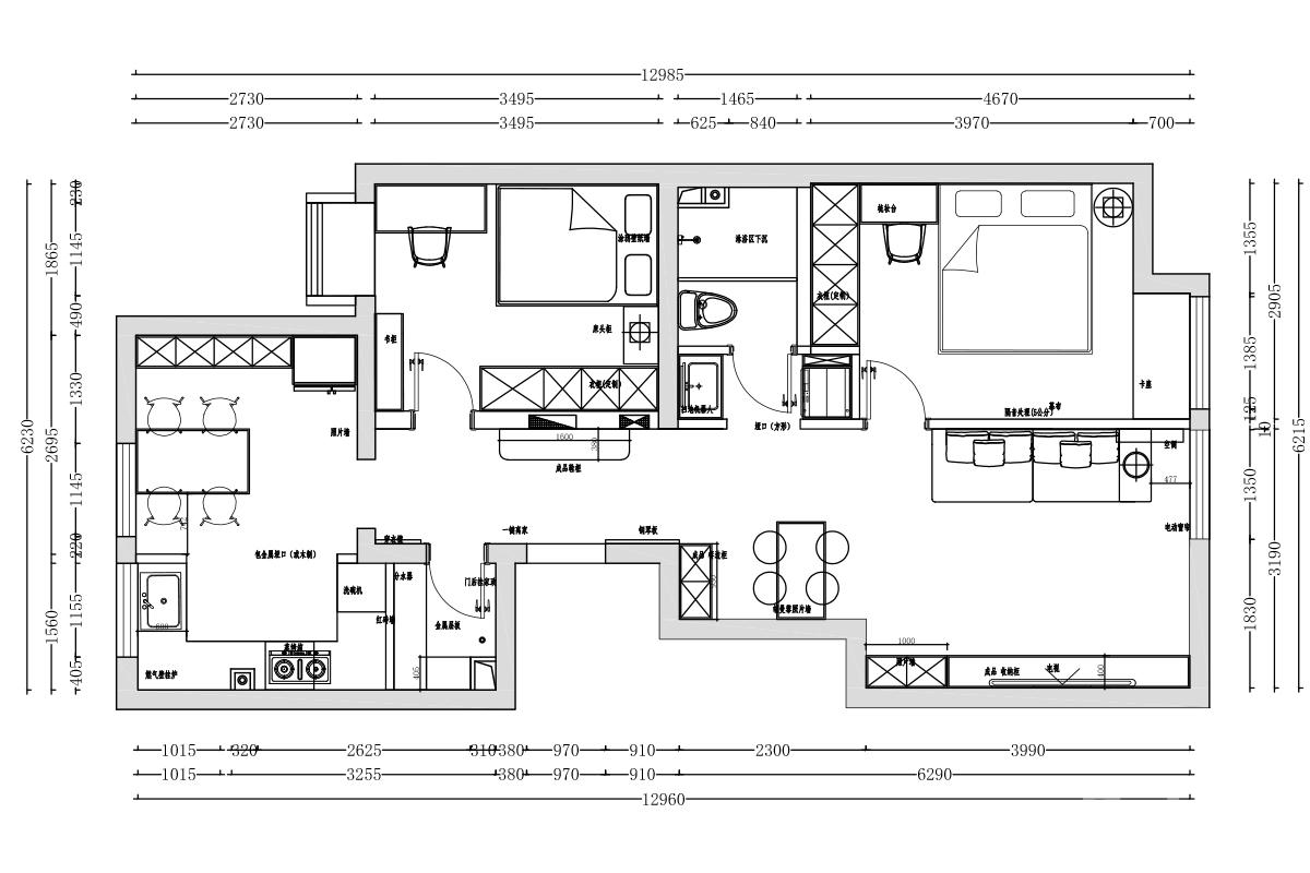
户型图
更多户型图灵感

公区开放联动动线,私密区独立保障静谧;整合收纳优化空间效率,以功能分区适配日常需求,兼顾互动性与实用性,营造松弛且有序的居住氛围。

本案设计师

李玉鹏

主任设计师

  1. 168次
  2. 预约数
  1. 10年
  2. 从业年限
  1. 59套
  2. 作品案例

预约TA

法式风格的其它案例
更多

【案例】【大郊亭】法式 三居室 160㎡

赵波 赵波 6 6280浏览 这样装修多少钱?

【案例】【玉海园】法式 跃层/loft 120㎡

代伟欣 代伟欣 7 1197552浏览 这样装修多少钱?

【案例】【京西悦府】法式 别墅 300㎡

赵波 赵波 6 3781浏览 这样装修多少钱?

二居室的其它案例
更多

【案例】【御墅临枫】古典 二居室 180㎡

魏焕和 魏焕和 7 4495浏览 这样装修多少钱?

【案例】【民岳家园】古典 二居室 100㎡

尚君 尚君 6 4319浏览 这样装修多少钱?

【案例】【世纪城】古典 二居室 125㎡

赵保祚 赵保祚 6 3371520浏览 这样装修多少钱?