






本空间设计以“质感共生,无界相融”为核心理念,立足现代人居的生活需求,将轻奢美学与实用功能深度结合,打造兼具情感温度与品质感的客餐一体化空间。
更多客厅灵感
本客厅围绕电视背景墙打造空间视觉核心,融合功能性与轻奢美学,营造兼具互动性与质感的客厅氛围。通过木格栅、大理石岩板、嵌入式柜体的组合,打造纵向与横向的立体层次,线性灯带的隐藏式设计强化墙面光影质感,让电视墙从单一饰面变为富有韵律的视觉焦点。以深木色、高级灰石材为主调,搭配金属线条与玻璃的精致细节,摒弃浮夸装饰,用天然材质的肌理与光影的层次诠释轻奢,让空间兼具高级感与舒适度。
更多餐厅灵感
本空间以打破客厅与餐厅的物理边界,融合轻奢质感与实用功能,打造兼具互动性与高级感的一体化生活空间。采用客餐一体化设计,以整面木格栅背景墙形成视觉统一,消弭空间分割感;餐厅岛台与客厅沙发自然衔接,优化生活动线,强化家人互动的社交属性,让空间更通透开阔。以深木色为基底,搭配大理石的自然纹理与皮革的细腻质感,通过材质的冷暖、软硬对比塑造空间层次
更多卧室灵感
本卧室以聚焦睡眠的核心需求,融合简约美学与轻奢质感,打造兼具舒适感与实用性的私享空间。 以低饱和度的深咖、高级灰为主色调,搭配木质与石材的自然纹理,弱化视觉刺激,结合柔和的光影设计,构建沉稳舒缓的睡眠氛围,契合卧室的休息属性。 将衣柜、梳妆台与床头背景墙进行一体化设计,打破独立家具的空间割裂感,最大化利用墙面空间,实现收纳、梳妆、睡眠等功能的有序整合,让空间更整洁高效。
更多厨房灵感
本厨房以围绕烹饪动线与收纳需求展开设计,在简约的视觉表达中,实现功能与质感的双重升级。采用一字型布局,遵循“洗-切-炒”的黄金烹饪动线,将水槽、操作台、灶台依次排布,缩短操作路径,提升烹饪效率;同时预留冰箱、嵌入式厨电的位置,让厨房功能区划分清晰有序。
更多玄关灵感
本玄关以将收纳功能与极简美学深度融合,打造兼具仪式感与实用性的入户空间。将冰箱、入户收纳柜与玄关柜体进行一体化设计,利用深色柜体的视觉统一性,隐藏家电与储物空间,最大化利用入户边角区域,实现“藏”与“展”的平衡。
更多卫生间灵感
本卫浴空间以融合轻奢精致与现代实用,打造兼具美学体验与使用便捷的卫浴场景。 提取了复古橄榄绿的温润质感,搭配大理石的高级纹理与金属五金的精致细节,弱化卫浴空间的冰冷感,赋予空间复古优雅的轻奢调性。 通过玻璃隔断划分淋浴区与洗漱区,既保证空间通透感,又实现干湿分区,提升卫浴使用的安全性与整洁度。
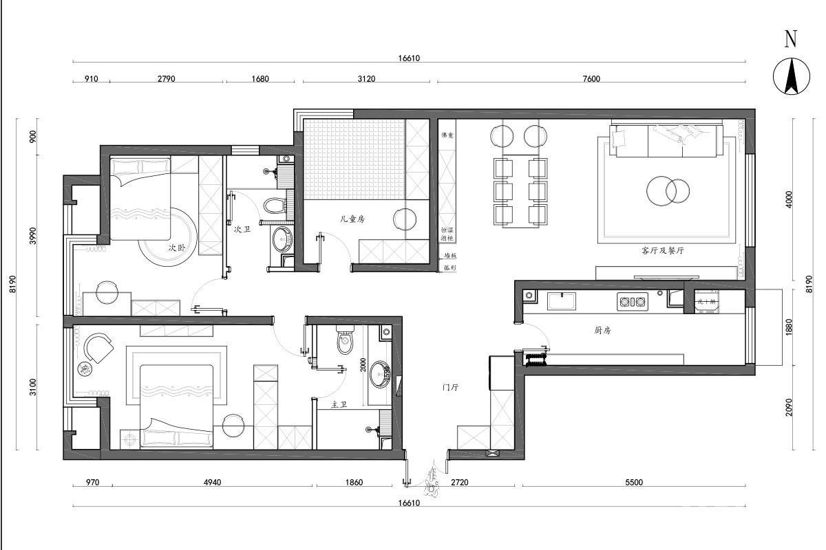
更多户型图灵感
该户型为三室两厅三卫的大平层布局,动静态分离,减少生活动线的相互干扰,客餐一体化设计,形成大尺度公共活动空间,视觉上更开阔.客厅、餐厅、儿童房等主要空间朝向北侧,若为临街或景观面,能获得较好的视野与自然采光;卧室区布局在南侧,兼顾休息的静谧性与采光需求。