×
北京
手机博洛尼 售前:400-6868-692 售后:400-666-3706
所在位置/首页优秀案例/越秀·星樾
点击浏览下一张
案例信息
  • 楼盘名称
  • 案例风格
  • 越秀·星樾
  • 现代
  • 案例户型
  • 服务店面
  • 案例面积
  • 设计师
  • 190㎡
  • 王跃杰
案例说明

整体风格克制而有温度,拒绝过度设计,通过材质的细腻碰撞、比例的精准把控,打造出简约、高级、耐看的视觉体验,适配现代审美与多元使用场景,传递出从容、极简的生活态度与设计美学。

客厅
更多客厅灵感

设计上遵循“少即是多”的原则,色彩以低饱和基础色为主,搭配简洁线条与通透布局,无多余纹样堆砌,既减少视觉负担,又凸显空间/产品的原生质感。

客厅
更多客厅灵感

整体风格克制而有温度,拒绝过度设计,通过材质的细腻碰撞、比例的精准把控,打造出简约、高级、耐看的视觉体验。

卧室
更多卧室灵感

以“简而不凡,质而不奢”为核心理念,摒弃冗余装饰与复杂元素,聚焦功能本质与视觉舒适度,用极简语言传递设计核心价值。

玄关
更多玄关灵感

门厅遵循环境色彩的和谐原则,也就是异同整合原则,使色彩的搭配既要服从整体色调的统一,又要进取发挥色彩之间的比较效应,做到统一而不单调,比较而不杂乱。

卫生间
更多卫生间灵感

卫生间的一面墙上有一面较大的镜子,可使视觉变宽,而且便于梳妆打扮。在卫生间淋浴区有花砖,色彩丰富多样,形成独特的图案纹理。

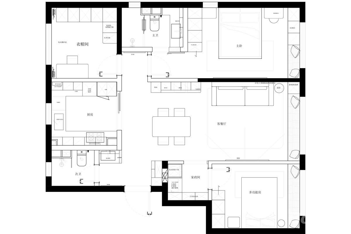
户型图
更多户型图灵感

采用简约明朗的线条,将空间进行了合理的分隔。应对扰嚷的都市生活,一处能让心灵沉淀的生活空间,是本房业主心中的一份渴望,也是本设计在该方案中所体现的主要思想。

本案设计师

王跃杰

特级主任设计师

  1. 168次
  2. 预约数
  1. 15年
  2. 从业年限
  1. 43套
  2. 作品案例

预约TA

现代风格的其它案例
更多

【案例】【金茂府】现代 四居室 140㎡

渠海东 渠海东 7 845147浏览 这样装修多少钱?

【案例】【万国城】现代 二居室 130㎡

霍俐明 霍俐明 7 4382166浏览 这样装修多少钱?

【案例】【棠颂】现代 别墅 360㎡

李延玲 李延玲 12 3548492浏览 这样装修多少钱?

三居室的其它案例
更多

【案例】【富贵园】古典 三居室 200㎡

博洛尼 博洛尼 6 3482351浏览 这样装修多少钱?

【案例】【中海凯旋】古典 三居室 135㎡

于自奇 于自奇 7 6319浏览 这样装修多少钱?

【案例】【世纪城远大园】古典 三居室 140㎡

薛超 薛超 6 1928浏览 这样装修多少钱?