×
北京
手机博洛尼 售前:400-6868-692 售后:400-666-3706
所在位置/首页优秀案例/紫竹院路100号院
点击浏览下一张
案例信息
  • 楼盘名称
  • 案例风格
  • 紫竹院路100号院
  • 现代
  • 案例户型
  • 服务店面
  • 案例面积
  • 设计师
  • 120㎡
  • 刘继承
案例说明

以现代风格为基底,整体设计简洁通透,以中性色为基调,搭配金属、木质等材质碰撞,营造出时尚舒适的居家氛围。

客厅
更多客厅灵感

客厅其核心特点是简洁、通透,注重线条感与材质搭配,整体呈现出时尚、舒适且富有层次感的空间氛围,整体风格统一且不失细节。

餐厅
更多餐厅灵感

整体设计简洁通透,以中性色为基调,搭配木质、金属等材质,营造出时尚舒适的用餐氛围。墙面水墨画与红色花卉装饰画形成对比,增添艺术气息。

卧室
更多卧室灵感

浅灰色软包床头搭配白色床品,床头两侧对称安装暖黄色壁灯;背景墙为浅绿色底色,印有细碎金色花卉图案,营造自然柔和氛围。

卧室
更多卧室灵感

浅灰色软包床头搭配白色床品,书桌与书架采用浅木色与白色拼接,推拉门衣柜为浅灰色哑光材质,整体色调统一。

卧室
更多卧室灵感

墙面为浅蓝色壁纸,地面铺设浅色实木地板,家具以原木色与黑色为主,搭配灰色布艺与玻璃材质。落地窗搭配浅蓝色纱帘,顶部装有圆形吸顶灯;玻璃书柜兼具展示与收纳功能,钢琴与书柜组合节省空间。

厨房
更多厨房灵感

橱柜门板为无拉手设计(按压式开合),台面与柜体衔接处做圆角处理;吊柜下方嵌入灯带,照亮台面并延伸视觉宽度;墙面采用白色哑光瓷砖,搭配黑色金属收边条;台面左侧放置水果箱与绿植,右侧台面预留开放式置物区。

卫生间
更多卫生间灵感

采用‌极窄边框玻璃淋浴房‌,搭配‌黑色金属框架‌(淋浴门、毛巾架、水龙头均为黑色),与浅色墙面形成对比;‌镜面柜‌设计,柜门与墙面齐平,视觉上扩大空间。

卫生间
更多卫生间灵感

次卫干区整体设计简洁舒适,以‌原木色与白色‌为主色调,搭配浅灰色墙面,营造自然通透的视觉效果,线条简洁利落。

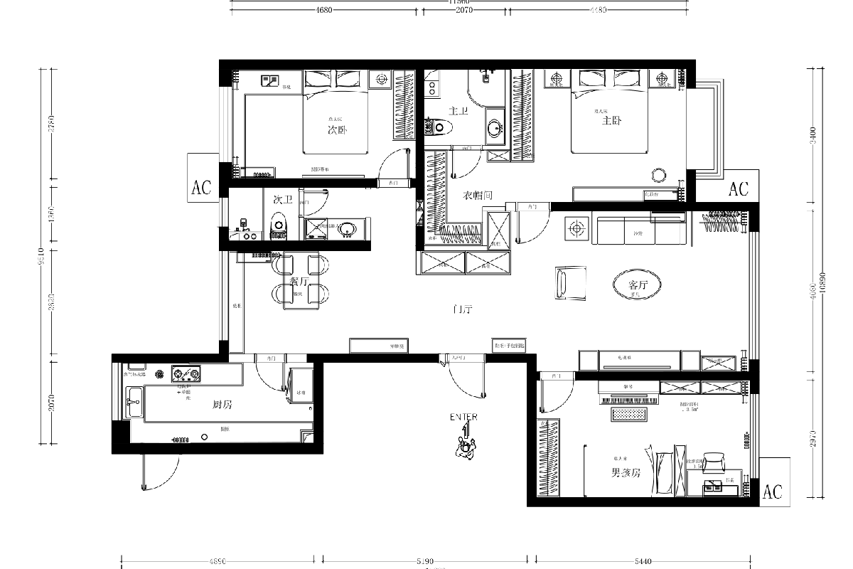
户型图
更多户型图灵感

以现代风格为基底,整体设计简洁通透,以中性色为基调,搭配金属、木质等材质碰撞,营造出时尚舒适的居家氛围。

本案设计师

刘继承

资深设计师

  1. 211次
  2. 预约数
  1. 15年
  2. 从业年限
  1. 25套
  2. 作品案例

预约TA

现代风格的其它案例
更多

【案例】【金茂府】现代 四居室 140㎡

渠海东 渠海东 7 844961浏览 这样装修多少钱?

【案例】【万国城】现代 二居室 130㎡

霍俐明 霍俐明 7 4381998浏览 这样装修多少钱?

【案例】【棠颂】现代 别墅 360㎡

李延玲 李延玲 12 3548103浏览 这样装修多少钱?

三居室的其它案例
更多

【案例】【富贵园】古典 三居室 200㎡

博洛尼 博洛尼 6 3481839浏览 这样装修多少钱?

【案例】【中海凯旋】古典 三居室 135㎡

于自奇 于自奇 7 5320浏览 这样装修多少钱?

【案例】【世纪城远大园】古典 三居室 140㎡

薛超 薛超 6 1674浏览 这样装修多少钱?