





坐标北京朝阳·亮马名居。业主偏爱简约轻奢、通透舒展、功能与颜值并重的生活质感,希望在高层观景户型里,实现采光最大化、动线合理化、收纳隐形化、氛围高级化的居家愿景。 我们以空间为笔,用设计落地每一份期待: 借景采光优化:依托户型大窗与观景优势,调整立面与柜体布局,让朝阳公园景致自然入室,全屋通透明亮,告别沉闷格局。 动线重构:梳理公共区与私密区边界,优化餐厨联动、客卧分流,日常起居流畅不局促,兼顾仪式感与实用性。 无主灯+隐形收纳:顶面极简设计,搭配线性光源与氛围灯;定制柜体嵌入墙体,杂物归藏无形,空
更多客厅灵感
这是一个极简主义风格的客厅,强调材质的自然质感与空间的通透感。 • 布局与家具:浅米色模块沙发搭配黑色纹理茶几,右侧是一把造型独特的白色休闲椅,形成围合式社交区;左侧悬浮式壁炉成为视觉焦点,兼具装饰与氛围营造功能。 • 材质与色彩:大面积浅灰墙面与浅木色护墙板打底,背景墙嵌入的绿色大理石成为视觉重心,与窗外绿植呼应;地面采用深灰大理石与浅灰地毯分区,层次分明。
更多客厅灵感
• 材质与色彩:浅米色墙面与浅木色护墙板打底,书架内部采用石材背板,提升质感;地面为浅灰大理石,搭配浅灰地毯柔化空间。 • 灯光设计:顶面嵌入式筒灯提供基础照明,书架内部灯带突出展示品,左侧落地灯为阅读区补充光源。
更多餐厅灵感
• 布局与功能:中岛台作为核心,既是备餐区也是社交吧台,搭配四把棕色皮质餐椅;后方是一字型橱柜,右侧高柜嵌入蒸烤一体机,满足烹饪需求;左侧隐形门与木饰面护墙板,让空间更整体。 • 材质与色彩:深灰色橱柜与大花白大理石台面、背景墙形成对比,右侧开放格采用橙色背板,点亮空间;地面为深灰大理石,耐脏且显质感。
更多卧室灵感
• 布局与收纳:左侧是玻璃门开放式衣柜,内部灯带勾勒出衣物与箱包的质感,下方搭配红色抽屉柜,兼具展示与收纳功能;床尾区域留白,动线开阔。 • 材质与色彩:深木色床头背景与浅米色床品形成温润对比,右侧飘窗采用大花白大理石包裹,提升空间精致度;地面为浅木色地板,搭配浅灰地毯柔化脚感。
更多儿童房灵感
• 空间布局:采用“睡眠区+学习区”的一体化布局,右侧是睡眠区,左侧靠窗位置是学习区,动线流畅,互不干扰。 • 睡眠区:床铺采用简洁的白色床品,搭配带有几何图案的靠枕和带流苏的灰色盖毯,既显温馨又有设计感;墙面采用同色系的浅灰与暖棕拼接,弱化了边界感。
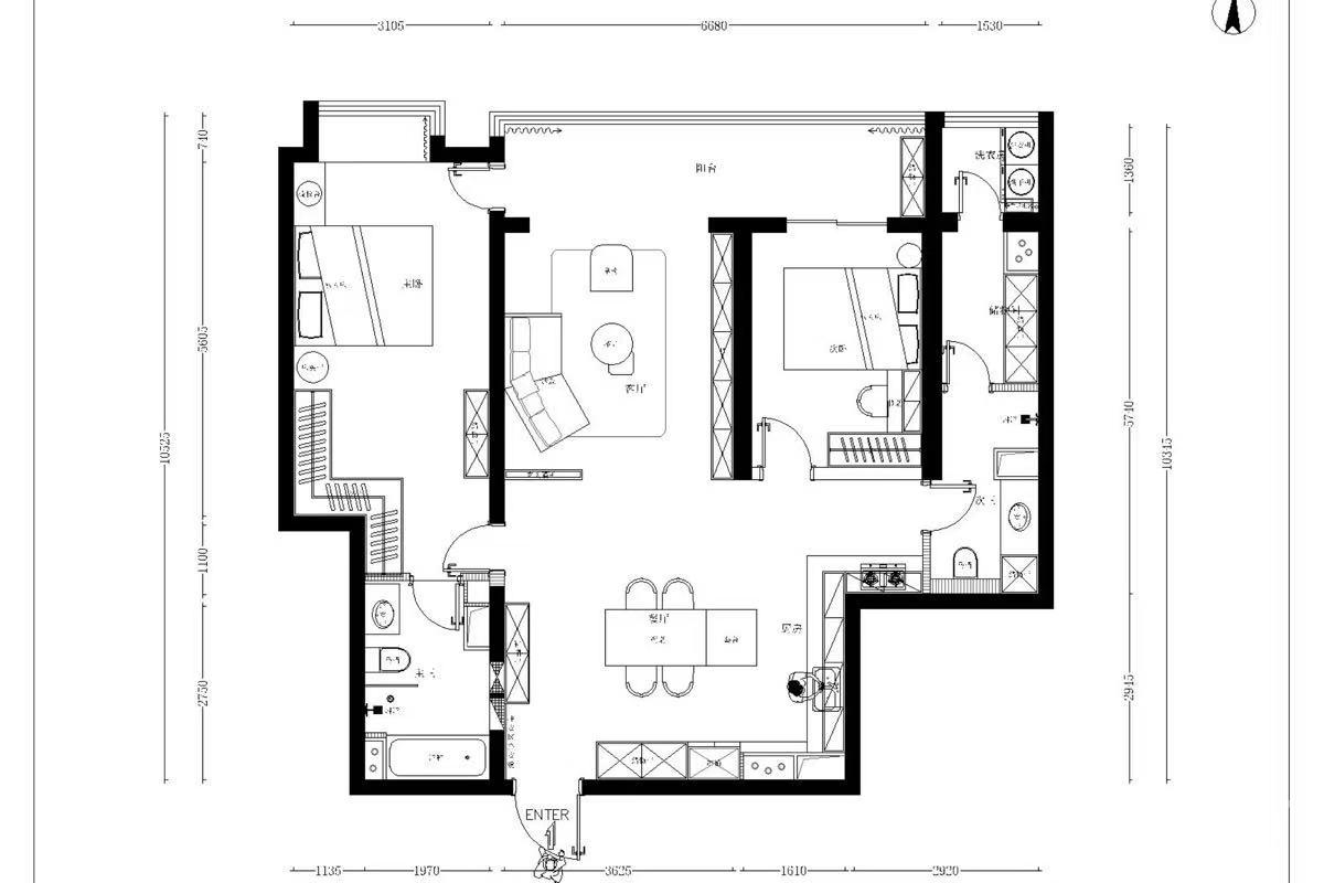
更多户型图灵感
• 动静分区:公共活动区(客餐厅)与私密休息区(卧室)分离,减少了相互干扰。 • 采光通风:客厅和主卧均为南向,配合大阳台,保证了充足的日照和良好的通风。 • 收纳系统:主卧的步入式衣帽间、次卧的衣柜以及厨房的橱柜,形成了强大的收纳体系。