





从客厅的开阔动线到卧室的包裹感,从餐厨的烟火气到角落的小确幸,每一处设计都藏着对日常的尊重。不负业主的信任,让家成为治愈身心的温柔容器。
更多客厅灵感
以奶白色为基底,融合浅原木色饰面板,打造对称式电视背景墙。左侧封闭柜体满足收纳,中间悬浮式台面搭配线性灯,右侧竖向格栅板柔化墙体棱角;无主灯设计+环形吊灯,搭配抹茶绿单人椅,在原木与奶油的温润中注入清新活力,线条简洁却极具设计质感。
更多客厅灵感
极致简约的奶油色布艺沙发,搭配圆润的原木风茶几,大面积留白墙面仅用一幅肌理画点缀;南向落地窗引入充沛自然光,抹茶绿单人椅与电视墙形成呼应,无主灯设计的漫射光包裹整个空间,打造出奶油原木风独有的松弛感,是卸下疲惫的治愈港湾。
更多餐厅灵感
开放式餐厨设计,奶白色定制餐边柜与原木色操作台形成材质碰撞,玻璃酒柜嵌入柜体,兼顾展示与收纳;悬浮式吊顶搭配简约吊灯,浅色系餐椅与原木色单椅混搭,大理石墙面点缀厨房区,让烟火气与奶油原木风的精致感完美相融,每一处细节都藏着对日常的用心。
更多卧室灵感
• 以奶白色为基底,墙面采用微水泥质感的浅米色涂料,搭配浅木色地板,营造出柔和的包裹感。 • 软包床头采用同色系拉点设计,搭配线性灯带,弱化了床头与墙面的边界,提升了空间的精致度。 • 无主灯设计+环形吸顶灯,搭配床头两侧的简约灯具,光线柔和不刺眼;大面积落地窗引入充沛自然光,让整个空间在简约中透着治愈感。
更多厨房灵感
厨房采用奶白色柜门+浅原木色台面,大理石防溅墙提升质感;入户门选用深灰色,与奶油原木的浅色调形成对比,强化空间层次;立柱采用穿孔板设计,兼顾装饰与实用,餐台与厨房操作台无缝衔接,动线流畅,让奶油原木风在实用场景中依然保持高级感。
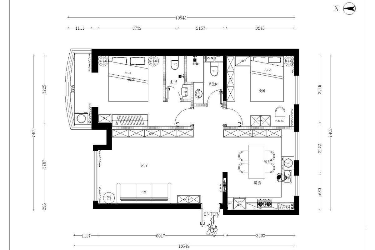
更多户型图灵感
客厅与餐厅无硬性隔断,通过顶面无主灯设计与地面同色系材质,强化空间开阔感,契合原木风的温润通透 动静分区极致清晰:公区(客厅、餐厨)集中于户型中下部,私区(主卧、次卧)位于上部,以走廊形成天然隔断,兼顾公共互动与私密休憩。