×
北京
手机博洛尼 售前:400-6868-692 售后:400-666-3706
所在位置/首页优秀案例/富力城
点击浏览下一张
案例信息
  • 楼盘名称
  • 案例风格
  • 富力城
  • 现代
  • 案例户型
  • 服务店面
  • 案例面积
  • 设计师
  • 126㎡
  • 崔洪刚
案例说明

本方案以现代简约为基底,打造三卧两卫一书房的多元格局,客餐厅一体通透,套房主卧保障私密,双卫设计提升效率,以流畅动线与温润质感,构建兼具仪式感与舒适度的宜居空间。

客厅
更多客厅灵感

客厅以奶油白为主调,融入浅木色与黑色线条勾勒层次,无主灯设计搭配线性灯带,光影柔和。客餐厅一体化通透布局,艺术挂画与绿植点缀,兼具松弛感与现代精致格调。

餐厅
更多餐厅灵感

餐厅以奶白与深棕撞色,大理石餐桌质感高级,线性吊灯精准补光。嵌入式家电与通顶收纳柜兼顾实用与整洁,自然光透过纱帘洒落,营造温馨且高效的餐厨联动空间。

卧室
更多卧室灵感

卧室延续整体奶油风基调,深棕床头与几何抱枕形成视觉对比,艺术挂画点亮空间。整合睡眠与办公功能,悬浮柜体与柔和灯光相融,打造静谧舒适的休憩与轻办公角落。

厨房
更多厨房灵感

厨房采用L型高效布局,浅木色吊柜搭配奶白色地柜,配色温润。嵌入式电器与线性灯带优化操作体验,极简五金与整洁台面结合,实现颜值与实用性的双重平衡。

卫生间
更多卫生间灵感

卫生间以奶白为主调,浅木色柜体增添温润感,干湿分离设计保障整洁。嵌入式灯带与分层收纳提升使用便捷度,简约五金搭配自然质感摆件,打造清爽舒适的卫浴空间。

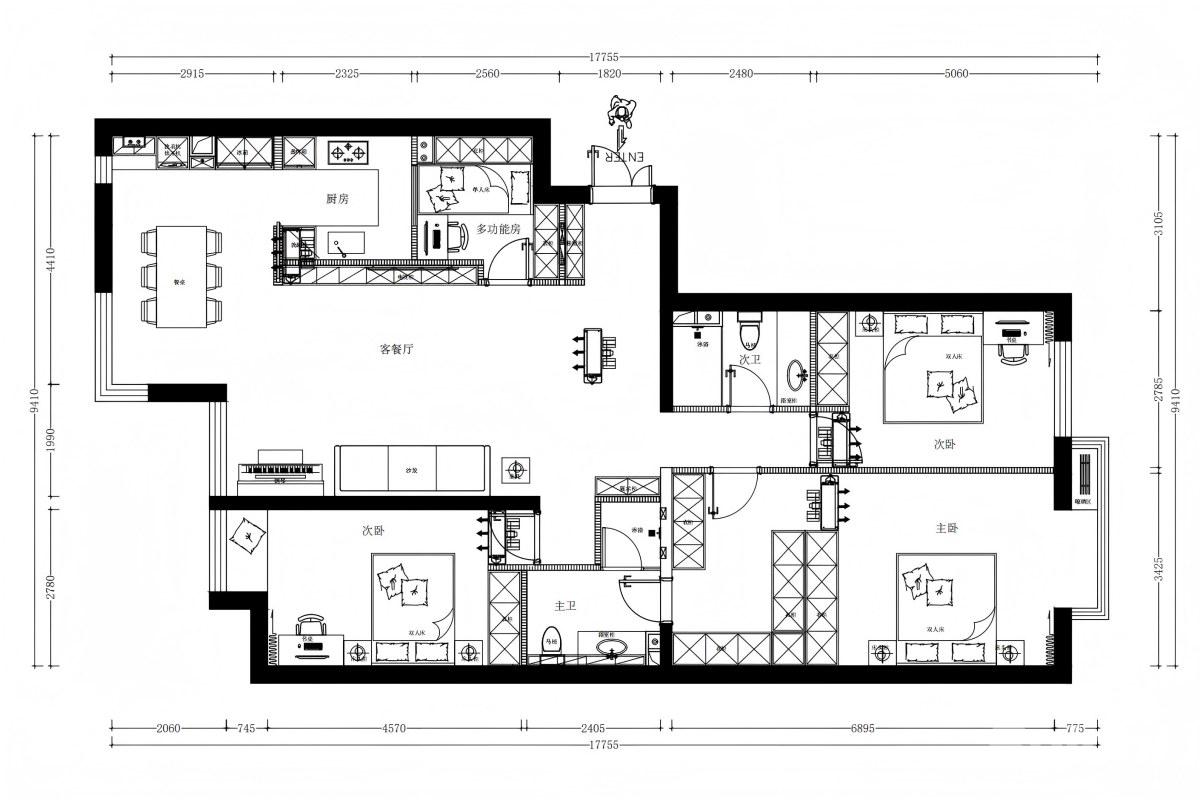
户型图
更多户型图灵感

本方案以现代简约为核心,通过三卧两卫一书房的多元格局,实现动静分区的空间逻辑。客餐厅一体通透,套房主卧保障私密,双卫设计提升效率,以流畅动线与温润质感,构建兼具仪式感与舒适度的宜居空间。

本案设计师

崔洪刚

特级主任设计师

  1. 168次
  2. 预约数
  1. 12年
  2. 从业年限
  1. 8套
  2. 作品案例

预约TA

现代风格的其它案例
更多

【案例】【金茂府】现代 四居室 140㎡

渠海东 渠海东 7 844952浏览 这样装修多少钱?

【案例】【万国城】现代 二居室 130㎡

霍俐明 霍俐明 7 4381991浏览 这样装修多少钱?

【案例】【棠颂】现代 别墅 360㎡

李延玲 李延玲 12 3548097浏览 这样装修多少钱?

三居室的其它案例
更多

【案例】【富贵园】古典 三居室 200㎡

博洛尼 博洛尼 6 3481801浏览 这样装修多少钱?

【案例】【中海凯旋】古典 三居室 135㎡

于自奇 于自奇 7 5269浏览 这样装修多少钱?

【案例】【世纪城远大园】古典 三居室 140㎡

薛超 薛超 6 1668浏览 这样装修多少钱?