











本案以「温润共生・秩序栖居」为核心,融合现代极简与侘寂美学,打造全龄适配的松弛型居住空间。 整体采用米白、暖灰为基底,胡桃木色与局部高饱和色彩点缀,通过哑光微水泥、艺术涂料与实木、皮革等材质碰撞,构建温润而克制的视觉基调。 空间布局以 “动静分区、洄游动线” 为逻辑:双玄关强化归家务序,餐厨一体化实现社交与烹饪闭环,主卧套间与双次卧精准适配不同成员需求,书房与多功能区兼顾办公与休闲。全域采用 “隐形封闭柜 + 开放展示格” 的收纳体系,实现高效与整洁。 灯光以无主灯分层照明为主,线性灯带、层板灯与局部氛围灯交织,既保障功能需求,又塑造静谧松弛的空间情绪,让实用与美学共生。
更多客厅灵感
餐厅以「极简秩序・温润共生」为核心,米白墙面与浅灰地面奠定通透基底。胡桃木餐桌搭配金属框架餐椅,刚柔相济。几何方块艺术吊灯成为视觉焦点,隐形柜体与玻璃展示格实现藏露平衡。无主灯分层照明勾勒层次,绿植与纱帘柔化边界,让用餐兼具仪式感与松弛感。
更多客厅灵感
本案以「极简通透・功能共生」为核心,米白墙面与浅灰地面奠定通透基底,胡桃木餐桌与岛台形成材质呼应。几何方块吊灯串联视觉焦点,内嵌电器与开放格实现藏露平衡,线性灯带营造分层光影,让餐厨兼具高效操作与松弛社交属性。
更多卧室灵感
本案以「温润对称・静谧休憩」为核心,米白艺术涂料墙面奠定舒缓基调。对称双床搭配原木床架,浅灰床品与条纹床尾巾注入层次。背景隐形柜体以胡桃木灯带为视觉焦点,圆形吸顶灯提供柔和照明,整体设计克制有序,打造适配全龄的舒适睡眠空间。
更多卧室灵感
本案以「温润松弛・静谧栖居」为核心,米白艺术涂料墙面奠定舒缓基调。浅米色软包床头搭配同色系床品,顶部艺术吊灯成为视觉焦点。左侧木格栅隔断与深色斗柜形成材质对话,线性无主灯与床头台灯营造分层光影,整体设计克制有序,打造兼具私属性与松弛感的睡眠空间。
更多厨房灵感
本案以「极简秩序・高效烹饪」为核心,浅灰哑光吊柜与胡桃木地柜形成材质对话,浅灰瓷砖墙面与台面奠定清爽基调。暗藏灯带勾勒层次,嵌入式电器与大窗保障通透与实用,整体设计克制有序,打造兼具高效操作与视觉整洁的烹饪空间。
更多厨房灵感
本案以「极简通透・高效烹饪」为核心,浅白哑光吊柜与胡桃木地柜形成材质对话,浅灰瓷砖墙面与台面奠定清爽基调。暗藏灯带与玻璃展示柜营造层次,嵌入式电器与大窗保障通透与实用,整体设计克制有序,打造兼具高效操作与视觉整洁的烹饪空间。
更多玄关灵感
玄关以「温润仪式感」为核心,米白艺术涂料为底,咖色肌理饰面构建立体视觉焦点。弧形镜面柔化线条,原木异形边几添自然意趣。暗藏灯带勾勒层次,隐形门与黑框门扇呼应,打造兼具秩序感与温度的归家过渡区。
更多玄关灵感
玄关以「秩序归心」为核心,米白艺术涂料墙面与浅灰地面奠定温润基底。隐形鞋柜以胡桃木层板灯带为视觉焦点,底部悬空设计兼顾实用与通透感。暗藏顶光勾勒层次,深灰入户门与木色房门形成材质对话,打造兼具高效收纳与仪式感的归家过渡区。
更多儿童房灵感
本案以「鲜活童趣・成长共生」为核心,米白艺术涂料奠定温润基底。彩色艺术画与趣味抱枕注入活力,白床架搭配黄蓝床品呼应视觉焦点。左侧玻璃展示柜与蓝色休闲椅,实现收纳与玩乐的平衡,打造兼具成长型与趣味性的儿童空间。
更多卫生间灵感
本案以「极简纯粹・温润质感」为核心,米白哑光瓷砖奠定通透基底。黑白柱形台盆与黑色五金形成视觉对比,暗藏镜光与线性灯带营造层次光影。智能马桶与一体化淋浴区实现功能高效,整体设计克制有序,打造兼具实用与美学的私享卫浴空间。
更多衣帽间灵感
本案以「温润秩序・功能共生」为核心,米白艺术涂料与浅灰地面奠定静谧基调。左侧金色金属收纳系统与纱帘柔化边界,胡桃木书桌搭配金属支架,木格栅隔断划分空间。线性灯带与桌面台灯营造分层光影,打造兼具高效收纳与专注办公的复合空间。
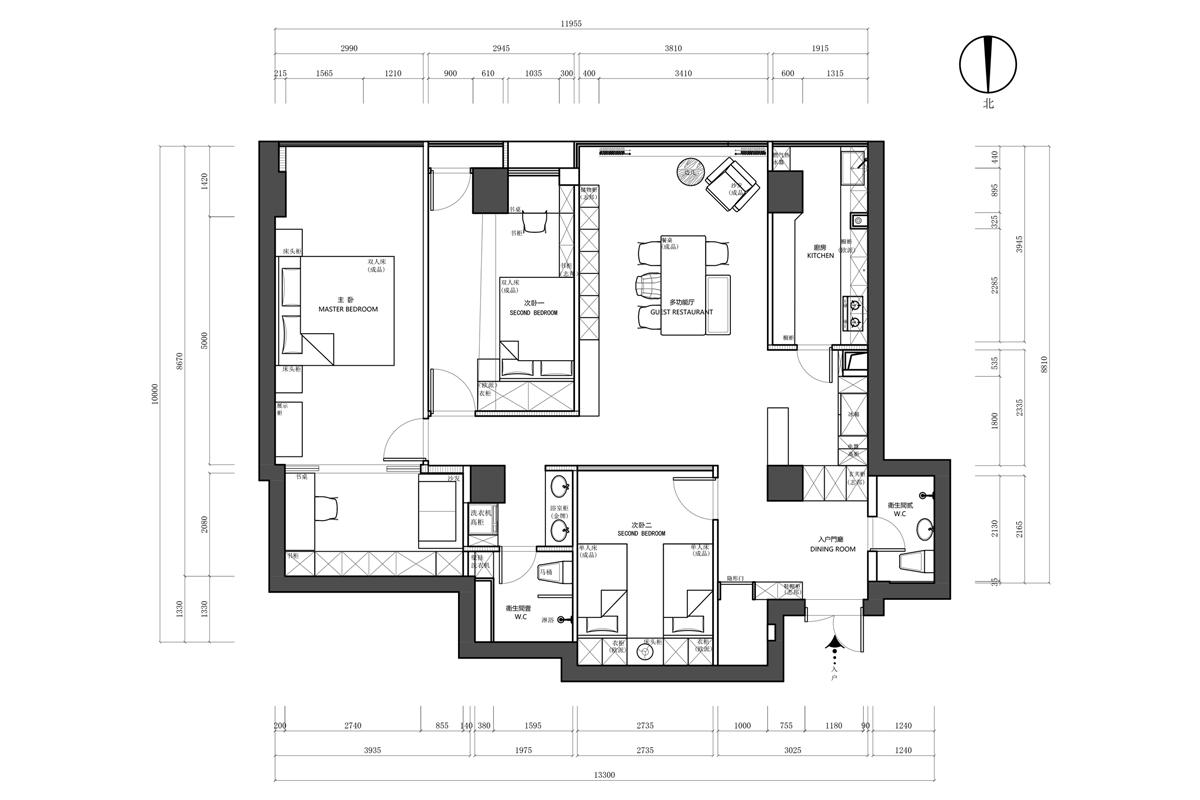
更多户型图灵感
本户型为三室两厅两卫格局,空间布局通透实用。入户门衔接独立门厅,自然过渡至餐厨区,动线流畅。多功能厅与厨房相连,兼顾社交与实用功能。主卧配备独立书桌与充足收纳,次卧一、二分别适配双人及单人居住,满足多元需求。双卫设计干湿分离,提升日常使用效率。整体空间采光通风良好,收纳系统完善,可灵活适配家庭成长与生活方式变化。