





本案为教师家庭定制居所,以温润原木与奶白为基调,打造静谧通透、兼具疗愈感与实用性的居家空间,适配教师群体对安静、高效、可疗愈身心的生活需求。 客餐厅一体化设计,最大化采光与动线,原木餐边柜与玻璃展示柜兼顾收纳与展示,开放式书架营造沉浸式阅读氛围,满足日常备课、居家办公需求;奶白功能沙发与松弛软装,为忙碌的教学工作提供舒缓休憩空间。 主卧以柔和暖调打造静谧睡眠区,飘窗书柜打造专属阅读角,舒缓教学压力;次卧设计床桌一体化空间,灵活切换书房、客卧功能,适配居家办公、亲子学习场景。 全屋以柔和无主灯、圆弧细节弱化棱角,在实用与美学间找到平衡,为教师家庭打造承载生活与热爱的温暖居所。
更多客厅灵感
本案客餐厅以温润原木与奶白为基调,为教师家庭打造兼具疗愈感与实用性的公共空间。客餐一体化布局,最大化采光与动线,营造通透开阔的空间感。玻璃展示柜兼顾收纳与展示,可陈列教学书籍、生活藏品;原木餐边柜整合水吧功能,满足日常备餐、休闲需求。柔和无主灯搭配温润木作,营造静谧松弛的氛围,适配备课、居家办公、亲友小聚等多元场景,以简约克制的设计,平衡美学与实用,打造承载生活与热爱的温暖场域。
更多客厅灵感
客厅以奶白为基底、原木为点缀,为教师家庭打造松弛疗愈的公共空间。开放式置物架打造专属阅读区,满足日常备课、阅读需求,适配教师职业属性。奶白色功能沙发可舒展休憩,舒缓教学压力;大面落地窗引入自然采光,柔纱帘过滤光线,营造通透静谧的氛围。木格栅、艺术挂画提升空间质感,无主灯设计烘托柔和氛围。整体兼顾实用与美学,打造承载生活与热爱的温暖居所,平衡工作与生活。
更多餐厅灵感
定制餐厅空间,以温润原木与奶白为基调,衔接客区形成通透动线,营造松弛治愈的用餐氛围。玻璃肌理门兼顾采光与隐私,适配教师对安静通透空间的需求。柔和无主灯搭配艺术挂画,烘托温馨用餐场景;原木餐桌椅兼顾舒适与质感,满足日常用餐、备课交流等多元需求。细节处的木作与穿孔板设计,平衡美学与实用,打造兼具疗愈感与功能性的家庭互动核心区,为忙碌的教学工作提供舒缓的居家空间。
更多卧室灵感
主卧以奶白为基底、温润原木为点缀,打造静谧疗愈的休憩空间。飘窗结合嵌入式书柜,打造专属阅读角,满足日常备课、阅读需求,舒缓教学压力。软包床头、柔和无主灯与圆弧柜角,弱化空间棱角,提升居住舒适度。定制通顶衣柜搭配内嵌壁龛,兼顾收纳与展示,动线流畅。整体设计以实用为核心,平衡美学与功能,为教师打造可疗愈身心、安享休憩的温暖居所。
更多书房灵感
次卧以奶白 + 原木为基调,打造 “床桌一体化” 的多功能复合空间,精准契合教师居家办公与休憩需求。 全屋定制通顶衣柜最大化收纳,床榻与书桌无缝衔接,备课、小憩无需转换空间;飘窗引入自然光,搭配简约软装与柔和照明,弱化空间棱角,营造松弛治愈的氛围。 整体设计兼顾实用性与美学性,灵活切换书房、客卧模式,平衡工作与生活,为教师打造高效舒适的多元生活场域。
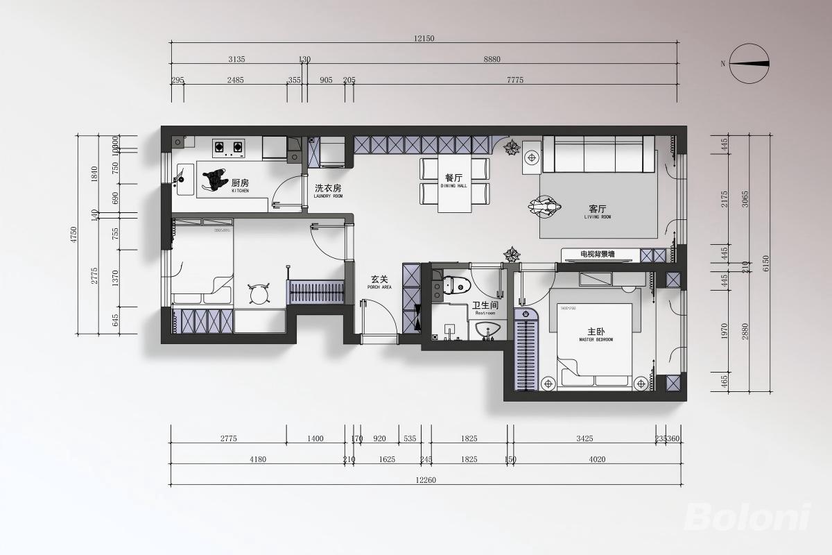
更多户型图灵感
本案为教师家庭定制两居户型,以通透动线与功能优化为核心,适配教师群体的生活与工作需求。客餐厅一体化布局,最大化公共空间采光与互动性,预留充足收纳与阅读区,满足日常备课、居家办公需求。双卧室分区明确,主卧打造静谧休憩空间,次卧灵活切换书房、客卧功能,兼顾私密与实用。 独立洗衣房优化家务动线,干湿分离卫生间提升使用效率,玄关实现入户缓冲与收纳。全屋动线流畅,动静分区清晰,在有限空间内平衡生活工作。