×
北京
手机博洛尼 售前:400-6868-692 售后:400-666-3706
所在位置/首页优秀案例/富力城B区
点击浏览下一张
案例信息
  • 楼盘名称
  • 案例风格
  • 富力城B区
  • 现代
  • 案例户型
  • 服务店面
  • 案例面积
  • 设计师
  • 90㎡
  • 刘一禛
案例说明

本方案以客餐厅为家庭核心,优化洄游动线,串联起居、餐厨空间。主卧保障私密,次卧灵活适配,干湿分离卫生间提升实用性,兼顾采光通风,打造功能完备、适配全家庭的舒适宜居空间。

客厅
更多客厅灵感

以温润奶咖为基调,圆弧吊顶弱化梁柱,开放式布局串联起居、餐厨与休闲区。无主灯营造柔和氛围,打造通透松弛、温馨治愈的家庭核心互动空间。

客厅
更多客厅灵感

以温润原木与奶白为基调,圆弧吊顶柔化空间,整墙书柜打造展示收纳区。开放式布局串联起居、餐厨与儿童房,打造通透松弛、温馨治愈的全家庭互动空间。

卧室
更多卧室灵感

以温润原木与奶白为基调,定制一体化书桌与通顶衣柜,兼顾学习与收纳。童趣软装与墙绘点缀,打造活泼治愈、适配成长的多功能空间。

卧室
更多卧室灵感

以温润奶白与原木为基调,通顶衣柜最大化收纳,床头氛围灯营造柔和光影,飘窗拓展休闲区,打造静谧松弛、治愈舒适的睡眠空间。

卫生间
更多卫生间灵感

以高级灰岩板为基调,玻璃隔断实现干湿分离,智能镜柜+悬浮台盆扩容收纳,长虹玻璃门保障采光,打造通透整洁、动线流畅的实用卫浴空间。

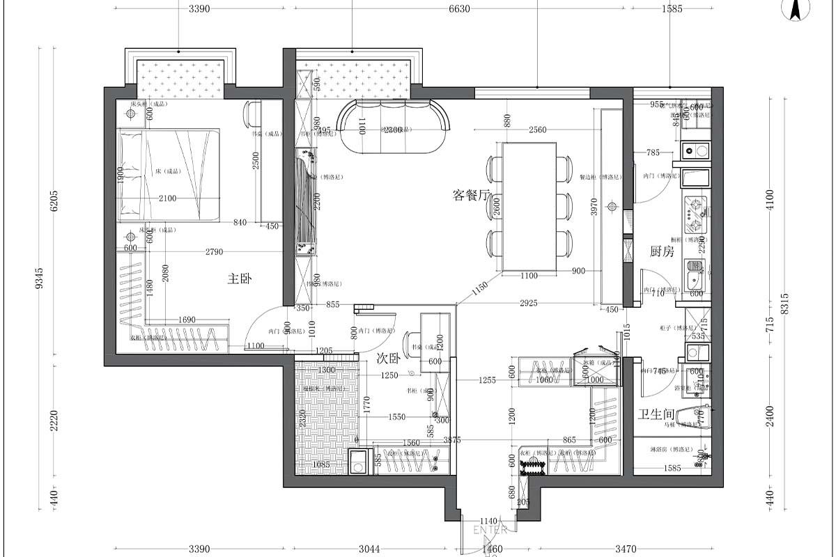
户型图
更多户型图灵感

以客餐厅为公共活动核心,强化动静分区,主卧、次卧分置私密区。厨房动线流畅,卫生间干湿分离,整合收纳功能,提升空间利用率,打造温馨通透、实用高效的全家庭成长型空间。

本案设计师

刘一禛

特级主任设计师

  1. 173次
  2. 预约数
  1. 15年
  2. 从业年限
  1. 95套
  2. 作品案例

预约TA

现代风格的其它案例
更多

【案例】【金茂府】现代 四居室 140㎡

渠海东 渠海东 7 845500浏览 这样装修多少钱?

【案例】【万国城】现代 二居室 130㎡

霍俐明 霍俐明 7 4382480浏览 这样装修多少钱?

【案例】【棠颂】现代 别墅 360㎡

李延玲 李延玲 12 3548902浏览 这样装修多少钱?

二居室的其它案例
更多

【案例】【御墅临枫】古典 二居室 180㎡

魏焕和 魏焕和 7 4969浏览 这样装修多少钱?

【案例】【民岳家园】古典 二居室 100㎡

尚君 尚君 6 4835浏览 这样装修多少钱?

【案例】【世纪城】古典 二居室 125㎡

赵保祚 赵保祚 6 3371987浏览 这样装修多少钱?